中古戸建 総社市泉 総社北小学校・総社東中学校エリア
掲載情報更新日:2025年10月23日 次回更新予定日:2025年11月06日
- 1,420万円
-
- 借入ご希望金額
万円 - 借入期間
年 - 借入金利
% - 月々のお支払い金額
円
- 借入ご希望金額
※ 月々のお支払例は目安の試算となりますので、実際の金額とは異なる場合がございます。詳しくは店舗までお問合わせください。
- 総社市泉
-
JR吉備線『東総社』 徒歩29分 (約2320m)
中古戸建 総社市泉 総社北小学校・総社東中学校エリア一戸建て | 物件情報
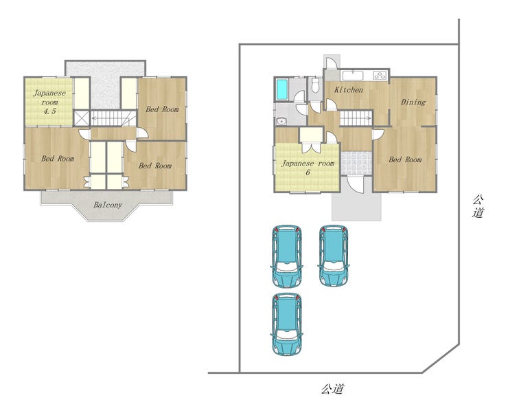
趣味を思い切り楽しみたい!そんな願いを叶えるお部屋のあるお家♪L字型リビングを作りやすい♪
◎ネットからご来店予約でQuoカード1000円分プレゼント!
☆L字型キッチン・ダイニング・リビングで暮らしやすい♪
☆暮らしやすさで人気の角地&お車3台駐車可能♪
\*おすすめPOINT*/
・IHクッキングヒーター&食洗器で効率的にお料理♪
・2部屋ある和室で癒しの自分時間♪
・植栽にいやされる広々エントランス♪
★周辺環境★
泉北公園 徒歩約7分(550m)
総社泉簡易郵便局 徒歩約12分(960m)
総社市立総社北小学校 徒歩約14分(1070m)
『全国700店舗展開の情報ネットワーク!』
◆物件見学・オープンハウス随時開催!◆
◇資金計画、住宅ローン、リフォーム、火災保険
◇弊社提携の銀行員や税理士による無料相談
◇店内にキッズコーナー
◇ドリンクサービス充実
お一人でのご来店、お子様を連れてのご来店も可能です
お気軽にお問い合わせください♪
☆―ご予約・お問合せ―☆
ハウスドゥ総社:0866-95-2775
までお問い合わせください!
物件の設備
- 電気
- 上水道
- 下水道
- プロパンガス
- 食器洗浄乾燥機
- IHクッキングヒータ
- システムキッチン
- バス
- バス1坪以上
- 浴室乾燥機
- トイレ
- 温水洗浄便座
- 室内洗濯機置場
- モニタ付インターホン
- 床下収納
- インナーバルコニー
物件の特徴
- 前道6m以上
- 南側道路面す
- 緑豊かな住宅地
- スーパーが近い
- 閑静な住宅街
- 周辺交通量少なめ
- 市街地が近い
- 都市近郊
- 山が見える
- 高台に立地
- 眺望良好
- 通風良好
- 陽当り良好
- 2階建
- 整形地
- 区画整理地内
物件詳細情報
| 価格 | 1,420万円 | 間取り | 6LDK |
|---|---|---|---|
| 物件種別 | 中古一戸建て | ||
| 所在地 | 岡山県総社市泉 | ||
| アクセス |
|
||
| 建物面積 | 109.28㎡ | 駐車場 | あり 普通:3台 |
| 築年月 | 1981年(昭和56年)12月築 | ||
| 建物構造 | 木造 2階建 | 工法 | |
| 主要採光 | 南向 | バルコニー | |
| 保証・評価 | |||
| リフォーム | |||
| 土地面積 | 公248.76㎡(75.24坪) | 接道 | 南側(公道)幅 約6.0m 東側(公道)幅 約6.0m |
| 私道 | セットバック | ||
| 地目 | 宅地 | 地勢 | 高台 |
| 権利 | 所有権 |
||
| 都市計画 | 市街化区域 |
用途地域 | 1種低層 |
| 建ぺい/容積率 | 60% / 150% | 土地国土法 | |
| 許可番号 | 建築基準法 | ||
| 法令制限 | 景観法 | ||
| 小学区 | 総社北小学校 徒歩12分 (約950m) | 中学区 | 総社東中学校 徒歩38分 (約3000m) |
| 現況 | 居住中 | 引渡 | 相談 |
| その他費用 | |||
| 周辺環境 | 泉北公園 徒歩7分 (約550m) 総社泉簡易郵便局 徒歩12分 (約960m) 総社北幼稚園 徒歩13分 (約1040m) 総社市立総社北小学校 徒歩14分 (約1070m) ファミリーマート 総社小寺店 徒歩15分 (約1180m) スマイル保育園 徒歩21分 (約1650m) 泉リハビリセンター 徒歩21分 (約1650m) 浅尾公園 徒歩25分 (約2000m) 小寺第一公園 徒歩29分 (約2320m) 総社市立総社小学校 徒歩32分 (約2540m) |
||
| 備考 | 泉町内会費3000円/年 班会費3600円/年 第一日曜日:8時~ 遊歩道そうじ |
||
| 物件番号 | 4402989 | 取引態様 | 専任 |
取扱店舗情報
| 電話番号 | 0866-95-2775 |
|---|---|
| 所在地 | 〒719-1131 岡山県総社市中央1丁目21-101 |
| 営業時間 | 10:00~18:00 |
| 定休日 | 火曜日、水曜日、年末年始 |
| 宅建免許番号 | 岡山県知事(2)第5846号 |
| アクセス | 店舗への地図はこちら |

来店ご予約
岡山県総社市で価格が似ている物件はこちら
- 岡山県
マイページ物件数 - 4,334件
岡山県中古一戸建て新着物件
-
-

-
- 中古一戸建て
- 500万円
-
倉敷市中畝2丁目
-
水島臨海鉄道水島駅
-
-
-

-
- 中古一戸建て
- 3,280万円
-
倉敷市玉島中央町1丁目
-
JR山陽本線新倉敷駅
-
-
-

-
- 中古一戸建て
- 1,980万円
-
小田郡矢掛町江良
-
井原鉄道矢掛駅
-
-
-

-
- 中古一戸建て
- 2,500万円
-
高梁市落合町阿部
-
JR伯備線備中高梁駅
-
-
-

-
- 中古一戸建て
- 480万円
-
加賀郡吉備中央町粟井谷
-
JR津山線福渡駅
-
-
-

-
- 中古一戸建て
- 1,298万円
-
岡山市中区藤崎
-
JR山陽本線岡山駅
-
-
-

-
- 中古一戸建て
- 2,280万円
-
倉敷市児島元浜町
-
JR本四備讃線児島駅
-
- お近くの店舗を探す
-
おすすめ物件
-
-

-
- 中古一戸建て
- 370万円
-
倉敷市児島柳田町
-
JR本四備讃線上の町
-
-
-

-
- 中古一戸建て
- 300万円
-
倉敷市児島味野5丁目
-
JR本四備讃線児島
-
-
-

-
- 中古一戸建て
- 1,380万円
-
倉敷市上富井
-
水島臨海鉄道西富井
-
-
-

-
- 中古一戸建て
- 500万円
-
倉敷市山地
-
JR山陽本線中庄
-
-
-

-
- 中古一戸建て
- 2,390万円
-
高梁市川上町臘数
-
JR伯備線備中高梁
-
-
-

-
- 中古一戸建て
- 2,400万円
-
倉敷市児島稗田町
-
JR本四備讃線上の町
-
-
-

-
- 中古一戸建て
- 2,800万円
-
岡山市北区今保
-
JR山陽本線北長瀬
-
-
-

-
- 中古一戸建て
- 1,600万円
-
岡山市南区新保
-
JR宇野線備前西市
-
-
-

-
- 中古一戸建て
- 350万円
-
久米郡美咲町宮山
-
JR姫新線美作大崎
-
-
-

-
- 中古一戸建て
- 2,650万円
-
倉敷市白楽町
-
JR山陽本線倉敷
-






























担当エージェント:増田 健太
★初めてお問い合わせいただくお客様へ
1.物件について詳細をご説明します。(オンライン可)
2.お客様のご希望をどうぞお聞かせください♪
3.今後の流れを具体的にご案内
所要時間:約30分~1時間
★物件を見に行こう
所要時間: 1時間~1時間半(移動時間を除く)
気になる物件をじっくりとご確認いただけます。
現地で実際に確かめてください♪
周辺環境など実際の生活を想定したご案内をします。
+‥‥▼お電話でのご予約、ご質問・ご要望はこちらまで▼‥‥+
TEL:0866-95-2775
ハウスドゥ 総社
◆ご売却◆
売却相談、査定も承っております。
相続やお住み替え、リースバック
不用品の処分や片付けも対応!
ご売却までの流れなどお気軽にご相談ください。