宇都宮市西川田本町3丁目の中古戸建
掲載情報更新日:2026年05月05日 次回更新予定日:2026年05月19日
- 4,500万円
-
- 借入ご希望金額
万円 - 借入期間
年 - 借入金利
% - 月々のお支払い金額
円
- 借入ご希望金額
※ 月々のお支払例は目安の試算となりますので、実際の金額とは異なる場合がございます。詳しくは店舗までお問合わせください。
- 宇都宮市西川田本町3丁目
-
東武宇都宮線『西川田』 徒歩14分 (約1120m)
宇都宮市西川田本町3丁目一戸建て | 物件情報
物件の設備
- 食器乾燥機
- 食器洗浄乾燥機
- IHクッキングヒータ
- コンロ三口
- システムキッチン
- オートバス
- 追焚機能
- 浴室に窓
- トイレ2箇所
- 温水洗浄便座
- エアコン2基
- 照明器具
- 間接照明
- ダウンライト
- 太陽光発電システム
- 人感照明センサー
- ディンプルキー
- ダブルロックキー
- モニタ付インターホン
- 防犯カメラ
- クローゼット
- シューズインクローク
物件の特徴
- 前道6m以上
- スーパーが近い
- 閑静な住宅街
- 市街地が近い
- 陽当り良好
- 2階建
- 平坦地
- 整形地
- 即入居可
物件詳細情報
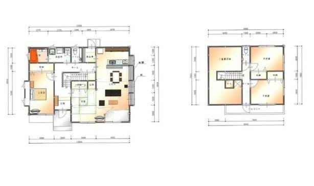
| 価格 | 4,500万円 | 間取り | 3LDK |
|---|---|---|---|
| 物件種別 | 中古一戸建て | ||
| 所在地 | 栃木県宇都宮市西川田本町3丁目 | ||
| アクセス |
|
||
| 建物面積 | 公144.25㎡ | 駐車場 | あり 普通:3台 |
| 築年月 | 2014年(平成26年)01月築 | ||
| 建物構造 | 木造 2階建 | 工法 | |
| 主要採光 | バルコニー | ||
| 保証・評価 | |||
| リフォーム | |||
| 土地面積 | 公481.24㎡(145.57坪) | 接道 | 北側(公道)幅 約6.0m |
| 私道 | セットバック | ||
| 地目 | 宅地 | 地勢 | 平坦 |
| 権利 | 所有権 |
||
| 都市計画 | 市街化区域 |
用途地域 | 1種住居 |
| 建ぺい/容積率 | 60% / 200% | 土地国土法 | |
| 許可番号 | 建築基準法 | ||
| 法令制限 | 景観法・宅地造成及び特定盛土等規制法 | ||
| 小学区 | 姿川第一小学校 徒歩3分 (約224m) | 中学区 | 若松原中学校 徒歩40分 (約3199m) |
| 現況 | 空 | 引渡 | 即 |
| その他費用 | |||
| 周辺環境 | 宇都宮市立姿川第一小学校 徒歩3分 (約224m) 宇都宮市立若松原中学校 徒歩40分 (約3199m) ファミリーマート子ども科学館前店 徒歩8分 (約630m) あつみ幼稚園 徒歩9分 (約710m) たいらや西川田店 徒歩9分 (約660m) |
||
| 備考 | 東側道路は認定外道路ですが、43条2項の認定を受ける事で、建築可能。 | ||
| 物件番号 | 4404170 | 取引態様 | 媒介 |
取扱店舗情報
| 電話番号 | 028-678-2888 |
|---|---|
| 所在地 | 〒320-0826 栃木県宇都宮市西原町466-1 |
| 営業時間 | 10:00~18:30 |
| 定休日 | 火曜日・水曜日 |
| 宅建免許番号 | 栃木県知事(2)第5075号 |
| アクセス | 店舗への地図はこちら |

来店ご予約
栃木県宇都宮市で価格が似ている物件はこちら
- 栃木県
マイページ物件数 - 5,264件
最近見た物件
-
-

-
- 中古一戸建て
- 70万円
-
美唄市東八条北7丁目
-
JR函館本線美唄
-
-
-

-
- 新築一戸建て
- 3,980万円
-
仙台市若林区かすみ町
-
仙台市地下鉄東西線卸町
-
-
-

-
- 中古一戸建て
- 4,490万円
-
松山市古川南1丁目
-
古川
-
栃木県中古一戸建て新着物件
- お近くの店舗を探す
-
おすすめ物件
-
-

-
- 中古一戸建て
- 2,580万円
-
宇都宮市清原台6丁目
-
JRバス清原台6丁目
-
-
-

-
- 中古一戸建て
- 1,430万円
-
那須塩原市東赤田
-
JRバス西那須野消防署前
-
-
-

-
- 中古一戸建て
- 3,680万円
-
宇都宮市中岡本町
-
JR東北本線岡本
-
-
-

-
- 中古一戸建て
- 2,580万円
-
宇都宮市清原台6丁目
-
宇都宮芳賀ライト線ゆいの杜西
-
-
-

-
- 中古一戸建て
- 3,280万円
-
宇都宮市西刑部町
-
関東バス【中央橋】
-
-
-

-
- 中古一戸建て
- 2,300万円
-
那須烏山市南1丁目
-
JR烏山線烏山
-
-
-

-
- 中古一戸建て
- 3,500万円
-
宇都宮市戸祭台
-
関東バス「戸祭台2号」
-
-
-

-
- 中古一戸建て
- 3,250万円
-
宇都宮市簗瀬町
-
JR東北新幹線宇都宮
-
-
-

-
- 中古一戸建て
- 5,800万円
-
河内郡上三川町大字多功
-
JR東北本線石橋
-
-
-

-
- 中古一戸建て
- 2,799万円
-
宇都宮市簗瀬3丁目
-
JR東北本線宇都宮
-








