春日井市如意申町2丁目の中古戸建
掲載情報更新日:2026年04月11日 次回更新予定日:2026年04月25日
- 4,680万円
-
- 借入ご希望金額
万円 - 借入期間
年 - 借入金利
% - 月々のお支払い金額
円
- 借入ご希望金額
※ 月々のお支払例は目安の試算となりますので、実際の金額とは異なる場合がございます。詳しくは店舗までお問合わせください。
- 春日井市如意申町2丁目
-
名鉄小牧線『春日井』 徒歩14分 (約1100m)
JR中央本線『勝川』 徒歩37分 (約2900m)
名鉄小牧線『味美』 徒歩23分 (約1800m)
春日井市如意申町2丁目一戸建て | 物件情報
一条工務店施工の家!南側道路・日当たり良好♪並列駐車3台分可能♪オール電化♪太陽光発電システム設置♪
■ロケーション■
◎名鉄小牧線「春日井」駅徒歩14分♪
◎松山小学校 徒歩4分
◎西部中学校 徒歩13分
◎ファミリーマート 徒歩7分
◎平和堂 徒歩8分
◎如意申公園 徒歩5分
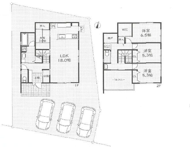
■スペック■
◎一条工務店施工の家♪
◎南側道路6m、日当たり良好♪
◎WICや納戸など収納スペース豊富
◎育児室にもなるLDK併設の和室
◎火の扱いのない安心安全なオール電化
◎環境やお財布にも優しい太陽光発電システム設置♪
◎お洗濯もたっぷり干せる南側の広いバルコニー♪
◎並列駐車3台分可能
■買替えをご希望、自己資金が少ない、
他社で住宅ローンが難しいと言われた方、
車やクレジットカード等、他のお借入がある方
団体信用生命保険に不安のある方。
住宅ローンに詳しい担当者が親身にサポート!
ローンの相談からはじめてみませんか?■
■掲載されていない物件も多数。
新着情報・未公開情報も多数あります!
お探しの条件、お聞かせください!■
★★全国700店舗のネットワーク!
家を買うならハウスドゥ春日井宮町店★★
物件の設備
- オール電化
- 公営水道
- 公共下水
- 都市ガス
- コンロ三口
- カウンターキッチン
- システムキッチン
- バス
- 浴室に窓
- トイレ2箇所
- 温水洗浄便座
- 室内洗濯機置場
- 洗面所独立
- 太陽光発電システム
- LDK18畳以上
- 和室
- ウォークインクローゼット
- 納戸
- 全居室収納
- シューズボックス
物件の特徴
- 南向
- 2沿線利用可
- 小学校徒歩10分以内
- 前道6m以上
- 南側道路面す
- スーパーが近い
- 通風良好
- 陽当り良好
- 2階建
- 前面棟無
物件詳細情報
| 価格 | 4,680万円 | 間取り | 4LDK |
|---|---|---|---|
| 物件種別 | 中古一戸建て | ||
| 所在地 | 愛知県春日井市如意申町2丁目 | ||
| アクセス |
|
||
| 建物面積 | 109.23㎡ | 駐車場 | あり 普通:3台 |
| 築年月 | 2021年(令和3年)10月築 | ||
| 建物構造 | 木造 2階建 | 工法 | |
| 主要採光 | 南向 | バルコニー | |
| 保証・評価 | |||
| リフォーム | |||
| 土地面積 | 181.81㎡(54.99坪) | 接道 | 南側(公道)幅 約6.0m |
| 私道 | セットバック | ||
| 地目 | 宅地 | 地勢 | |
| 権利 | 所有権 |
||
| 都市計画 | 市街化区域 |
用途地域 | 1種住居 |
| 建ぺい/容積率 | 60% / 200% | 土地国土法 | |
| 許可番号 | 建築基準法 | ||
| 法令制限 | 都市再生特別措置法・法22条区域 | ||
| 小学区 | 松山小学校 徒歩4分 (約300m) | 中学区 | 西部中学校 徒歩13分 (約1000m) |
| 現況 | 居住中 | 引渡 | 相談 |
| その他費用 | |||
| 周辺環境 | 春日井市立松山小学校 徒歩4分 (約300m) 春日井市立西部中学校 徒歩13分 (約1000m) マ・メール如意申保育園 徒歩8分 (約600m) 平和堂春日井宮町店 徒歩8分 (約600m) フィールネットワーク店 徒歩13分 (約1000m) ファミリーマート如意申町一丁目店 徒歩7分 (約500m) B&Dドラッグストア宮町店 徒歩7分 (約500m) さかきばらクリニック 徒歩7分 (約550m) 春日井宮町郵便局 徒歩13分 (約980m) 如意申公園 徒歩5分 (約350m) |
||
| 備考 | ※オール電化 ※一条工務店の家 |
||
| 物件番号 | 4404859 | 取引態様 | 媒介 |
取扱店舗情報
ハウスドゥ 春日井宮町 株式会社ハウシーク 店舗詳細ページへ
| 電話番号 | 0568-29-8856 |
|---|---|
| 所在地 | 〒486-0904 愛知県春日井市宮町3丁目7-16 |
| 営業時間 | 9:00~19:00 |
| 定休日 | 火曜日、水曜日、年末年始 |
| 宅建免許番号 | 愛知県知事(2)第23374号 |
| アクセス | 店舗への地図はこちら |

来店ご予約
- 愛知県
マイページ物件数 - 32,299件
最近見た物件
-
-

-
- 中古一戸建て
- 380万円
-
伊達市山下町
-
JR室蘭本線伊達紋別
-
-
-

-
- 中古一戸建て
- 1,649万円
-
牛久市南6丁目
-
JR常磐線牛久
-
-
-

-
- 中古一戸建て
- 3,180万円
-
東松島市矢本字作田浦
-
JR仙石線矢本
-
愛知県中古一戸建て新着物件
-
-

-
- 中古一戸建て
- 6,980万円
-
名古屋市瑞穂区萩山町2丁目
-
名古屋市名城線瑞穂運動場東駅
-
-
-

-
- 中古一戸建て
- 1,190万円
-
名古屋市昭和区川名本町3丁目
-
名古屋市鶴舞線川名駅
-
-
-

-
- 中古一戸建て
- 2,499万円
-
岡崎市中島町
-
JR東海道本線岡崎駅
-
-
-

-
- 中古一戸建て
- 2,450万円
-
豊橋市南牛川1丁目
-
豊橋鉄道東田本線競輪場前駅
-
-
-

-
- 中古一戸建て
- 2,450万円
-
豊橋市南牛川1丁目
-
豊橋鉄道東田本線競輪場前駅
-
-
-

-
- 中古一戸建て
- 2,450万円
-
豊橋市南牛川1丁目
-
豊橋鉄道東田本線競輪場前駅
-
-
-

-
- 中古一戸建て
- 1,790万円
-
岡崎市細川町字岩御堂
-
愛知環状鉄道北岡崎駅
-
- お近くの店舗を探す
-
おすすめ物件
-
-

-
- 中古一戸建て
- 4,500万円
-
愛知郡東郷町北山台1丁目
-
名鉄豊田線日進
-
-
-

-
- 中古一戸建て
- 6,300万円
-
瀬戸市塩草が丘3丁目
-
愛知環状鉄道山口
-
-
-

-
- 中古一戸建て
- 3,990万円
-
丹羽郡大口町竹田3丁目
-
名鉄犬山線柏森
-
-
-

-
- 中古一戸建て
- 2,890万円
-
半田市相賀町
-
JR武豊線乙川
-
-
-

-
- 中古一戸建て
- 4,199万円
-
名古屋市名東区平和が丘2丁目
-
名古屋市東山線一社
-
-
-

-
- 中古一戸建て
- 4,580万円
-
名古屋市守山区大字上志段味字細川原
-
JR中央本線高蔵寺
-
-
-

-
- 中古一戸建て
- 1億2,000万円
-
名古屋市千種区大島町2丁目
-
名古屋市東山線覚王山
-
-
-

-
- 中古一戸建て
- 3,899万円
-
名古屋市瑞穂区本願寺町3丁目
-
名古屋市桜通線瑞穂区役所
-
-
-

-
- 中古一戸建て
- 1,080万円
-
瀬戸市五位塚町
-
名鉄瀬戸線尾張瀬戸
-
-
-

-
- 中古一戸建て
- 6,180万円
-
豊明市沓掛町勅使
-
名古屋市桜通線徳重
-


