白山市北安田町の中古戸建
掲載情報更新日:2025年10月22日 次回更新予定日:2025年11月05日
- 3,400万円
- 
                    - 借入ご希望金額
 万円
-  借入期間
 年
-  借入金利
 %
-  月々のお支払い金額
 円
 
- 借入ご希望金額
※ 月々のお支払例は目安の試算となりますので、実際の金額とは異なる場合がございます。詳しくは店舗までお問合わせください。
- 白山市北安田町
- 
                    IRいしかわ鉄道『西松任』 徒歩7分 (約560m)
 
白山市北安田町一戸建て | 物件情報
白山市北安田町に中古住宅登場!3LDK+小屋裏収納あり!築7年で綺麗な物件です!
             
        
            白山市北安田町の築浅物件!
・駐車3台可能!(カーポートあり)
・小屋根裏収納有
・駅・スーパー・コンビニ徒歩圏内        
物件の設備
- 電気
- 上水道
- 下水道
- プロパンガス
- IHクッキングヒータ
- コンロ三口
- バス
- トイレ
- 洗面所独立
- ウォークインクローゼット
- 屋根裏収納
- サンルーム
物件の特徴
- 前道6m以上
- 南側道路面す
- 2階建
物件詳細情報
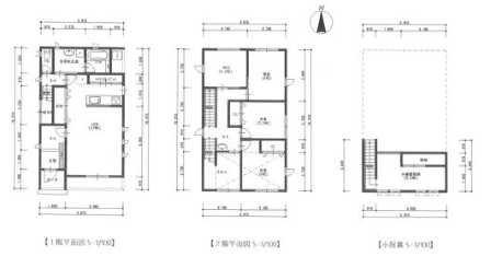
| 価格 | 3,400万円 | 間取り | 3LDK | 
|---|---|---|---|
| 物件種別 | 中古一戸建て | ||
| 所在地 | 石川県白山市北安田町 | ||
| アクセス | 
 | ||
| 建物面積 | 114.68㎡ | 駐車場 | あり 普通:3台 | 
| 築年月 | 2018年(平成30年)07月築 | ||
| 建物構造 | 木造 2階建 | 工法 | |
| 主要採光 | バルコニー | ||
| 保証・評価 | |||
| リフォーム | |||
| 土地面積 | 公106.26㎡(32.14坪) | 接道 | 南側(公道)幅 約6.3m 間口 約7.40m | 
| 私道 | セットバック | ||
| 地目 | 宅地 | 地勢 | |
| 権利 | 所有権 | ||
| 都市計画 | 用途地域 | ||
| 建ぺい/容積率 | 60% / 200% | 土地国土法 | |
| 許可番号 | 建築基準法 | ||
| 法令制限 | |||
| 小学区 | 蕪城小学校 徒歩13分 (約990m) | 中学区 | 北星中学校 徒歩26分 (約2070m) | 
| 現況 | 居住中 | 引渡 | 相談 | 
| その他費用 | |||
| 周辺環境 | 新成南公園 徒歩14分 (約1110m) 松任千代野郵便局 徒歩14分 (約1110m) 白山市立蕪城小学校 徒歩13分 (約990m) ぱん焼人はたなか・みきお 徒歩14分 (約1100m) ドラッグストアコスモス相木店 徒歩17分 (約1300m) 千代野中央公園 徒歩16分 (約1210m) スーパーマーケットバロー松任店 徒歩20分 (約1540m) クスリのアオキ相木店 徒歩20分 (約1600m) 松任駅 徒歩23分 (約1810m) 白山市立北星中学校 徒歩26分 (約2070m) | ||
| 備考 | ※地元工務店施行の注文住宅 ※小屋根裏収納有 ※駅・スーパー・コンビニ徒歩圏内 ※内見アポ要(居住中の為) | ||
| 物件番号 | 4406443 | 取引態様 | 媒介 | 
取扱店舗情報
ハウスドゥ ラスパ白山 株式会社アンビション 店舗詳細ページへ
| 電話番号 | 076-225-6461 | 
|---|---|
| 所在地 | 〒924-0865 石川県白山市倉光5丁目14 ラスパ白山 A-10 | 
| 営業時間 | 10:00~19:00 | 
| 定休日 | 年中無休 | 
| 宅建免許番号 | 石川県知事(1)第4517号 | 
| アクセス | 店舗への地図はこちら | 

来店ご予約
石川県白山市で価格が似ている物件はこちら
- 石川県
 マイページ物件数
- 495件
石川県中古一戸建て新着物件
- お近くの店舗を探す
- 
            
            
            
 
     
                         
                         
                         
                    







 
                















 
                 
             
                    

 
                                            
















 
						 
						
西松任駅まで徒歩圏内!地元工務店施行の注文住宅です!中古とは思えない清潔感と居心地の良さ。所有者居住中のため、内見希望の際はお気軽にお問い合わせください。