防府市大字鈴屋の中古戸建
掲載情報更新日:2026年05月07日 次回更新予定日:2026年05月21日
- 199万円
-
- 借入ご希望金額
万円 - 借入期間
年 - 借入金利
% - 月々のお支払い金額
円
- 借入ご希望金額
※ 月々のお支払例は目安の試算となりますので、実際の金額とは異なる場合がございます。詳しくは店舗までお問合わせください。
- 防府市大字鈴屋
-
JR山陽本線『防府』 徒歩105分 (約8400m)
防府市大字鈴屋一戸建て | 物件情報
【3DK/陽当たり◎】小野小学校まで徒歩約18分(1390m)
周辺環境はのどかな田園風景が広がっています。静かな住環境でスローライフをおくりたい方におすすめです。
物件の設備
- 電気
- 井戸
- 側溝
- 汲取
- プロパンガス
- バス
- 浴室に窓
- トイレ
- 室内洗濯機置場
- 洗面所独立
- 照明器具
- シャッター雨戸
物件の特徴
- 南側道路面す
- 2階建
- 即入居可
物件詳細情報
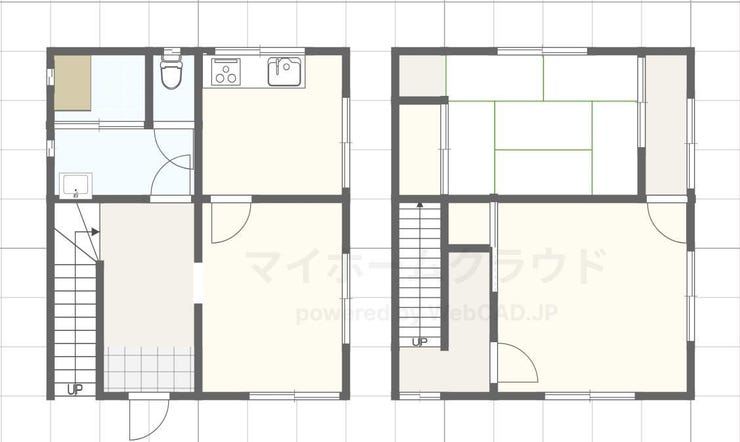
| 価格 | 199万円 | 間取り | 3DK |
|---|---|---|---|
| 物件種別 | 中古一戸建て | ||
| 所在地 | 山口県防府市大字鈴屋 | ||
| アクセス |
|
||
| 建物面積 | 74.84㎡ | 駐車場 | あり 普通:3台 |
| 築年月 | 1976年(昭和51年)11月築 | ||
| 建物構造 | 軽量鉄骨 2階建 | 工法 | |
| 主要採光 | バルコニー | ||
| 保証・評価 | |||
| リフォーム | |||
| 土地面積 | 公326.85㎡(98.87坪) | 接道 | 南側(私道)幅 約4.0m 間口 約9.00m |
| 私道 | セットバック | 無 | |
| 地目 | 宅地 | 地勢 | 平坦 |
| 権利 | 所有権 |
||
| 都市計画 | 区域外 |
用途地域 | 指定無 |
| 建ぺい/容積率 | 土地国土法 | ||
| 許可番号 | 建築基準法 | ||
| 法令制限 | |||
| 小学区 | 小野小学校 徒歩18分 (約1390m) | 中学区 | 小野中学校 徒歩30分 (約2380m) |
| 現況 | 空 | 引渡 | 即 |
| その他費用 | |||
| 周辺環境 | 小野小学校 徒歩18分 (約1390m) 小野中学校 徒歩30分 (約2380m) |
||
| 備考 | |||
| 物件番号 | 4407005 | 取引態様 | 媒介 |
取扱店舗情報
| 電話番号 | 0835-28-1120 |
|---|---|
| 所在地 | 〒747-0809 山口県防府市寿町4-17 |
| 営業時間 | 9:30~18:00 |
| 定休日 | 毎週水曜日、第1以外の第木曜日 |
| 宅建免許番号 | 国土交通大臣(2)第9501号 |
| アクセス | 店舗への地図はこちら |

来店ご予約
山口県防府市で価格が似ている物件はこちら
- 山口県
マイページ物件数 - 3,257件
最近見た物件
-
-

-
- 中古一戸建て
- 920万円
-
津市西丸之内
-
近鉄名古屋線津新町
-
-
-

-
- 中古一戸建て
- 2,500万円
-
福山市神辺町字下御領
-
井原鉄道御領
-
-
-

-
- 土地
- 250万円
-
三戸郡階上町大字道仏字耳ケ吠
-
階上庁舎前バス停
-
山口県中古一戸建て新着物件
-
-

-
- 中古一戸建て
- 2,480万円
-
防府市牟礼柳
-
JR山陽本線防府駅
-
-
-

-
- 中古一戸建て
- 2,399万円
-
下関市小月本町2丁目
-
JR山陽本線小月駅
-
-
-

-
- 中古一戸建て
- 800万円
-
周南市大字呼坂
-
JR岩徳線勝間駅
-
-
-

-
- 中古一戸建て
- 1,898万円
-
山口市大内長野
-
JR山口線山口駅
-
-
-

-
- 中古一戸建て
- 1,449万円
-
周南市桜木2丁目
-
JR山陽本線櫛ヶ浜駅
-
-
-

-
- 中古一戸建て
- 1,300万円
-
下関市長府松小田本町
-
JR山陽本線長府駅
-
-
-

-
- 中古一戸建て
- 500万円
-
防府市大字植松
-
JR山陽本線防府駅
-
- お近くの店舗を探す
-
おすすめ物件
-
-

-
- 中古一戸建て
- 1,480万円
-
山口市陶
-
JR山陽本線四辻
-
-
-

-
- 中古一戸建て
- 2,280万円
-
周南市大字下上
-
JR山陽本線新南陽
-
-
-

-
- 中古一戸建て
- 980万円
-
防府市多々良1丁目
-
JR山陽本線防府
-
-
-

-
- 中古一戸建て
- 980万円
-
山口市大内小京都
-
JR山口線山口
-
-
-

-
- 中古一戸建て
- 4,950万円
-
宇部市小松原町2丁目
-
JR宇部線宇部新川
-
-
-

-
- 中古一戸建て
- 4,650万円
-
下松市栄町2丁目
-
JR山陽本線下松
-
-
-

-
- 中古一戸建て
- 3,650万円
-
周南市大字徳山
-
JR山陽本線徳山
-
-
-

-
- 中古一戸建て
- 2,650万円
-
周南市西桝町
-
JR山陽本線福川
-
-
-

-
- 中古一戸建て
- 2,500万円
-
山陽小野田市大字厚狭
-
JR山陽本線厚狭
-
-
-

-
- 中古一戸建て
- 2,380万円
-
防府市大字新田
-
JR山陽本線防府
-












担当エージェント:岩本 恭生
物件の購入費を抑えて自分好みにリフォームを加えることができます。当社ではリフォームも承っております。安心してご入居できるよう内覧してお気づきになった点やご不安はお気軽にご相談ください。