山形市城西町3丁目の中古戸建
掲載情報更新日:2026年04月19日 次回更新予定日:2026年05月03日
- 3,249万円
-
- 借入ご希望金額
万円 - 借入期間
年 - 借入金利
% - 月々のお支払い金額
円
- 借入ご希望金額
※ 月々のお支払例は目安の試算となりますので、実際の金額とは異なる場合がございます。詳しくは店舗までお問合わせください。
- 山形市城西町3丁目
-
JR奥羽本線『山形』 徒歩20分 (約1600m)
山形市城西町3丁目一戸建て | 物件情報
物件の設備
- 上水道
- 下水道
- 都市ガス
- システムキッチン
- バス1坪以上
- 温水洗浄便座
- 照明器具
- 庭
物件の特徴
- 前道6m以上
- 南側道路面す
- 閑静な住宅街
- 2階建
- 整形地
- 即入居可
物件詳細情報
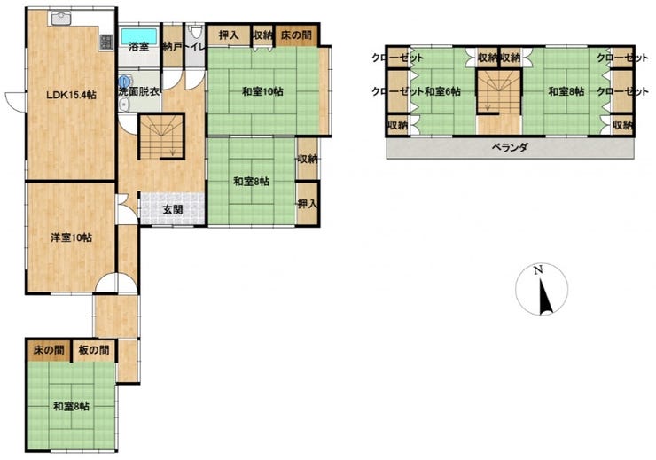
| 価格 | 3,249万円 | 間取り | 6LDK |
|---|---|---|---|
| 物件種別 | 中古一戸建て | ||
| 所在地 | 山形県山形市城西町3丁目 | ||
| アクセス |
|
||
| 建物面積 | 171.09㎡ | 駐車場 | あり 普通:3台 |
| 築年月 | 1976年(昭和51年)07月築 | ||
| 建物構造 | 木造 2階建 | 工法 | |
| 主要採光 | バルコニー | ||
| 保証・評価 | |||
| リフォーム | |||
| 土地面積 | 公331.72㎡(100.34坪) | 接道 | 南側(公道)幅 約6.0m |
| 私道 | セットバック | ||
| 地目 | 宅地 | 地勢 | 平坦 |
| 権利 | 所有権 |
||
| 都市計画 | 市街化区域 |
用途地域 | 2種低層 |
| 建ぺい/容積率 | 60% / 150% | 土地国土法 | |
| 許可番号 | 建築基準法 | ||
| 法令制限 | |||
| 小学区 | 第七小学校 徒歩14分 (約1100m) | 中学区 | 第二中学校 徒歩15分 (約1200m) |
| 現況 | 空 | 引渡 | 即 |
| その他費用 | |||
| 周辺環境 | コープしろにし 徒歩7分 (約510m) こまつ書店西田店 徒歩8分 (約590m) セブンイレブン 山形西田1丁目店 徒歩7分 (約530m) ローソン山形城西町五丁目店 徒歩10分 (約770m) ヤマザワ清住町店 徒歩9分 (約700m) ローソン山形下条二丁目店 徒歩13分 (約970m) セブンイレブン山形城西町2丁目店 徒歩11分 (約870m) |
||
| 備考 | ※9/28(日)まで期間限定現況販売 | ||
| 物件番号 | 4407185 | 取引態様 | 媒介 |
取扱店舗情報
| 電話番号 | 023-664-0737 |
|---|---|
| 所在地 | 〒990-2339 山形県山形市成沢西2丁目1-11 |
| 営業時間 | 9:30~18:00 |
| 定休日 | 水曜日 |
| 宅建免許番号 | 山形県知事(2)第2671号 |
| アクセス | 店舗への地図はこちら |

来店ご予約
山形県山形市で価格が似ている物件はこちら
- 山形県
マイページ物件数 - 171件
最近見た物件
-
-

-
- 土地
- 1,000万円
-
尾道市美ノ郷町白江
-
遊亀橋バス停
-
-
-

-
- 新築一戸建て
- 4,298万円
-
春日市須玖南3丁目
-
JR鹿児島本線南福岡
-
-
-

-
- 土地
- 620万円
-
霧島市国分剣之宇都町
-
JR肥薩線日当山
-
- お近くの店舗を探す
-
おすすめ物件
-
-

-
- 中古一戸建て
- 3,898万円
-
山形市成沢西2丁目
-
JR奥羽本線蔵王
-
-
-

-
- 中古一戸建て
- 1,980万円
-
山形市宮町1丁目
-
JR奥羽本線北山形
-
-
-

-
- 中古一戸建て
- 2,449万円
-
山形市双月町
-
JR奥羽本線山形
-
-
-

-
- 中古一戸建て
- 1,450万円
-
山形市大字下東山
-
JR仙山線高瀬
-
-
-

-
- 中古一戸建て
- 1,490万円
-
東村山郡山辺町近江
-
JR左沢線羽前山辺
-
-
-

-
- 中古一戸建て
- 2,950万円
-
山形市早乙女
-
JR奥羽本線羽前千歳
-
-
-

-
- 中古一戸建て
- 1,680万円
-
山形市松山2丁目
-
JR奥羽本線山形
-
-
-

-
- 中古一戸建て
- 1,950万円
-
山形市蔵王半郷字松尾川
-
山交バスまんさくの丘
-
-
-

-
- 中古一戸建て
- 1,150万円
-
山形市江俣4丁目
-
JR左沢線東金井
-
-
-

-
- 中古一戸建て
- 2,980万円
-
山形市小白川町5丁目
-
JR山形新幹線山形
-


