宮崎市月見ケ丘5丁目の中古戸建
掲載情報更新日:2026年04月30日 次回更新予定日:2026年05月14日
- 2,598万円
-
- 借入ご希望金額
万円 - 借入期間
年 - 借入金利
% - 月々のお支払い金額
円
- 借入ご希望金額
※ 月々のお支払例は目安の試算となりますので、実際の金額とは異なる場合がございます。詳しくは店舗までお問合わせください。
- 宮崎市月見ケ丘5丁目
-
JR日南線『田吉』 徒歩19分 (約1490m)
JR日豊本線『加納』 徒歩21分 (約1640m)
JR日豊本線『南宮崎』 徒歩26分 (約2020m)
宮崎市月見ケ丘5丁目一戸建て | 物件情報
リフォーム済みで水回り設備を新品交換!小中学校まで徒歩15分圏内、利便性の良い中古物件☆
◆ リフォーム済み住宅
キッチン・浴室・トイレ・洗面台は新品交換、フロアや壁紙も張替え済みで気持ちよく新生活を始められます。
◆ 小学校まで徒歩9分
宮崎南小学校が徒歩圏内にあり、通学に安心の距離です。
◆ 中学校も近く安心
赤江中学校まで徒歩14分。お子様の成長に合わせて住みやすい環境が整っています。
◆ 生活に便利な立地
周辺には買い物施設や交通アクセスも充実しており、日常生活に便利です。
◆ 空家につき即引渡し相談可
現在空家のため、ご入居時期の調整もしやすい状況です。
物件の設備
- 電気
- 上水道
- 下水道
- プロパンガス
- 食器洗浄乾燥機
- カウンターキッチン
- バス
- バス1坪以上
- 追焚機能
- 浴室乾燥機
- トイレ
- 温水洗浄便座
- 室内洗濯機置場
- 洗髪洗面化粧台
- モニタ付インターホン
- 火災警報器/報知機
- フローリング
- フローリング張替
- 庭
物件の特徴
- 内装リフォーム済
- 外装リフォーム済
- 内外装リフォーム済
- 前道6m以上
- 2階建
物件詳細情報
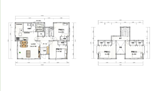
| 価格 | 2,598万円 | 間取り | 4LDK |
|---|---|---|---|
| 物件種別 | 中古一戸建て | ||
| 所在地 | 宮崎県宮崎市月見ケ丘5丁目 | ||
| アクセス |
|
||
| 建物面積 | 公115.48㎡ | 駐車場 | あり 普通:2台 |
| 築年月 | 1984年(昭和59年)03月築 | ||
| 建物構造 | 木造 2階建 | 工法 | |
| 主要採光 | バルコニー | ||
| 保証・評価 | |||
| リフォーム | 【水回り】2025年01月 キッチン・浴室・トイレ・洗面 【外装】2025年01月 外壁 【内装】2025年01月 床 ・全室クロス ・他[床・壁全室] |
||
| 土地面積 | 公203.81㎡(61.65坪) | 接道 | 西側(公道)幅 約6.0m 間口 約13.50m |
| 私道 | セットバック | ||
| 地目 | 宅地 | 地勢 | |
| 権利 | 所有権 |
||
| 都市計画 | 市街化区域 |
用途地域 | 1種低層 |
| 建ぺい/容積率 | 50% / 80% | 土地国土法 | |
| 許可番号 | 建築基準法 | ||
| 法令制限 | |||
| 小学区 | 宮崎南小学校 徒歩9分 (約710m) | 中学区 | 赤江中学校 徒歩14分 (約1080m) |
| 現況 | 空 | 引渡 | 相談 |
| その他費用 | |||
| 周辺環境 | 宮崎南小学校 徒歩9分 (約710m) ニトリモール宮崎 徒歩14分 (約1060m) 赤江中学校 徒歩14分 (約1080m) 宮崎南警察署 徒歩13分 (約970m) 宮崎太陽銀行 赤江支店 城ヶ崎支店 徒歩13分 (約1010m) セブンイレブン 宮崎月見ケ丘2丁目 徒歩13分 (約990m) コスモス 源藤店 徒歩16分 (約1260m) WASHハウス 赤江店 徒歩14分 (約1080m) コスモス 恒久店 徒歩14分 (約1120m) 宮崎銀行 南宮崎支店 徒歩15分 (約1170m) |
||
| 備考 | リフォーム済みの中古物件☆ 主なリフォーム箇所:キッチン、トイレ、浴室、洗面台は新品と交換、フロア・壁紙張替え |
||
| 物件番号 | 4407875 | 取引態様 | 媒介 |
取扱店舗情報
| 電話番号 | 0985-86-7336 |
|---|---|
| 所在地 | 〒889-1607 宮崎県宮崎市清武町加納3丁目16 メモワールII101号室 |
| 営業時間 | 9:00~20:00 |
| 定休日 | 不定休 |
| 宅建免許番号 | 宮崎県知事(1)第4995号 |
| アクセス | 店舗への地図はこちら |

来店ご予約
宮崎県宮崎市で価格が似ている物件はこちら
- 宮崎県
マイページ物件数 - 1,537件
最近見た物件
-
-

-
- 中古マンション
- 2億5,800万円
-
神戸市中央区八幡通4丁目
-
JR東海道線三ノ宮
-
-
-

-
- 土地
- 4,490万円
-
姫路市花田町小川
-
JR山陽本線姫路
-
-
-

-
- 中古一戸建て
- 940万円
-
岩国市青木町3丁目
-
JR山陽本線藤生
-
宮崎県中古一戸建て新着物件
-
-

-
- 中古一戸建て
- 1,180万円
-
都城市高崎町江平
-
温水
-
-
-

-
- 中古一戸建て
- 980万円
-
都城市都北町
-
都北町
-
-
-

-
- 中古一戸建て
- 2,380万円
-
宮崎市恒久2丁目
-
JR日豊本線南宮崎駅
-
-
-

-
- 中古一戸建て
- 4,480万円
-
宮崎市月見ケ丘5丁目
-
JR日豊本線加納駅
-
-
-

-
- 中古一戸建て
- 2,300万円
-
宮崎市江南2丁目
-
JR日豊本線南宮崎駅
-
-
-

-
- 中古一戸建て
- 2,250万円
-
宮崎市生目台東4丁目
-
JR日豊本線宮崎駅
-
-
-

-
- 中古一戸建て
- 1,030万円
-
宮崎市大字恒久
-
JR日豊本線南宮崎駅
-
- お近くの店舗を探す
-
おすすめ物件
-
-

-
- 中古一戸建て
- 2,610万円
-
宮崎市大字恒久
-
福祉センター前
-
-
-

-
- 中古一戸建て
- 1,150万円
-
宮崎市大字本郷北方
-
JR日南線田吉
-
-
-

-
- 中古一戸建て
- 1,700万円
-
宮崎市大字本郷北方
-
JR日南線田吉
-
-
-

-
- 中古一戸建て
- 1,580万円
-
宮崎市月見ケ丘6丁目
-
JR日豊本線加納
-
-
-

-
- 中古一戸建て
- 1,600万円
-
日南市時任町
-
JR日南線飫肥
-
-
-

-
- 中古一戸建て
- 980万円
-
宮崎市大字本郷北方
-
JR宮崎空港線宮崎空港
-
-
-

-
- 中古一戸建て
- 3,600万円
-
宮崎市高岡町飯田3丁目
-
JR日豊本線宮崎
-
-
-

-
- 中古一戸建て
- 2,900万円
-
宮崎市田野町乙
-
JR日豊本線田野
-
-
-

-
- 中古一戸建て
- 480万円
-
日南市南郷町中村乙
-
JR日南線南郷
-
-
-

-
- 中古一戸建て
- 1,400万円
-
宮崎市堀川町
-
JR日豊本線宮崎
-



























担当エージェント:小玉 賢太
水回り設備を中心にリフォームされた住まいです。キッチンや浴室など新品に交換済みで快適にご入居いただけます。
小中学校や買い物施設も徒歩圏内にあり、生活利便性の高いエリアです。