東成区大今里南2丁目 中古戸建
掲載情報更新日:2026年04月18日 次回更新予定日:2026年05月02日
- 4,580万円
-
- 借入ご希望金額
万円 - 借入期間
年 - 借入金利
% - 月々のお支払い金額
円
- 借入ご希望金額
※ 月々のお支払例は目安の試算となりますので、実際の金額とは異なる場合がございます。詳しくは店舗までお問合わせください。
- 大阪市東成区大今里南2丁目
-
大阪市千日前線『今里』 徒歩5分 (約350m)
大阪市今里筋線『今里』 徒歩5分 (約350m)
近鉄大阪線『今里』 徒歩5分 (約400m)
東成区大今里南2丁目 中古戸建一戸建て | 物件情報
2025年9月リフォーム済 17帖の広々リビング 今里駅徒歩5分! 3沿線4駅利用!
☆月々12.9万円~
☆2025年9月リフォーム済
☆最寄駅から、なんば駅まで8分
☆3沿線4駅利用可
☆17帖LDK
☆駐車場1台&ハイルーフ車可!
☆近隣に学校、幼稚園、保育園、公園あり
☆複数スーパーあり
【内覧会開催中】
本日ご案内可能な場合もございます。
複数件併せてご内見も可能♪
他の掲載物件もまとめてご内見頂けます。気になる物件をお教え下さい。
☆0120ー684-571
お気軽にお電話ください♪
☆立地のポイント
【今里駅(大阪市千日前線/今里筋線)】徒歩約5分
【今里駅(近鉄大阪線)】徒歩約5分
【新深江駅(大阪市千日前線)】徒歩約7分
物件の設備
- 電気
- 公営水道
- 公共下水
- 都市ガス
物件の特徴
- 内装リフォーム済
- 3階建以上
- 即入居可
物件詳細情報
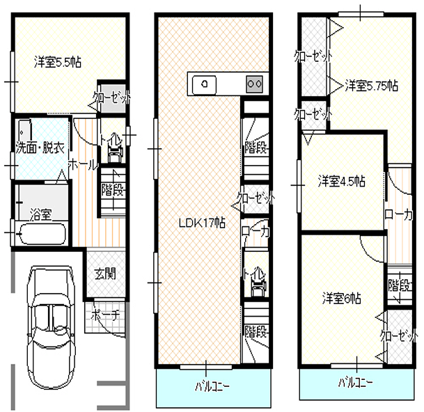
| 価格 | 4,580万円 | 間取り | 4LDK |
|---|---|---|---|
| 物件種別 | 中古一戸建て | ||
| 所在地 | 大阪府大阪市東成区大今里南2丁目 | ||
| アクセス |
|
||
| 建物面積 | 92.54㎡ | 駐車場 | あり |
| 築年月 | 2022年(令和4年)01月築 | ||
| 建物構造 | 木造 3階建 | 工法 | |
| 主要採光 | 西向 | バルコニー | |
| 保証・評価 | |||
| リフォーム | 【内装】2025年09月 全室クロス |
||
| 土地面積 | 公54.77㎡(16.56坪) | 接道 | 西側(私道)幅 約4.0m 間口 約4.40m |
| 私道 | セットバック | ||
| 地目 | 宅地 | 地勢 | 平坦 |
| 権利 | 所有権 |
||
| 都市計画 | 市街化区域 |
用途地域 | 1種住居 |
| 建ぺい/容積率 | 80% / 240% | 土地国土法 | |
| 許可番号 | 建築基準法 | ||
| 法令制限 | |||
| 小学区 | 片江小学校 徒歩2分 (約150m) | 中学区 | 相生中学校 徒歩15分 (約1200m) |
| 現況 | 空 | 引渡 | 即 |
| その他費用 | |||
| 備考 | 令和4年1月築浅物件! | ||
| 物件番号 | 4411873 | 取引態様 | 媒介 |
取扱店舗情報
| 電話番号 | 050-5805-9447 |
|---|---|
| 所在地 | 〒536-0006 大阪府大阪市城東区野江4丁目10-13 クリエイト野江内代1F |
| 営業時間 | 10:00~19:00 |
| 定休日 | なし |
| 宅建免許番号 | 国土交通大臣(1)第10706号 |
| アクセス | 店舗への地図はこちら |

来店ご予約
大阪府大阪市東成区で価格が似ている物件はこちら
- 大阪府
マイページ物件数 - 18,272件
大阪府中古一戸建て新着物件
- お近くの店舗を探す
-
おすすめ物件
-
-

-
- 中古一戸建て
- 2,980万円
-
八尾市八尾木3丁目
-
JR関西本線志紀
-
-
-

-
- 中古一戸建て
- 4,280万円
-
八尾市八尾木東3丁目
-
JR関西本線志紀
-
-
-

-
- 中古一戸建て
- 1,600万円
-
八尾市垣内4丁目
-
近鉄信貴線信貴山口
-
-
-

-
- 中古一戸建て
- 2,850万円
-
摂津市鳥飼新町1丁目
-
大阪モノレール沢良宜
-
-
-

-
- 中古一戸建て
- 2,180万円
-
摂津市鳥飼新町2丁目
-
大阪モノレール南摂津
-
-
-

-
- 中古一戸建て
- 2,250万円
-
岸和田市下野町1丁目
-
南海電鉄本線春木
-
-
-

-
- 中古一戸建て
- 3,380万円
-
八尾市東山本町6丁目
-
近鉄大阪線河内山本
-
-
-

-
- 中古一戸建て
- 2,698万円
-
高槻市東五百住町3丁目
-
阪急電鉄京都線富田
-
-
-

-
- 中古一戸建て
- 2,280万円
-
和泉市上町
-
JR阪和線北信太
-
-
-

-
- 中古一戸建て
- 2,080万円
-
八尾市太田2丁目
-
大阪市谷町線八尾南
-
















担当エージェント:尾関 親代
なんば駅まで8分の好立地!
通勤通学に便利な3沿線4駅利用可!
落ち着いた住環境でファミリー層にも単身者にも◎♪
住宅ローン相談会開催中です!
ぜひお気軽にお問い合わせください!