西馬橋1丁目 中古戸建
掲載情報更新日:2026年01月15日 次回更新予定日:2026年01月29日
- 2,990万円
-
- 借入ご希望金額
万円 - 借入期間
年 - 借入金利
% - 月々のお支払い金額
円
- 借入ご希望金額
※ 月々のお支払例は目安の試算となりますので、実際の金額とは異なる場合がございます。詳しくは店舗までお問合わせください。
- 松戸市西馬橋1丁目
-
JR千代田・常磐緩行線『馬橋』 徒歩12分 (約960m)
流鉄流山線『馬橋』 徒歩12分 (約960m)
西馬橋1丁目 中古戸建一戸建て | 物件情報
◆コンビニ徒歩2分小学校5分 ◆リフォーム履歴あり ◆2面バルコニー
「松戸市は、「やさシティ、まつど。」を掲げ、子育てしやすい街づくりに取り組んでいます。アンケート調査により育児ニーズを拾い上げ、妊娠・出産・子育て、保育園・幼稚園、小学生・中学生など成長段階にあわせた支援を実施しています。妊娠期からさまざまな相談ができる「親子すこやかセンター」や、赤ちゃんとママパパが一緒に遊べる「おやこDE広場」や「子育て支援センター」の開設。保育所の一時預かり支援や、バスで指定の幼稚園への送迎をおこなう「送迎保育ステーション」を設置するなど、支援内容は実にさまざまです。
松戸市は、子ども医療費助成制度もあるので、0歳から中学校3年生の、医療費(通院・入院・調剤)の患者自己負担額との差額を市が助成してくれますし、深夜でも応対してくれる子どものための病院「夜間小児急病センター」があるのも安心です。
物件の設備
- 公営水道
- 公共下水
- 都市ガス
- コンロ三口
- システムキッチン
- ユニットバス
- オートバス
- 追焚機能
- 浴室に窓
- トイレ2箇所
- 室内洗濯機置場
- 和室
- 一部フローリング
- クローゼット
- シューズボックス
- 2面バルコニー
物件の特徴
- 内装リフォーム後渡
- 耐震構造
- 小学校徒歩10分以内
- スーパーが近い
- 通風良好
- 陽当り良好
- 2階建
物件詳細情報
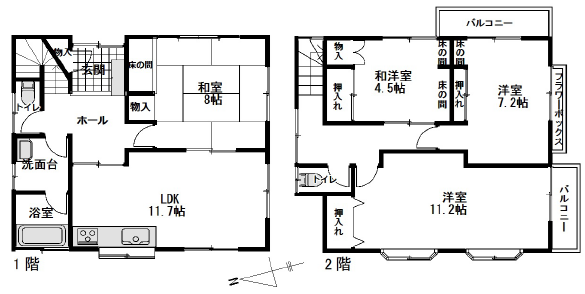
| 価格 | 2,990万円 | 間取り | 4LDK |
|---|---|---|---|
| 物件種別 | 中古一戸建て | ||
| 所在地 | 千葉県松戸市西馬橋1丁目 | ||
| アクセス |
|
||
| 建物面積 | 公109.3㎡ | 駐車場 | あり 普通:1台 |
| 築年月 | 1993年(平成5年)11月築 | ||
| 建物構造 | 木造 2階建 | 工法 | |
| 主要採光 | 南向 | バルコニー | |
| 保証・評価 | |||
| リフォーム | |||
| 土地面積 | 公130㎡(39.32坪) | 接道 | |
| 私道 | セットバック | ||
| 地目 | 宅地 | 地勢 | |
| 権利 | 所有権 |
||
| 都市計画 | 市街化区域 |
用途地域 | 1種住居 |
| 建ぺい/容積率 | 60% / 200% | 土地国土法 | |
| 許可番号 | 建築基準法 | ||
| 法令制限 | 高度地区・景観法 | ||
| 小学区 | 馬橋小学校 徒歩5分 (約400m) | 中学区 | 新松戸南中学校 徒歩9分 (約700m) |
| 現況 | 空 | 引渡 | 相談 |
| その他費用 | |||
| 周辺環境 | 馬橋小学校 徒歩5分 (約400m) 松戸ひばり保育園 徒歩4分 (約270m) セブンイレブン 西馬橋2丁目店 徒歩4分 (約290m) マツモトキヨシ 馬橋店 徒歩10分 (約730m) 東武ストア 馬橋店 徒歩9分 (約720m) 松戸馬橋西郵便局 徒歩11分 (約870m) コモディイイダ馬橋店 徒歩11分 (約870m) 新松戸南中学校 徒歩9分 (約700m) |
||
| 備考 | |||
| 物件番号 | 4415049 | 取引態様 | 媒介 |
取扱店舗情報
ハウスドゥ 馬橋駅前 株式会社マイエステート 店舗詳細ページへ
| 電話番号 | 047-382-5482 |
|---|---|
| 所在地 | 〒271-0047 千葉県松戸市西馬橋幸町36 |
| 営業時間 | 10:00~18:00 |
| 定休日 | 水曜日、年末年始 |
| 宅建免許番号 | 千葉県知事(1)第18010号 |
| アクセス | 店舗への地図はこちら |

来店ご予約
千葉県松戸市で価格が似ている物件はこちら
- 千葉県
マイページ物件数 - 2,824件
最近見た物件
-
-

-
- 新築一戸建て
- 2,860万円
-
米子市旗ヶ崎9丁目
-
JR境線河崎口
-
-
-

-
- 新築一戸建て
- 3,398万円
-
熊本市東区花立6丁目
-
熊本市健軍線健軍町
-
-
-

-
- 中古マンション
- 3,290万円
-
北九州市八幡西区鉄王1丁目
-
筑豊電気鉄道穴生
-
千葉県中古一戸建て新着物件
-
-

-
- 中古一戸建て
- 2,299万円
-
松戸市大金平5丁目
-
JR千代田・常磐緩行線北小金駅
-
-
-

-
- 中古一戸建て
- 2,299万円
-
松戸市大金平5丁目
-
流鉄流山線小金城趾駅
-
-
-

-
- 中古一戸建て
- 2,580万円
-
八千代市上高野
-
山万ユーカリが丘線井野駅
-
-
-

-
- 中古一戸建て
- 1,300万円
-
船橋市夏見3丁目
-
東武野田線新船橋駅
-
-
-

-
- 中古一戸建て
- 2,380万円
-
船橋市八木が谷1丁目
-
京成電鉄松戸線二和向台駅
-
-
-

-
- 中古一戸建て
- 1,720万円
-
船橋市田喜野井1丁目
-
京成電鉄松戸線前原駅
-
-
-

-
- 中古一戸建て
- 2,380万円
-
船橋市三山9丁目
-
京成本線実籾駅
-
- お近くの店舗を探す
-
おすすめ物件
-
-

-
- 中古一戸建て
- 3,780万円
-
成田市はなのき台2丁目
-
JR成田線成田
-
-
-

-
- 中古一戸建て
- 3,499万円
-
取手市井野
-
JR常磐線取手
-
-
-

-
- 中古一戸建て
- 5,980万円
-
市川市八幡5丁目
-
京成本線鬼越
-
-
-

-
- 中古一戸建て
- 1,480万円
-
松戸市古ケ崎
-
JR常磐線松戸
-
-
-

-
- 中古一戸建て
- 980万円
-
柏市南逆井3丁目
-
京成電鉄松戸線五香
-
-
-

-
- 中古一戸建て
- 1,180万円
-
松戸市上本郷
-
JR千代田・常磐緩行線北松戸
-
-
-

-
- 中古一戸建て
- 5,380万円
-
柏市西山1丁目
-
京成電鉄松戸線常盤平
-
-
-

-
- 中古一戸建て
- 780万円
-
松戸市平賀
-
JR千代田・常磐緩行線北小金
-
-
-

-
- 中古一戸建て
- 2,380万円
-
柏市東中新宿1丁目
-
東武野田線新柏
-
-
-

-
- 中古一戸建て
- 2,380万円
-
成田市玉造2丁目
-
JR成田線成田
-































担当エージェント:小野 龍成
□■ハウスドゥ 馬橋駅前のおすすめポイント■□
◆生活に必要な施設が徒歩圏内に揃った暮らしやすい住環境
◆駐車スペースございます
◆リフォーム履歴ありのきれいなお住まいです
松戸市は自然があふれる空間との調和が、ほどよく都会で暮らしやすいと感じる街です。江戸川河川敷にはウォーキングに最適な「水辺の健康エコロード」やポピーやコスモスなどの花が咲き乱れる「江戸川松戸フラワーライン」があります。また美しい庭園が魅力の「戸定が丘歴史公園」、あじさいの名所でもある「松戸中央公園」も。少し足をのばせば「21世紀の森と広場」など、自然に触れられる場所も多いです。