宮崎市生目台東4丁目の中古戸建
掲載情報更新日:2026年02月26日 次回更新予定日:2026年03月12日
- 2,380万円
-
- 借入ご希望金額
万円 - 借入期間
年 - 借入金利
% - 月々のお支払い金額
円
- 借入ご希望金額
※ 月々のお支払例は目安の試算となりますので、実際の金額とは異なる場合がございます。詳しくは店舗までお問合わせください。
- 宮崎市生目台東4丁目
-
JR日豊本線『南宮崎』 徒歩60分 (約4790m)
JR日豊本線『宮崎』 徒歩75分 (約5950m)
JR日豊本線『宮崎神宮』 徒歩95分 (約7580m)
『生目台東4丁目バス停』 徒歩4分 (約300m)
宮崎市生目台東4丁目一戸建て | 物件情報
\インスペクション済・白蟻予防・外壁塗装・建物内部リフォーム工事済/《いつでもご案内可能です♪》
▼オススメポイント
◎高台
◎宮崎県住宅供給公社施工の建物です
◎インスペクション済
◎白蟻予防、外壁塗装、建物内部リフォーム工事済
◎都市ガス給湯器 &リモコン・各部屋照明・TVモニターホン
シューズボックス・トイレウォシュレット・キッチン・シャンプー
ドレッサー他新調
◎耐震基準適合証明書発行可能
▼立地
◎生目台東小学校…徒歩8分(610m)
◎生目台中学校…徒歩8分(610m)
◎山形屋ストアー生目台カリヨン店…徒歩6分(460m)
◆◇当店について◇◆
〇不動産売買仲介専門FCで
店舗数第1位のハウスドゥ加盟店です
安心してご相談ください
■弊社サービスご案内
〇資金計画の無料相談
〇ハウスメーカー・工務店のご紹介
〇オプション、リフォーム、太陽光発電
のお見積もりから施工まで
〇保険の加入や引越しの段取り
物件の設備
- 公営水道
- 下水道
- 都市ガス
- カウンターキッチン
- バス
- ユニットバス
- 追焚機能
- トイレ
- 温水洗浄便座
- 洗髪洗面化粧台
- モニタ付インターホン
- シューズボックス
物件の特徴
- 高台に立地
- 2階建
物件詳細情報
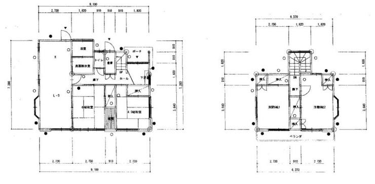
| 価格 | 2,380万円 | 間取り | 4LDK |
|---|---|---|---|
| 物件種別 | 中古一戸建て | ||
| 所在地 | 宮崎県宮崎市生目台東4丁目 | ||
| アクセス |
|
||
| 建物面積 | 101.07㎡ | 駐車場 | あり 普通:2台 |
| 築年月 | 1991年(平成3年)12月築 | ||
| 建物構造 | 木造 2階建 | 工法 | |
| 主要採光 | バルコニー | ||
| 保証・評価 | |||
| リフォーム | |||
| 土地面積 | 252.32㎡(76.32坪) | 接道 | |
| 私道 | セットバック | ||
| 地目 | 宅地 | 地勢 | |
| 権利 | 所有権 |
||
| 都市計画 | 市街化区域 |
用途地域 | 1種低層 |
| 建ぺい/容積率 | 40% / 60% | 土地国土法 | |
| 許可番号 | 建築基準法 | ||
| 法令制限 | |||
| 小学区 | 生目台東小学校 徒歩8分 (約610m) | 中学区 | 生目台中学校 徒歩8分 (約610m) |
| 現況 | 空 | 引渡 | 相談 |
| その他費用 | |||
| 周辺環境 | アリスこどもの家幼稚園 徒歩5分 (約340m) 生目台中学校 徒歩8分 (約610m) 生目台東小学校 徒歩8分 (約610m) 宮崎生目台郵便局 徒歩5分 (約370m) 生目台幼稚園 徒歩6分 (約440m) 山形屋ストアー 生目台カリヨン店 徒歩6分 (約430m) 生目台カリヨンクリニック 徒歩6分 (約430m) 宮崎銀行 生目台出張所 徒歩7分 (約540m) 宮崎西幼稚園 徒歩11分 (約840m) |
||
| 備考 | ◎高台 ◎宮崎県住宅供給公社施工の建物です ◎インスペクション済 ◎白蟻予防工事 外壁塗装工事 建物内部リフォーム工事済 ◎都市ガス給湯器 &リモコン・各部屋照明・TVモニターホン シューズボックス・トイレウォシュレット・キッチン・シャンプー ドレッサー他新調しました ◎耐震基準適合証明書発行可能 |
||
| 物件番号 | 4416223 | 取引態様 | 媒介 |
取扱店舗情報
| 電話番号 | 0985-66-0753 |
|---|---|
| 所在地 | 〒880-0872 宮崎県宮崎市永楽町17 |
| 営業時間 | 9:00~18:00 |
| 定休日 | 水曜日、年末年始 |
| 宅建免許番号 | 宮崎県知事(1)第5078号 |
| アクセス | 店舗への地図はこちら |

来店ご予約
宮崎県宮崎市で価格が似ている物件はこちら
- 宮崎県
マイページ物件数 - 1,608件
最近見た物件
-
-

-
- 新築一戸建て
- 2,690万円
-
宇都宮市宝木本町
-
JR東北本線宇都宮
-
-
-

-
- 新築一戸建て
- 2,598万円
-
鹿児島市大明丘3丁目
-
大明ヶ丘中央バス停
-
-
-

-
- 中古一戸建て
- 770万円
-
鹿児島市西佐多町
-
吉田麓バス停
-
宮崎県中古一戸建て新着物件
-
-

-
- 中古一戸建て
- 1,700万円
-
宮崎市大字本郷北方
-
JR日南線田吉駅
-
-
-

-
- 中古一戸建て
- 1,800万円
-
宮崎市高岡町飯田4丁目
-
JR日豊本線宮崎神宮駅
-
-
-

-
- 中古一戸建て
- 1,690万円
-
宮崎市佐土原町下田島
-
田島
-
-
-

-
- 中古一戸建て
- 1,400万円
-
宮崎市大字本郷北方
-
JR日南線田吉駅
-
-
-

-
- 中古一戸建て
- 2,580万円
-
宮崎市月見ケ丘6丁目
-
JR日豊本線加納駅
-
-
-

-
- 中古一戸建て
- 2,800万円
-
宮崎市大字島之内
-
JR日豊本線日向住吉駅
-
-
-

-
- 中古一戸建て
- 2,360万円
-
宮崎市大字田吉
-
JR日南線南方駅
-
- お近くの店舗を探す
-
おすすめ物件
-
-

-
- 中古一戸建て
- 1,350万円
-
宮崎市大塚町小原田
-
JR日豊本線宮崎
-
-
-

-
- 中古一戸建て
- 700万円
-
日南市南郷町中村乙
-
JR日南線南郷
-
-
-

-
- 中古一戸建て
- 900万円
-
宮崎市清武町加納甲
-
JR日豊本線清武
-
-
-

-
- 中古一戸建て
- 2,000万円
-
宮崎市江南2丁目
-
JR日豊本線南宮崎
-
-
-

-
- 中古一戸建て
- 280万円
-
宮崎市佐土原町東上那珂
-
野久尾バス停
-
-
-

-
- 中古一戸建て
- 1,990万円
-
宮崎市吉村町曽師前
-
JR日豊本線宮崎
-
-
-

-
- 中古一戸建て
- 2,300万円
-
宮崎市学園木花台南3丁目
-
JR日南線木花
-
-
-

-
- 中古一戸建て
- 2,900万円
-
宮崎市田野町乙
-
JR日豊本線田野
-
-
-

-
- 中古一戸建て
- 1,600万円
-
日南市時任町
-
JR日南線飫肥
-
-
-

-
- 中古一戸建て
- 690万円
-
宮崎市東宮1丁目
-
JR日南線南方
-






担当エージェント:ハウスドゥ宮崎中学校前ピア7
◎不動産の購入・売却・建築・リフォームのご相談なら古田敦也さんのテレビCMでおなじみの全国700店舗展開中のハウスドゥ宮崎中学校前へ!当店に相談してよかった!と大満足いただけるようにサポートいたします♪