高槻市淀の原町の中古戸建
掲載情報更新日:2026年03月20日 次回更新予定日:2026年04月03日
- 2,280万円
-
- 借入ご希望金額
万円 - 借入期間
年 - 借入金利
% - 月々のお支払い金額
円
- 借入ご希望金額
※ 月々のお支払例は目安の試算となりますので、実際の金額とは異なる場合がございます。詳しくは店舗までお問合わせください。
- 高槻市淀の原町
-
阪急電鉄京都線『上牧』 徒歩14分 (約1120m)
阪急電鉄京都線『水無瀬』 徒歩15分 (約1200m)
高槻市淀の原町一戸建て | 物件情報
物件の設備
- 電気
- 上水道
- 下水道
- 都市ガス
- 給湯
- システムキッチン
- バス
- 浴室に窓
- トイレ
- 室内洗濯機置場
- 洗髪洗面化粧台
- 洗面所独立
- 和室
- フローリング張替
- クローゼット
- 屋根裏収納
- バルコニー
- 南面バルコニー
物件の特徴
- 内装リフォーム済
- 南側道路面す
- 3階建以上
- 平坦地
- 整形地
- 即入居可
物件詳細情報
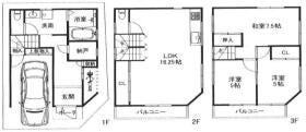
| 価格 | 2,280万円 | 間取り | 3LDK |
|---|---|---|---|
| 物件種別 | 中古一戸建て | ||
| 所在地 | 大阪府高槻市淀の原町40-11 | ||
| アクセス |
|
||
| 建物面積 | 公81.9㎡ | 駐車場 | あり 普通:1台 |
| 築年月 | 1999年(平成11年)08月築 | ||
| 建物構造 | 木造 3階建 | 工法 | |
| 主要採光 | 南向 | バルコニー | |
| 保証・評価 | |||
| リフォーム | 【水回り】2025年08月 キッチン・浴室・トイレ・洗面・給湯器 【内装】2025年08月 壁、天井 ・床 ・全室クロス |
||
| 土地面積 | 公44.34㎡(13.41坪) | 接道 | 南側(公道)幅 約4.0m 間口 約4.50m |
| 私道 | セットバック | ||
| 地目 | 宅地 | 地勢 | |
| 権利 | 所有権 |
||
| 都市計画 | 市街化区域 |
用途地域 | 1種中高 |
| 建ぺい/容積率 | 60% / 200% | 土地国土法 | |
| 許可番号 | 建築基準法 | ||
| 法令制限 | |||
| 小学区 | 上牧小学校 徒歩20分 (約1554m) | 中学区 | 五領中学校 徒歩29分 (約2291m) |
| 現況 | 空 | 引渡 | 即 |
| その他費用 | |||
| 備考 | |||
| 物件番号 | 4416234 | 取引態様 | 媒介 |
取扱店舗情報
ハウスドゥ 高槻富田 株式会社コンフォート住宅販売 店舗詳細ページへ
| 電話番号 | 072-668-2246 |
|---|---|
| 所在地 | 〒569-0814 大阪府高槻市富田町3丁目15-15 |
| 営業時間 | 10:00~19:00 |
| 定休日 | 水曜日、年末年始 |
| 宅建免許番号 | 大阪府知事(2)第61490号 |
| アクセス | 店舗への地図はこちら |

来店ご予約
大阪府高槻市で価格が似ている物件はこちら
- 大阪府
マイページ物件数 - 18,088件
最近見た物件
-
-

-
- 中古一戸建て
- 2,650万円
-
豊田市市木町10丁目
-
名鉄豊田線豊田市
-
-
-

-
- 新築一戸建て
- 2,888万円
-
佐賀市諸富町大字諸富津
-
JR長崎本線佐賀
-
-
-

-
- 中古一戸建て
- 2,298万円
-
熊本市東区沼山津2丁目
-
熊本市健軍線健軍町
-
大阪府中古一戸建て新着物件
-
-

-
- 中古一戸建て
- 3,300万円
-
泉南郡熊取町五門東4丁目
-
JR阪和線熊取駅
-
-
-

-
- 中古一戸建て
- 880万円
-
泉南郡熊取町大宮3丁目
-
JR阪和線熊取駅
-
-
-

-
- 中古一戸建て
- 1,680万円
-
大阪市城東区成育5丁目
-
大阪市今里筋線関目成育駅
-
-
-

-
- 中古一戸建て
- 3,490万円
-
大阪市東淀川区大桐5丁目
-
大阪市今里筋線瑞光四丁目駅
-
-
-

-
- 中古一戸建て
- 880万円
-
堺市東区日置荘西町7丁
-
南海電鉄高野線初芝駅
-
-
-

-
- 中古一戸建て
- 2,580万円
-
岸和田市畑町3丁目
-
JR阪和線東岸和田駅
-
-
-

-
- 中古一戸建て
- 2,280万円
-
岸和田市摩湯町
-
南海電鉄泉北線和泉中央駅
-
- お近くの店舗を探す
-
おすすめ物件
-
-

-
- 中古一戸建て
- 1,050万円
-
高槻市東五百住町2丁目
-
阪急電鉄京都線富田
-
-
-

-
- 中古一戸建て
- 2,180万円
-
東大阪市稲葉1丁目
-
近鉄難波・奈良線河内花園
-
-
-

-
- 中古一戸建て
- 730万円
-
泉南郡熊取町山の手台3丁目
-
JR阪和線熊取
-
-
-

-
- 中古一戸建て
- 690万円
-
泉佐野市日根野
-
JR阪和線日根野
-
-
-

-
- 中古一戸建て
- 3,680万円
-
大阪市東住吉区東田辺1丁目
-
大阪市谷町線駒川中野
-
-
-

-
- 中古一戸建て
- 999万円
-
高槻市津之江北町
-
JR東海道線高槻
-
-
-

-
- 中古一戸建て
- 480万円
-
河内長野市末広町
-
南海電鉄高野線河内長野
-
-
-

-
- 中古一戸建て
- 3,680万円
-
高槻市芝生町2丁目
-
JR東海道線摂津富田
-
-
-

-
- 中古一戸建て
- 3,980万円
-
高槻市真上町3丁目
-
JR東海道線高槻
-
-
-

-
- 中古一戸建て
- 580万円
-
泉南市樽井9丁目
-
南海電鉄本線樽井
-



