三島市佐野見晴台1丁目の中古戸建
掲載情報更新日:2025年11月07日 次回更新予定日:2025年11月21日
- 1,897万円
-
- 借入ご希望金額
万円 - 借入期間
年 - 借入金利
% - 月々のお支払い金額
円
- 借入ご希望金額
※ 月々のお支払例は目安の試算となりますので、実際の金額とは異なる場合がございます。詳しくは店舗までお問合わせください。
- 三島市佐野見晴台1丁目
-
JR御殿場線『裾野』 車11分(約km)
三島市佐野見晴台1丁目一戸建て | 物件情報
【佐野小学校・北上中学校】内覧予約、柔軟に対応中!お気軽にお申し付け下さい。
ピンポイントのカスタマイズや、お好みの壁紙等お客様オンリーワンへのご変更のご相談も、お任せ下さい。
またご予算に応じました様々なプランもご用意致します。快適な家づくり・住み心地の良い家づくり、お客様ファーストでお手伝い致します!。どんな細かいこともご相談下さい。
物件の詳細以外にも資金計画のご相談承ります。
・初めての住宅ローンで不安です。
・いくら借り事ができるのだろう?
・頭金0円でも大丈夫かな?
・購入後も無理の無い物件価格とは?
・賃貸から住宅購入する際の予算はどうする?
・ライフプランに合った資金計画について
・今住んでる家の住宅ローンが残っていても住み替え出来るかな?
・自営業者だけど、勤続年数がまだ短くて、年収が低いのですが、パート勤務なので、育児休暇中でも大丈夫?様々な不安お話下さい。
弊社エージェントがご相談承ります。
事前審査も承っております。
お気軽にお申し付け下さい。
物件の設備
- 上水道
- 浄化槽
- 集中浄化槽
- プロパンガス
- 集中プロパン
- フローリング張替
物件の特徴
- 内装リフォーム済
- 2階建
物件詳細情報
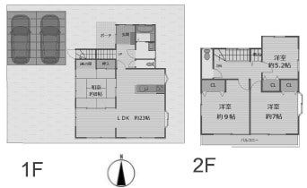
| 価格 | 1,897万円 | 間取り | 4LDK |
|---|---|---|---|
| 物件種別 | 中古一戸建て | ||
| 所在地 | 静岡県三島市佐野見晴台1丁目 | ||
| アクセス |
|
||
| 建物面積 | 126.9㎡ | 駐車場 | あり 普通:2台 |
| 築年月 | 1993年(平成5年)11月築 | ||
| 建物構造 | 木造 2階建 | 工法 | |
| 主要採光 | バルコニー | ||
| 保証・評価 | |||
| リフォーム | 【水回り】2025年06月 キッチン・浴室・トイレ・洗面・給湯器 【内装】2025年06月 壁、天井 ・床 ・建具 |
||
| 土地面積 | 227.59㎡(68.84坪) | 接道 | 北側(公道)幅 約5.5m 間口 約15.47m |
| 私道 | セットバック | ||
| 地目 | 宅地 | 地勢 | |
| 権利 | 所有権 |
||
| 都市計画 | 調整区域 |
用途地域 | 指定無 |
| 建ぺい/容積率 | 60% / 200% | 土地国土法 | |
| 許可番号 | 建築基準法 | ||
| 法令制限 | |||
| 小学区 | 佐野小学校 徒歩29分 (約2300m) | 中学区 | 北上中学校 徒歩39分 (約3100m) |
| 現況 | 空 | 引渡 | 相談 |
| その他費用 | |||
| 備考 | |||
| 物件番号 | 4420768 | 取引態様 | 媒介 |
取扱店舗情報
| 電話番号 | 055-969-3366 |
|---|---|
| 所在地 | 〒410-0312 静岡県沼津市原1418-40 |
| 営業時間 | 10:00~18:00 |
| 定休日 | 水曜日 |
| 宅建免許番号 | 静岡県知事(2)第14312号 |
| アクセス | 店舗への地図はこちら |

来店ご予約
静岡県三島市で価格が似ている物件はこちら
- 静岡県
マイページ物件数 - 2,786件
最近見た物件
-
-

-
- 中古一戸建て
- 3,030万円
-
名古屋市中川区月島町
-
名古屋臨海高速鉄道ささしまライブ
-
-
-

-
- 中古一戸建て
- 2,480万円
-
八尾市北本町3丁目
-
近鉄大阪線近鉄八尾
-
-
-

-
- 中古一戸建て
- 2,398万円
-
八尾市福万寺町南1丁目
-
近鉄大阪線河内山本
-
静岡県中古一戸建て新着物件
- お近くの店舗を探す
-
おすすめ物件
-
-

-
- 中古一戸建て
- 2,900万円
-
浜松市中央区早出町
-
遠州鉄道上島
-
-
-

-
- 中古一戸建て
- 3,350万円
-
静岡市葵区瀬名7丁目
-
JR東海道本線草薙
-
-
-

-
- 中古一戸建て
- 1,480万円
-
藤枝市岡部町三輪
-
JR東海道本線焼津
-
-
-

-
- 中古一戸建て
- 2,160万円
-
静岡市葵区大岩本町
-
JR東海道本線静岡
-
-
-

-
- 中古一戸建て
- 1,980万円
-
御殿場市深沢
-
JR御殿場線御殿場
-
-
-

-
- 中古一戸建て
- 1,300万円
-
裾野市千福
-
JR御殿場線裾野
-
-
-

-
- 中古一戸建て
- 2,780万円
-
富士市原田
-
岳南電車岳南原田
-
-
-

-
- 中古一戸建て
- 2,499万円
-
静岡市葵区羽鳥5丁目
-
JR東海道本線静岡
-
-
-

-
- 中古一戸建て
- 2,480万円
-
浜松市中央区富塚町
-
遠鉄バス「ごんげんや」停
-
-
-

-
- 中古一戸建て
- 2,000万円
-
駿東郡清水町湯川
-
JR御殿場線沼津
-









担当エージェント:尾形 翔哉
住宅ローンのご質問・ご相談、何なりとお申し付け下さい。
「物件の場所はどこ?」「○○エリアで物件を探しているんだけど?」
内見予約等、どんな事でもハウスドゥ沼津原までお気軽にお問い合わせ下さい♪