松山市北斎院町の中古戸建
掲載情報更新日:2026年04月30日 次回更新予定日:2026年05月14日
- 3,199万円
-
- 借入ご希望金額
万円 - 借入期間
年 - 借入金利
% - 月々のお支払い金額
円
- 借入ご希望金額
※ 月々のお支払例は目安の試算となりますので、実際の金額とは異なる場合がございます。詳しくは店舗までお問合わせください。
- 松山市北斎院町
-
『味生』 徒歩2分 (約160m)
松山市北斎院町一戸建て | 物件情報
2024年8月完成の未入居物件。最新の設備が揃っており、手続き後はすぐに新生活をスタートできます!
照明・カーテン付のオール電化住宅!即入居可能で、入居時の手間を抑えて賢く快適な新生活を始められます!
物件の設備
- 電気
- オール電化
- 上水道
- 下水道
- 浄水器
- 食器洗浄乾燥機
- カウンターキッチン
- システムキッチン
- バス1坪以上
- 追焚機能
- トイレ2箇所
- 温水洗浄便座
- 照明器具
- ディンプルキー
- モニタ付インターホン
- 火災警報器/報知機
- 24時間換気システム
- ウォークインクローゼット
- 床下収納
物件の特徴
- 南側道路面す
- 2階建
- バリアフリー
- 建築確認完了検査済証
- 即入居可
物件詳細情報
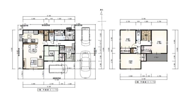
| 価格 | 3,199万円 | 間取り | 4LDK |
|---|---|---|---|
| 物件種別 | 中古一戸建て | ||
| 所在地 | 愛媛県松山市北斎院町 | ||
| アクセス |
|
||
| 建物面積 | 96.88㎡ | 駐車場 | なし |
| 築年月 | 2024年(令和6年)08月築 | ||
| 建物構造 | 木造 2階建 | 工法 | |
| 主要採光 | バルコニー | ||
| 保証・評価 | |||
| リフォーム | |||
| 土地面積 | 公128.94㎡(39坪) | 接道 | 南側(公道)幅 約5.0m 間口 約13.50m |
| 私道 | セットバック | ||
| 地目 | 宅地 | 地勢 | |
| 権利 | 所有権 |
||
| 都市計画 | 市街化区域 |
用途地域 | 1種住居 |
| 建ぺい/容積率 | 60% / 200% | 土地国土法 | |
| 許可番号 | 建築基準法 | ||
| 法令制限 | |||
| 小学区 | 味生第二小学校 徒歩10分 (約769m) | 中学区 | 津田中学校 徒歩11分 (約883m) |
| 現況 | 空 | 引渡 | 即 |
| その他費用 | |||
| 周辺環境 | 松山市役所味生支所 徒歩6分 (約420m) 味生第二小学校 徒歩9分 (約650m) 津田中学校 徒歩11分 (約850m) 西衣山駅 徒歩26分 (約2050m) セブンスター南江戸店 徒歩23分 (約1830m) 松山市役所生石支所 徒歩26分 (約2060m) JAえひめ生石支所 徒歩27分 (約2150m) |
||
| 備考 | |||
| 物件番号 | 4427580 | 取引態様 | 媒介 |
取扱店舗情報
ハウスドゥ 松山富久 リビング・ハーモニー株式会社 店舗詳細ページへ
| 電話番号 | 089-971-0077 |
|---|---|
| 所在地 | 〒791-8034 愛媛県松山市富久町430-2 |
| 営業時間 | 10:00~18:00 |
| 定休日 | 火曜日、水曜日、GW、お盆、年末年始 |
| 宅建免許番号 | 愛媛県知事(1)第5862号 |
| アクセス | 店舗への地図はこちら |

来店ご予約
愛媛県松山市で価格が似ている物件はこちら
- 愛媛県
マイページ物件数 - 3,668件
最近見た物件
-
-

-
- 中古マンション
- 2,190万円
-
名古屋市千種区池上町2丁目
-
名古屋市名城線自由ヶ丘
-
-
-

-
- 中古マンション
- 2,090万円
-
八王子市椚田町
-
京王高尾線狭間
-
-
-

-
- 新築一戸建て
- 5,380万円
-
川口市本町1丁目
-
埼玉高速鉄道川口元郷
-
愛媛県中古一戸建て新着物件
- お近くの店舗を探す
-
おすすめ物件
-
-

-
- 中古一戸建て
- 6,300万円
-
松山市清住2丁目
-
アイテムえひめ前 バス停
-
-
-

-
- 中古一戸建て
- 2,380万円
-
松山市土居町
-
伊予鉄バス南井門
-
-
-

-
- 中古一戸建て
- 2,780万円
-
松山市古川南3丁目
-
JR予讃線市坪
-
-
-

-
- 中古一戸建て
- 1,690万円
-
松山市来住町
-
伊予鉄道横河原線北久米
-
-
-

-
- 中古一戸建て
- 1,600万円
-
松山市鴨川2丁目
-
伊予鉄道本町線本町六丁目
-
-
-

-
- 中古一戸建て
- 280万円
-
伊予市稲荷
-
JR予讃線伊予市
-
-
-

-
- 中古一戸建て
- 2,650万円
-
松山市堀江町
-
JR予讃線堀江
-
-
-

-
- 中古一戸建て
- 1,500万円
-
松山市東垣生町
-
伊予鉄道郡中線鎌田
-
-
-

-
- 中古一戸建て
- 700万円
-
伊予市下吾川
-
伊予鉄道郡中線新川
-
-
-

-
- 中古一戸建て
- 7,970万円
-
松山市居相1丁目
-
伊予鉄バス椿神社前バス停まで徒歩
-










































