和歌山市大谷の中古戸建
掲載情報更新日:2025年12月10日 次回更新予定日:2025年12月24日
- 690万円
-
- 借入ご希望金額
万円 - 借入期間
年 - 借入金利
% - 月々のお支払い金額
円
- 借入ご希望金額
※ 月々のお支払例は目安の試算となりますので、実際の金額とは異なる場合がございます。詳しくは店舗までお問合わせください。
- 和歌山市大谷
-
南海電気鉄道加太線『紀ノ川』 徒歩30分 (約2400m)
JR紀勢本線『紀和』 徒歩44分 (約3500m)
JR阪和線『六十谷』 徒歩40分 (約3200m)
和歌山市大谷一戸建て | 物件情報
月々1.8万円~ 即内見可!
☆月々1.8万円~
☆陽当たり良好!
☆駐車場1台
【内覧会開催中】
本日ご案内可能な場合もございます。
複数件併せてご内見も可能♪
他の掲載物件もまとめてご内見頂けます。気になる物件をお教え下さい。
☆立地のポイント
【紀ノ川駅】徒歩約40分
【紀和駅】徒歩約44分
【六十谷駅】徒歩約40分
物件の特徴
- 前道6m以上
- 2階建
物件詳細情報
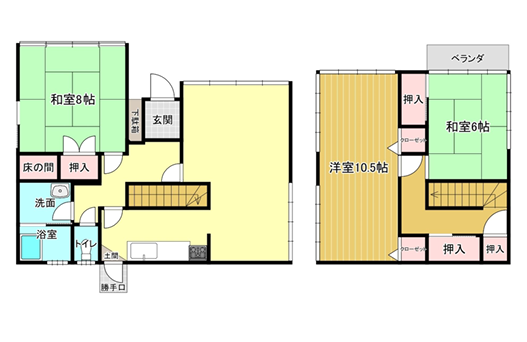
| 価格 | 690万円 | 間取り | 3LDK |
|---|---|---|---|
| 物件種別 | 中古一戸建て | ||
| 所在地 | 和歌山県和歌山市大谷 | ||
| アクセス |
|
||
| 建物面積 | 110.44㎡ | 駐車場 | あり 普通:1台 |
| 築年月 | 1987年(昭和62年)10月築 | ||
| 建物構造 | 鉄骨 2階建 | 工法 | |
| 主要採光 | バルコニー | ||
| 保証・評価 | |||
| リフォーム | |||
| 土地面積 | 公173.68㎡(52.53坪) | 接道 | 西側(公道)幅 約9.0m |
| 私道 | セットバック | ||
| 地目 | 宅地 | 地勢 | |
| 権利 | 所有権 |
||
| 都市計画 | 市街化区域 |
用途地域 | 1種低層 |
| 建ぺい/容積率 | 50% / 100% | 土地国土法 | |
| 許可番号 | 建築基準法 | ||
| 法令制限 | |||
| 小学区 | 楠見東小学校 徒歩15分 (約1200m) | 中学区 | 楠見中学校 徒歩1分 (約72m) |
| 現況 | 空 | 引渡 | 相談 |
| その他費用 | |||
| 備考 | ■現状有姿渡し ■契約不適合責任免責 ■集中浄化槽(月額費用別途要) ■給湯は電気温水器 ■風呂がま(ガス追い炊き) ■ガスコンロ |
||
| 物件番号 | 4436626 | 取引態様 | 媒介 |
取扱店舗情報
| 電話番号 | 050-5805-9447 |
|---|---|
| 所在地 | 〒536-0006 大阪府大阪市城東区野江4丁目10-13 クリエイト野江内代1F |
| 営業時間 | 10:00~19:00 |
| 定休日 | なし |
| 宅建免許番号 | 国土交通大臣(1)第10706号 |
| アクセス | 店舗への地図はこちら |

来店ご予約
和歌山県和歌山市で価格が似ている物件はこちら
![]()
![]()
-
- 中古一戸建て 2023.09.29
-
-
- 600万円
-
和歌山市有家
-
和歌山電鐵貴志川線「田中口駅」まで徒歩13分
- 4DK
-
-
- 中古一戸建て 2023.10.03
-
-
- 600万円
-
和歌山市金谷
-
JR和歌山線「布施屋駅」まで徒歩20分
- 5DK
-
-
- 中古一戸建て 2023.12.07
-
-
- 590万円
-
和歌山市松島
-
JR阪和線「紀伊中ノ島駅」まで徒歩30分
- 4LDK
-
-
- 中古一戸建て 2023.12.08
-
-
- 600万円
-
和歌山市有家
-
和歌山電鐵貴志川線「日前宮駅」まで徒歩14分
- 4DK
-
-
- 中古一戸建て 2024.02.22
-
-
- 720万円
-
和歌山市太田
-
和歌山電鐵貴志川線「日前宮駅」まで徒歩8分
- 3LDK+S
-
-
- 中古一戸建て 2024.03.05
-
-
- 640万円
-
和歌山市田尻
-
JR紀勢本線「宮前駅」まで徒歩27分
- 4DK
-
-
- 中古一戸建て 2024.03.07
-
-
- 650万円
-
和歌山市田尻
-
JR紀勢本線「宮前駅」まで徒歩5分
- 4LDK
-
-
- 中古一戸建て 2024.04.21
-
-
- 680万円
-
和歌山市和佐関戸
-
JR和歌山線「布施屋駅」まで徒歩12分
- 4DK
-
-
- 中古一戸建て 2024.04.21
-
-
- 750万円
-
和歌山市西田井
-
JR阪和線「紀伊駅」まで徒歩25分
- 3LDK
-
-
- 中古一戸建て 2024.05.03
-
-
- 680万円
-
和歌山市禰宜
-
JR和歌山線「千旦駅」まで徒歩21分
- 3LDK+S
-
-
- 中古一戸建て 2024.07.06
-
-
- 750万円
-
和歌山市平井
-
南海電鉄本線「紀ノ川駅」まで徒歩8分
- 5DK
-
-
- 中古一戸建て 2024.08.21
-
-
- 780万円
-
和歌山市杭ノ瀬
-
JR紀勢本線「宮前駅」まで徒歩12分
- 4LDK+S
-
-
- 中古一戸建て 2024.09.06
-
-
- 600万円
-
和歌山市粟
-
南海電鉄本線「紀ノ川駅」まで徒歩22分
- 7DK
-
-
- 中古一戸建て 2024.09.13
-
-
- 680万円
-
和歌山市和歌浦東1丁目
-
JR紀勢本線「紀三井寺駅」まで徒歩30分
- 5DK
-
-
- 中古一戸建て 2024.10.29
-
-
- 630万円
-
和歌山市毛見
-
和歌山バス浜の宮まで徒歩4分
- 7DK
-
-
- 中古一戸建て 2024.11.03
-
-
- 780万円
-
和歌山市杭ノ瀬
-
JR紀勢本線「宮前駅」まで徒歩12分
- 4LDK
-
-
- 中古一戸建て 2024.12.04
-
-
- 790万円
-
和歌山市西庄
-
南海電気鉄道加太線「八幡前駅」まで徒歩13分
- 3LDK+S
-
-
- 中古一戸建て 2024.12.05
-
-
- 600万円
-
和歌山市西浜
-
和歌山バス大浦まで徒歩7分
- 5LDK
-
-
- 中古一戸建て 2024.12.15
-
-
- 750万円
-
和歌山市平井
-
南海電鉄本線「紀ノ川駅」まで徒歩10分
- 5DK
-
-
- 中古一戸建て 2024.12.25
-
-
- 698万円
-
和歌山市和歌浦東2丁目
-
JR紀勢本線「紀三井寺駅」まで徒歩24分
- 8DK
-
-
- 中古一戸建て 2025.01.11
-
-
- 640万円
-
和歌山市田尻
-
JR紀勢本線「紀三井寺駅」まで徒歩27分
- 4DK
-
-
- 中古一戸建て 2025.01.19
-
-
- 780万円
-
和歌山市梅原
-
南海電気鉄道加太線「中松江駅」まで徒歩16分
- 3LDK
-
-
- 中古一戸建て 2025.01.24
-
-
- 690万円
-
和歌山市野崎
-
南海電鉄和歌山港線「和歌山市駅」まで徒歩26分
- 4DK
-
-
- 中古一戸建て 2025.01.24
-
-
- 600万円
-
和歌山市西庄
-
南海電気鉄道加太線「二里ヶ浜駅」まで徒歩3分
- 5DK
-
-
- 中古一戸建て 2025.02.09
-
-
- 680万円
-
和歌山市大谷
-
南海電鉄本線「紀ノ川駅」まで徒歩24分
- 7LDK
-
-
- 中古一戸建て 2025.02.23
-
-
- 600万円
-
和歌山市六十谷
-
JR阪和線「六十谷駅」まで徒歩18分
- 3LDK
-
-
- 中古一戸建て 2025.03.02
-
-
- 600万円
-
和歌山市西浜
-
南海電鉄和歌山港線「和歌山港駅」まで徒歩41分
- 5LDK
-
-
- 中古一戸建て 2025.03.04
-
-
- 780万円
-
和歌山市弘西
-
JR阪和線「紀伊駅」まで徒歩3分
- 5DK
-
-
- 中古一戸建て 2025.03.20
-
-
- 780万円
-
和歌山市弘西
-
JR阪和線「紀伊駅」まで徒歩3分
- 5DK
-
-
- 中古一戸建て 2025.03.20
-
-
- 600万円
-
和歌山市金谷
-
JR和歌山線「布施屋駅」まで徒歩20分
- 5DK
-
-
- 中古一戸建て 2025.03.28
-
-
- 685万円
-
和歌山市加納
-
JR阪和線「紀伊中ノ島駅」まで徒歩26分
- 3DK
-
-
- 中古一戸建て 2025.04.04
-
-
- 750万円
-
和歌山市吉礼
-
和歌山電鐵貴志川線「吉礼駅」まで徒歩6分
- 8DK
-
-
- 中古一戸建て 2025.04.05
-
-
- 790万円
-
和歌山市西庄
-
南海電気鉄道加太線「八幡前駅」まで徒歩13分
- 3LDK+S
-
-
- 中古一戸建て 2025.04.07
-
-
- 680万円
-
和歌山市加太
-
南海電気鉄道加太線「加太駅」まで徒歩22分
- 5DK
-
-
- 中古一戸建て 2025.04.15
-
-
- 790万円
-
和歌山市園部
-
JR阪和線「六十谷駅」まで徒歩24分
- 4LDK
-
-
- 中古一戸建て 2025.04.20
-
-
- 650万円
-
和歌山市加太
-
南海電気鉄道加太線「加太駅」まで徒歩5分
- 4DK
-
-
- 中古一戸建て 2025.04.21
-
-
- 600万円
-
和歌山市西庄
-
南海電気鉄道加太線「二里ヶ浜駅」まで徒歩4分
- 5DK
-
-
- 中古一戸建て 2025.05.16
-
-
- 590万円
-
和歌山市坂田
-
和歌山電鐵貴志川線「竈山駅」まで徒歩12分
- 4LDK
-
-
- 中古一戸建て 2025.05.23
-
-
- 680万円
-
和歌山市有本
-
JR阪和線「紀伊中ノ島駅」まで徒歩14分
- 5DK
-
-
- 中古一戸建て 2025.05.26
-
-
- 790万円
-
和歌山市黒田
-
JR阪和線「紀伊中ノ島駅」まで徒歩17分
- 3DK
-
-
- 中古一戸建て 2025.06.23
-
-
- 650万円
-
和歌山市西田井
-
JR阪和線「紀伊駅」まで徒歩25分
- 3LDK
-
-
- 中古一戸建て 2025.07.03
-
-
- 700万円
-
和歌山市井辺
-
和歌山電鐵貴志川線「日前宮駅」まで徒歩22分
- 5DK
-
-
- 中古一戸建て 2025.07.04
-
-
- 630万円
-
和歌山市田尻
-
JR紀勢本線「宮前駅」まで徒歩26分
- 4DK
-
-
- 中古一戸建て 2025.07.11
-
-
- 760万円
-
和歌山市松江中3丁目
-
南海電気鉄道加太線「中松江駅」まで徒歩5分
- 4DK
-
-
- 中古一戸建て 2025.07.15
-
-
- 690万円
-
和歌山市直川
-
JR阪和線「六十谷駅」まで徒歩23分
- 5DK
-
-
- 中古一戸建て 2025.07.15
-
-
- 690万円
-
和歌山市梅原
-
南海電気鉄道加太線「中松江駅」まで徒歩21分
- 4LDK
-
-
- 中古一戸建て 2025.07.16
-
-
- 690万円
-
和歌山市木ノ本
-
南海電気鉄道加太線「八幡前駅」まで徒歩24分
- 4DK
-
-
- 中古一戸建て 2025.07.16
-
-
- 690万円
-
和歌山市直川
-
JR阪和線「六十谷駅」
- 5DK
-
-
- 中古一戸建て 2025.08.17
-
-
- 690万円
-
和歌山市太田
-
和歌山電鐵貴志川線「田中口駅」
- 4LDK
-
-
- 中古一戸建て 2025.08.21
-
-
- 750万円
-
和歌山市西庄
-
南海電気鉄道加太線「西ノ庄駅」まで徒歩7分
- 1LDK+S
-
-
- 中古一戸建て 2025.10.04
-
-
- 700万円
-
和歌山市中筋日延
-
JR阪和線「紀伊駅」まで徒歩29分
- 5DK
-
-
- 中古一戸建て 2025.10.06
-
-
- 700万円
-
和歌山市中筋日延
-
JR阪和線「紀伊駅」まで徒歩39分
- 5DK
-
-
- 中古一戸建て 2025.10.06
-
-
- 630万円
-
和歌山市毛見
-
JR紀勢本線「黒江駅」まで徒歩29分
- 7DK
-
-
- 中古一戸建て 2025.10.30
-
-
- 698万円
-
和歌山市小豆島
-
JR阪和線「紀伊駅」まで徒歩28分
- 3DK
-
-
- 中古一戸建て 2025.10.30
-
-
- 650万円
-
和歌山市狐島
-
南海電気鉄道加太線「東松江駅」まで徒歩18分
- 6DK
-
-
- 中古一戸建て 2025.10.31
-
-
- 650万円
-
和歌山市狐島
-
南海電気鉄道加太線「東松江駅」まで徒歩18分
- 5DK
-
-
- 中古一戸建て 2025.11.01
-
-
- 780万円
-
和歌山市福島
-
北島まで徒歩5分
- 5DK+S
-
-
- 中古一戸建て 2025.11.01
-
-
- 698万円
-
和歌山市小豆島
-
JR和歌山線「田井ノ瀬駅」まで徒歩30分
- 3DK
-
-
- 中古一戸建て 2025.11.04
-
-
- 780万円
-
和歌山市下三毛
-
JR和歌山線「紀伊小倉駅」まで徒歩17分
- 5LDK
-
-
- 中古一戸建て 2025.11.08
-
-
- 790万円
-
和歌山市東小二里町
-
南海電鉄和歌山港線「和歌山港駅」まで徒歩42分
- 3LDK
-
-
-
中古一戸建て
2025.11.16
-
-
- 790万円
-
和歌山市黒田
-
和歌山電鐵貴志川線「和歌山駅」まで徒歩17分
- 3DK
-
-
中古一戸建て
2025.11.16
-
-
中古一戸建て
2025.11.16
-
-
- 790万円
-
和歌山市黒田
-
JR和歌山線「和歌山駅」まで徒歩17分
- 3DK
-
-
中古一戸建て
2025.11.16
-
-
中古一戸建て
2025.11.20
-
-
- 698万円
-
和歌山市小豆島
-
JR阪和線「紀伊駅」まで徒歩27分
- 3LDK
-
-
中古一戸建て
2025.11.20
-
-
中古一戸建て
2025.11.23
-
-
- 650万円
-
和歌山市加納
-
JR阪和線「紀伊中ノ島駅」まで徒歩22分
- 3LDK
-
-
中古一戸建て
2025.11.23
-
-
中古一戸建て
2025.11.27
-
-
- 650万円
-
和歌山市加納
-
JR阪和線「紀伊中ノ島駅」まで徒歩22分
- 3LDK
-
-
中古一戸建て
2025.11.27
-
-
中古一戸建て
2025.11.28
-
-
- 650万円
-
和歌山市加納
-
JR阪和線「紀伊中ノ島駅」まで徒歩22分
- 3LDK
-
-
中古一戸建て
2025.11.28
-
-
中古一戸建て
2025.12.03
-
-
- 680万円
-
和歌山市湊
-
南海電鉄和歌山港線「和歌山市駅」まで徒歩24分
- 4DK
-
-
中古一戸建て
2025.12.03
-
-
中古一戸建て
2025.12.07
-
-
- 780万円
-
和歌山市福島
-
南海電鉄本線「紀ノ川駅」まで徒歩17分
- 5DK+S
-
-
中古一戸建て
2025.12.07
- 和歌山県
マイページ物件数 - 1,330件
最近見た物件
和歌山県中古一戸建て新着物件
-
-

-
- 中古一戸建て
- 180万円
-
東牟婁郡串本町田原
-
JR紀勢本線紀伊田原駅
-
-
-

-
- 中古一戸建て
- 200万円
-
有田郡有田川町大字歓喜寺
-
JR紀勢本線藤並駅
-
-
-

-
- 中古一戸建て
- 100万円
-
紀の川市杉原
-
JR和歌山線粉河駅
-
-
-

-
- 中古一戸建て
- 380万円
-
新宮市仲之町2丁目
-
JR紀勢本線新宮駅
-
-
-

-
- 中古一戸建て
- 1,500万円
-
新宮市熊野地2丁目
-
JR紀勢本線新宮駅
-
-
-

-
- 中古一戸建て
- 300万円
-
東牟婁郡那智勝浦町大字北浜3丁目
-
JR紀勢本線紀伊勝浦駅
-
-
-

-
- 中古一戸建て
- 280万円
-
和歌山市関戸2丁目
-
JR紀勢本線紀三井寺駅
-
- お近くの店舗を探す
-
おすすめ物件
-
-

-
- 中古一戸建て
- 890万円
-
和歌山市北休賀町
-
JR和歌山線和歌山
-
-
-

-
- 中古一戸建て
- 2,780万円
-
和歌山市栄谷
-
南海電鉄本線和歌山大学前
-
-
-

-
- 中古一戸建て
- 3,300万円
-
和歌山市小倉
-
JR和歌山線紀伊小倉
-
-
-

-
- 中古一戸建て
- 2,100万円
-
和歌山市中筋日延
-
和歌山バス池の川
-
-
-

-
- 中古一戸建て
- 2,980万円
-
和歌山市栄谷
-
南海電鉄本線紀ノ川
-
-
-

-
- 中古一戸建て
- 450万円
-
和歌山市関戸2丁目
-
JR紀勢本線紀三井寺
-
-
-

-
- 中古一戸建て
- 1,900万円
-
和歌山市船所
-
南海電鉄本線紀ノ川
-
-
-

-
- 中古一戸建て
- 3,380万円
-
和歌山市栄谷
-
南海電鉄本線和歌山大学前
-
-
-

-
- 中古一戸建て
- 398万円
-
和歌山市神波
-
JR阪和線紀伊
-
-
-

-
- 中古一戸建て
- 2,780万円
-
和歌山市松島
-
JR阪和線紀伊中ノ島
-













担当エージェント:尾関 親代
落ち着いた住環境でファミリー層にも単身者にも◎♪
住宅ローン相談会開催中です!
ぜひお気軽にお問い合わせください!