鎌ケ谷市中沢新町の中古戸建
掲載情報更新日:2025年11月17日 次回更新予定日:2025年12月01日
- 1,430万円
-
- 借入ご希望金額
万円 - 借入期間
年 - 借入金利
% - 月々のお支払い金額
円
- 借入ご希望金額
※ 月々のお支払例は目安の試算となりますので、実際の金額とは異なる場合がございます。詳しくは店舗までお問合わせください。
- 鎌ケ谷市中沢新町
-
東武野田線『鎌ヶ谷』 徒歩12分 (約960m)
鎌ケ谷市中沢新町一戸建て | 物件情報
物件の設備
- 浄化槽
- 都市ガス
- システムキッチン
物件の特徴
- 即入居可
物件詳細情報
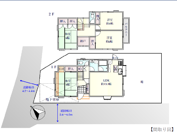
| 価格 | 1,430万円 | 間取り | 4LDK |
|---|---|---|---|
| 物件種別 | 中古一戸建て | ||
| 所在地 | 千葉県鎌ケ谷市中沢新町 | ||
| アクセス |
|
||
| 建物面積 | 公97.71㎡ | 駐車場 | あり |
| 築年月 | 1994年(平成6年)03月築 | ||
| 建物構造 | 木造 | 工法 | |
| 主要採光 | バルコニー | ||
| 保証・評価 | |||
| リフォーム | |||
| 土地面積 | 公125.2㎡(37.87坪) | 接道 | |
| 私道 | セットバック | ||
| 地目 | 宅地 | 地勢 | |
| 権利 | 所有権 |
||
| 都市計画 | 市街化区域 |
用途地域 | 1種低層 |
| 建ぺい/容積率 | 50% / 100% | 土地国土法 | |
| 許可番号 | 建築基準法 | ||
| 法令制限 | |||
| 小学区 | 中学区 | ||
| 現況 | 空 | 引渡 | 即 |
| その他費用 | |||
| 周辺環境 | 鎌ケ谷市立中部小学校 徒歩8分 (約580m) 鎌ケ谷駅 徒歩11分 (約880m) 鎌ケ谷市立第四中学校 徒歩21分 (約1640m) 初富駅 徒歩25分 (約1930m) |
||
| 備考 | |||
| 物件番号 | 4437061 | 取引態様 | 媒介 |
取扱店舗情報
ハウスドゥ 薬園台駅前 合同会社ネクステージ 店舗詳細ページへ
| 電話番号 | 047-401-0440 |
|---|---|
| 所在地 | 〒274-0077 千葉県船橋市薬円台6丁目5-1 |
| 営業時間 | 10:00~18:00 |
| 定休日 | 火曜日、水曜日 |
| 宅建免許番号 | 千葉県知事(1)第18892号 |
| アクセス | 店舗への地図はこちら |

来店ご予約
千葉県鎌ケ谷市で価格が似ている物件はこちら
- 千葉県
マイページ物件数 - 2,850件
最近見た物件
-
-

-
- 中古一戸建て
- 800万円
-
多治見市明和町3丁目
-
JR中央本線多治見
-
-
-

-
- 中古一戸建て
- 2,500万円
-
防府市大字田島
-
JR山陽本線防府
-
千葉県中古一戸建て新着物件
- お近くの店舗を探す
-
おすすめ物件
-
-

-
- 中古一戸建て
- 2,380万円
-
成田市玉造2丁目
-
JR成田線成田
-
-
-

-
- 中古一戸建て
- 1,480万円
-
松戸市古ケ崎
-
JR常磐線松戸
-
-
-

-
- 中古一戸建て
- 3,380万円
-
成田市はなのき台2丁目
-
JR成田線成田
-
-
-

-
- 中古一戸建て
- 2,080万円
-
柏市逆井5丁目
-
東武野田線逆井
-
-
-

-
- 中古一戸建て
- 3,880万円
-
成田市はなのき台2丁目
-
JR成田線成田
-
-
-

-
- 中古一戸建て
- 2,880万円
-
木更津市八幡台3丁目
-
JR内房線木更津
-
-
-

-
- 中古一戸建て
- 2,380万円
-
松戸市根木内
-
JR千代田・常磐緩行線北小金
-
-
-

-
- 中古一戸建て
- 2,680万円
-
野田市光葉町2丁目
-
東武野田線七光台
-
-
-

-
- 中古一戸建て
- 3,499万円
-
取手市井野
-
JR常磐線取手
-
-
-

-
- 中古一戸建て
- 5,380万円
-
柏市西山1丁目
-
京成電鉄松戸線常盤平
-













