4部屋とダイニングキッチン 高野台2丁目 戸建
掲載情報更新日:2026年01月04日 次回更新予定日:2026年01月18日
- 1,430万円
-
- 借入ご希望金額
万円 - 借入期間
年 - 借入金利
% - 月々のお支払い金額
円
- 借入ご希望金額
※ 月々のお支払例は目安の試算となりますので、実際の金額とは異なる場合がございます。詳しくは店舗までお問合わせください。
- 船橋市高野台2丁目
-
京成電鉄松戸線『二和向台』 徒歩22分 (約1700m)
京成電鉄松戸線『鎌ヶ谷大仏』 徒歩16分 (約1210m)
4部屋とダイニングキッチン 高野台2丁目 戸建一戸建て | 物件情報
☆HouseDo薬園台駅前のアピールポイント☆
戸建て・マンション・土地など どんな物件でもご紹介可能!
ローンに不安がある方も安心、資金計画から丁寧にサポートさせて頂きます!
外国籍のお客様もご相談ください、安心してお取引いただけます。
地域密着ならではの最新情報と豊富な実績で、理想のお住まい探しをお手伝いします!
☆HouseDo薬園台駅前の営業内容☆
新築戸建・中古戸建・中古マンションの売買仲介
不動産の買取・査定・資産活用のご相談
住宅ローン相談・リフォーム提案
物件の設備
- 電気
- 上水道
- 下水道
- 公共下水
- 都市ガス
- コンロ三口
- グリル
- ガスオーブン
- カウンターキッチン
- システムキッチン
- ユニットバス
- 追焚機能
- トイレ2箇所
- エアコン2基
- 洗濯乾燥機
- ベッド付
- 照明器具
- オートロック
- クッションフロア
- クローゼット2箇所
- 納戸
物件の特徴
- 2階建
物件詳細情報
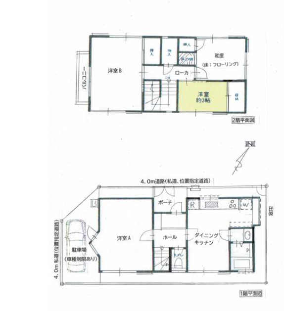
| 価格 | 1,430万円 | 間取り | 4DK |
|---|---|---|---|
| 物件種別 | 中古一戸建て | ||
| 所在地 | 千葉県船橋市高野台2丁目 | ||
| アクセス |
|
||
| 建物面積 | 73.5㎡ | 駐車場 | なし |
| 築年月 | 1979年(昭和54年)05月築 | ||
| 建物構造 | 木造 2階建 | 工法 | |
| 主要採光 | バルコニー | ||
| 保証・評価 | |||
| リフォーム | |||
| 土地面積 | 119㎡(35.99坪) | 接道 | |
| 私道 | セットバック | ||
| 地目 | 宅地 | 地勢 | |
| 権利 | 所有権 |
||
| 都市計画 | 市街化区域 |
用途地域 | |
| 建ぺい/容積率 | 50% / 100% | 土地国土法 | |
| 許可番号 | 建築基準法 | ||
| 法令制限 | |||
| 小学区 | 八木が谷小学校 徒歩15分 (約1190m) | 中学区 | 八木が谷中学校 徒歩22分 (約1710m) |
| 現況 | 空 | 引渡 | 相談 |
| その他費用 | |||
| 周辺環境 | 寺尾ストア 徒歩15分 (約1160m) 北総白井病院 徒歩17分 (約1340m) 鎌ケ谷大仏駅 徒歩16分 (約1210m) 船橋市立八木が谷小学校 徒歩15分 (約1190m) 鎌ヶ谷南初富郵便局 徒歩19分 (約1450m) 船橋市立八木が谷中学校 徒歩22分 (約1710m) 二和向台駅 徒歩22分 (約1700m) |
||
| 備考 | |||
| 物件番号 | 4438005 | 取引態様 | 媒介 |
取扱店舗情報
ハウスドゥ 薬園台駅前 合同会社ネクステージ 店舗詳細ページへ
| 電話番号 | 047-401-0440 |
|---|---|
| 所在地 | 〒274-0077 千葉県船橋市薬円台6丁目5-1 |
| 営業時間 | 10:00~18:00 |
| 定休日 | 火曜日、水曜日 |
| 宅建免許番号 | 千葉県知事(1)第18892号 |
| アクセス | 店舗への地図はこちら |

来店ご予約
千葉県船橋市で価格が似ている物件はこちら
- 千葉県
マイページ物件数 - 2,806件
千葉県中古一戸建て新着物件
- お近くの店舗を探す
-
おすすめ物件
-
-

-
- 中古一戸建て
- 1,480万円
-
松戸市古ケ崎
-
JR常磐線松戸
-
-
-

-
- 中古一戸建て
- 2,380万円
-
柏市東中新宿1丁目
-
東武野田線新柏
-
-
-

-
- 中古一戸建て
- 3,780万円
-
成田市はなのき台2丁目
-
JR成田線成田
-
-
-

-
- 中古一戸建て
- 3,499万円
-
取手市井野
-
JR常磐線取手
-
-
-

-
- 中古一戸建て
- 980万円
-
柏市南逆井3丁目
-
京成電鉄松戸線五香
-
-
-

-
- 中古一戸建て
- 2,380万円
-
成田市玉造2丁目
-
JR成田線成田
-
-
-

-
- 中古一戸建て
- 5,380万円
-
柏市西山1丁目
-
京成電鉄松戸線常盤平
-
-
-

-
- 中古一戸建て
- 1,180万円
-
松戸市上本郷
-
JR千代田・常磐緩行線北松戸
-
-
-

-
- 中古一戸建て
- 5,980万円
-
市川市八幡5丁目
-
京成本線鬼越
-
-
-

-
- 中古一戸建て
- 780万円
-
松戸市平賀
-
JR千代田・常磐緩行線北小金
-


















担当エージェント:むぎちゃん
★先着10組限定!今だけ!弊社独自キャンペーン★
物件内覧、弊社アンケートにご記入でギフトカード1,000円分プレゼントキャンペーン開催中!
※ご希望物件の内覧と弊社指定アンケートへのご記入をして頂いたお客様がキャンペーンの対象になります。
※弊社へのお問合せご利用が初めてのお客様に限ります。
※お客様の方から担当者に事前に必ずキャンペーンを見ましたとお伝え下さい。(こちらからのご案内はしませんのでご理解宜しくお願い致します。)
■当日見学OK■
営業時間内(10:00~18:00)は、下記電話フォームよりお電話をして頂けるとスムーズにご内覧のご案内ができます。