中古テラスハウス 大東市南津の辺町(昭和41年築)
掲載情報更新日:2026年01月19日 次回更新予定日:2026年02月02日
- 600万円
-
- 借入ご希望金額
万円 - 借入期間
年 - 借入金利
% - 月々のお支払い金額
円
- 借入ご希望金額
※ 月々のお支払例は目安の試算となりますので、実際の金額とは異なる場合がございます。詳しくは店舗までお問合わせください。
- 大東市南津の辺町
-
JR片町線『野崎』 徒歩10分 (約800m)
JR片町線『四条畷』 徒歩11分 (約880m)
中古テラスハウス 大東市南津の辺町(昭和41年築)テラスハウス | 物件情報
小学校区の中古テラスハウス3戸一の北側2戸・6DDK登場!
和室 押入 2駅利用可 始発駅 キッチンに窓
物件の設備
- 公営水道
- 公共下水
- オープンキッチン
- バス
- 浴室に窓
- トイレ
- 和室
- バルコニー
- ワイドバルコニー
物件の特徴
- 始発駅
- スーパーが近い
- 閑静な住宅街
- 周辺交通量少なめ
- 2階建
- 平坦地
物件詳細情報
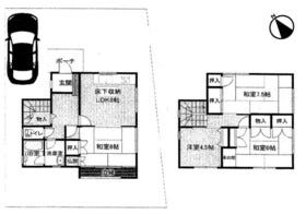
| 価格 | 600万円 | 間取り | 6DK |
|---|---|---|---|
| 物件種別 | 中古一戸建て(テラスハウス) | ||
| 所在地 | 大阪府大東市南津の辺町 | ||
| アクセス |
|
||
| 建物面積 | 公65.4㎡ | 駐車場 | なし |
| 築年月 | 1966年(昭和41年)08月築 | ||
| 建物構造 | 木造 2階建 | 工法 | |
| 主要採光 | 西向 | バルコニー | |
| 保証・評価 | |||
| リフォーム | |||
| 土地面積 | 公69.69㎡(21.08坪) | 接道 | 東側(私道)幅 約4.0m 間口 約5.50m |
| 私道 | 別:公11.00㎡ | セットバック | 無 |
| 地目 | 宅地 | 地勢 | |
| 権利 | 所有権 |
||
| 都市計画 | 市街化区域 |
用途地域 | 1種中高 |
| 建ぺい/容積率 | 60% / 160% | 土地国土法 | 届出不要 |
| 許可番号 | 建築基準法 | ||
| 法令制限 | 景観法・宅地造成及び特定盛土等規制法 | ||
| 小学区 | 四条北小学校 徒歩11分 (約820m) | 中学区 | 深野中学校 徒歩12分 (約935m) |
| 現況 | 空 | 引渡 | 相談 |
| その他費用 | |||
| 備考 | |||
| 物件番号 | 4439050 | 取引態様 | 媒介 |
取扱店舗情報
| 電話番号 | 072-889-5241 |
|---|---|
| 所在地 | 〒574-0021 大阪府大東市平野屋新町1-44 |
| 営業時間 | 10:00~19:00 |
| 定休日 | 水曜日、年末年始 |
| 宅建免許番号 | 大阪府知事(2)第60840号 |
| アクセス | 店舗への地図はこちら |

来店ご予約
大阪府大東市で価格が似ている物件はこちら
- 大阪府
マイページ物件数 - 16,458件
最近見た物件
-
-

-
- 新築一戸建て
- 2,390万円
-
多治見市希望ケ丘3丁目
-
JR太多線根本
-
-
-

-
- 新築一戸建て
- 3,080万円
-
越谷市弥栄町1丁目
-
東武伊勢崎・大師線大袋
-
-
-

-
- 新築一戸建て
- 3,280万円
-
豊田市畝部東町川田
-
愛知環状鉄道北野桝塚
-
大阪府中古一戸建て新着物件
-
-

-
- 中古一戸建て
- 3,480万円
-
堺市美原区太井
-
南海電鉄高野線萩原天神駅
-
-
-

-
- 中古一戸建て
- 1,750万円
-
松原市南新町6丁目
-
近鉄南大阪線布忍駅
-
-
-

-
- 中古一戸建て
- 850万円
-
大阪市平野区加美北1丁目
-
大阪市千日前線南巽駅
-
-
-

-
- 中古一戸建て
- 1,275万円
-
松原市小川5丁目
-
近鉄南大阪線恵我ノ荘駅
-
-
-

-
- 中古一戸建て
- 2,100万円
-
泉佐野市日根野
-
JR阪和線日根野駅
-
-
-

-
- 中古一戸建て
- 680万円
-
泉大津市東助松町2丁目
-
南海電鉄本線北助松駅
-
-
-

-
- 中古一戸建て
- 1,198万円
-
泉大津市式内町
-
南海電鉄本線泉大津駅
-
- お近くの店舗を探す
-
おすすめ物件
-
-

-
- 中古一戸建て
- 2,880万円
-
東大阪市東山町
-
近鉄けいはんな線新石切
-
-
-

-
- 中古一戸建て
- 730万円
-
泉南郡熊取町山の手台3丁目
-
JR阪和線熊取
-
-
-

-
- 中古一戸建て
- 2,780万円
-
大阪市住吉区山之内4丁目
-
JR阪和線杉本町
-
-
-

-
- 中古一戸建て
- 4,280万円
-
八尾市八尾木東3丁目
-
JR関西本線志紀
-
-
-

-
- 中古一戸建て
- 3,880万円
-
東大阪市長瀬町2丁目
-
JRおおさか東線JR長瀬
-
-
-

-
- 中古一戸建て
- 3,200万円
-
大阪市西成区梅南1丁目
-
大阪市四つ橋線花園町
-
-
-

-
- 中古一戸建て
- 2,980万円
-
八尾市八尾木3丁目
-
JR関西本線志紀
-
-
-

-
- 中古一戸建て
- 4,680万円
-
大阪市住吉区遠里小野6丁目
-
南海電鉄高野線我孫子前
-
-
-

-
- 中古一戸建て
- 2,380万円
-
東大阪市稲葉1丁目
-
近鉄難波・奈良線河内花園
-
-
-

-
- 中古一戸建て
- 2,599万円
-
茨木市庄1丁目
-
JR東海道線JR総持寺
-



ハウスドゥ大東野崎店では、お客様のライフスタイル等をじっくりお聞きし、人生設計に適した、無理のない返済計画をご提案させて頂いております。ぜひ一度ご相談ください。