奈良市富雄元町1丁目の中古戸建
掲載情報更新日:2026年04月03日 次回更新予定日:2026年04月17日
- 1,599万円
-
- 借入ご希望金額
万円 - 借入期間
年 - 借入金利
% - 月々のお支払い金額
円
- 借入ご希望金額
※ 月々のお支払例は目安の試算となりますので、実際の金額とは異なる場合がございます。詳しくは店舗までお問合わせください。
- 奈良市富雄元町1丁目
-
近鉄難波・奈良線『富雄』 徒歩7分 (約560m)
近鉄難波・奈良線『学園前』 徒歩20分 (約1600m)
奈良市富雄元町1丁目一戸建て | 物件情報
\内外装リフォーム済み!/富雄駅徒歩7分×荷物置きスペースつき3LDK!
◎ハイルーフ車庫付き
◎2024年10月内外装リフォーム済み!
・キッチン、コンロ、お風呂、トイレ、洗面台新品
・給湯器、建具交換
・クロス、クッションフロア張替
・フロアタイル貼り
・外壁、屋根塗装
・白蟻点検、室内クリーニング
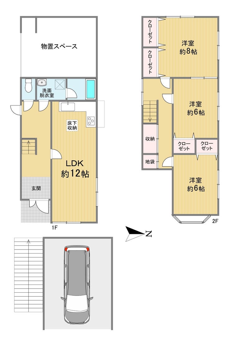
◎各居室&お部屋以外にも収納スペースがあります!
・敷地内に物置スペースもございます!
◎富雄駅徒歩7分!夜は駅前のラーメン屋や居酒屋巡りを楽しむのもアリ♪
スーパーやコンビニも徒歩圏内に多数ございます!
・イズミヤショッピングセンター学園前 約350m
・スーパーヤオヒコ富雄店 約800m
・ファミリーマート奈良学園大和町店 約270m
・ローソン近鉄富雄駅前店 約550m
・ココカラファインプラス+イズミヤ学園前店 約350m
・ダイコクドラッグ近鉄富雄駅前店 約600m
・南都銀行富雄支店 約600m
物件の設備
- 上水道
- 公共下水
- 都市ガス
- グリル
- システムキッチン
- 追焚機能
- 温水洗浄便座
- 洗髪洗面化粧台
- モニタ付インターホン
- 2面採光
- フローリング張替
- クローゼット
- 床下収納
- 全居室収納
物件の特徴
- 内装リフォーム済
- 外装リフォーム済
- 内外装リフォーム済
- 2階建
- 即入居可
物件詳細情報
| 価格 | 1,599万円 | 間取り | 3LDK |
|---|---|---|---|
| 物件種別 | 中古一戸建て | ||
| 所在地 | 奈良県奈良市富雄元町1丁目 | ||
| アクセス |
|
||
| 建物面積 | 85.68㎡ | 駐車場 | あり |
| 築年月 | 1984年(昭和59年)05月築 | ||
| 建物構造 | 木造 瓦葺 2階建 | 工法 | |
| 主要採光 | 東向 | バルコニー | |
| 保証・評価 | |||
| リフォーム | 【水回り】2024年10月 キッチン・浴室・トイレ・洗面 キッチン・コンロ・お風呂・トイレ・洗面台 新品 給湯器 交換 【外装】2024年10月 外壁 ・屋根 外壁・屋根 塗装 【内装】2024年10月 壁、天井 ・床 ・建具 クロス・クッションフロア 張替 フロアタイル貼り 建具 交換 シロアリ点検 室内クリーニング |
||
| 土地面積 | 125.82㎡(38.06坪) | 接道 | 東側(公道)幅 約4.0m |
| 私道 | セットバック | ||
| 地目 | 宅地 | 地勢 | |
| 権利 | 所有権 |
||
| 都市計画 | 市街化区域 |
用途地域 | 1種中高 |
| 建ぺい/容積率 | 60% / 160% | 土地国土法 | |
| 許可番号 | 建築基準法 | ||
| 法令制限 | 法22条区域・15m高度地区・奈良市開発指導要領 | ||
| 小学区 | 富雄北小学校 徒歩11分 (約850m) | 中学区 | 富雄中学校 徒歩14分 (約1100m) |
| 現況 | 空 | 引渡 | 即 |
| その他費用 | |||
| 周辺環境 | 学園前駅 徒歩23分 (約1770m) スターバックスコーヒー奈良学園前駅店 徒歩17分 (約1340m) |
||
| 備考 | ※司法書士売主指定 | ||
| 物件番号 | 4441623 | 取引態様 | 媒介 |
取扱店舗情報
ハウスドゥ 奈良神功 株式会社T.Kコーポレーション 店舗詳細ページへ
| 電話番号 | 0742-94-8511 |
|---|---|
| 所在地 | 〒631-0804 奈良県奈良市神功5丁目1-5 |
| 営業時間 | 9:00~18:00 |
| 定休日 | 水曜日 |
| 宅建免許番号 | 奈良県知事(1)第4642号 |
| アクセス | 店舗への地図はこちら |

来店ご予約
奈良県奈良市で価格が似ている物件はこちら
- 奈良県
マイページ物件数 - 809件
最近見た物件
-
-

-
- 中古一戸建て
- 380万円
-
鹿児島市田上5丁目
-
天神寺野ノ下
-
奈良県中古一戸建て新着物件
-
-

-
- 中古一戸建て
- 1,880万円
-
生駒市ひかりが丘2丁目
-
近鉄けいはんな線白庭台駅
-
-
-

-
- 中古一戸建て
- 3,000万円
-
奈良市法蓮町
-
近鉄難波・奈良線近鉄奈良駅
-
-
-

-
- 中古一戸建て
- 3,900万円
-
奈良市佐紀町
-
近鉄難波・奈良線大和西大寺駅
-
-
-

-
- 中古一戸建て
- 3,770万円
-
北葛城郡広陵町大字安部
-
近鉄大阪線大和高田駅
-
-
-

-
- 中古一戸建て
- 4,780万円
-
生駒郡安堵町大字西安堵
-
JR関西本線法隆寺駅
-
-
-

-
- 中古一戸建て
- 2,980万円
-
奈良市左京2丁目
-
近鉄京都線高の原駅
-
-
-

-
- 中古一戸建て
- 2,580万円
-
北葛城郡上牧町松里園2丁目
-
JR和歌山線香芝駅
-
- お近くの店舗を探す
-






























