浦添市沢岻1丁目 売戸建
掲載情報更新日:2026年02月19日 次回更新予定日:2026年03月05日
- 4,250万円
-
- 借入ご希望金額
万円 - 借入期間
年 - 借入金利
% - 月々のお支払い金額
円
- 借入ご希望金額
※ 月々のお支払例は目安の試算となりますので、実際の金額とは異なる場合がございます。詳しくは店舗までお問合わせください。
- 浦添市沢岻1丁目
-
沖縄都市モノレール『儀保』 徒歩20分 (約1600m)
バス停『第一沢岻』 徒歩2分 (約160m)
浦添市沢岻1丁目 売戸建一戸建て | 物件情報
高台に5LDKの売戸建て出ました♪お庭部分やバルコニーも広々で開放的な住宅です!リフォーム必要です!
開放的な和室空間や、リビングより一段高いキッチンなどデザイン性のある素敵な室内です!高台から見渡せる眺望は別格ですよ!内覧のご予約受付中ですのでぜひご家族でご内覧下さい!(※本物件は再建築不可のため、建替えはできません。詳細はスタッフまでお気軽にお尋ねください。)
物件の設備
- 電気
- 上水道
- ガスコンロ付
- カウンターキッチン
- バス
- 浴室に窓
- トイレ
- トイレ2箇所
- 洗髪洗面化粧台
- 和室
- フローリング
- クローゼット
物件の特徴
- 南側道路面す
- 閑静な住宅街
- 高台に立地
- 通風良好
- 陽当り良好
- 2階建
物件詳細情報
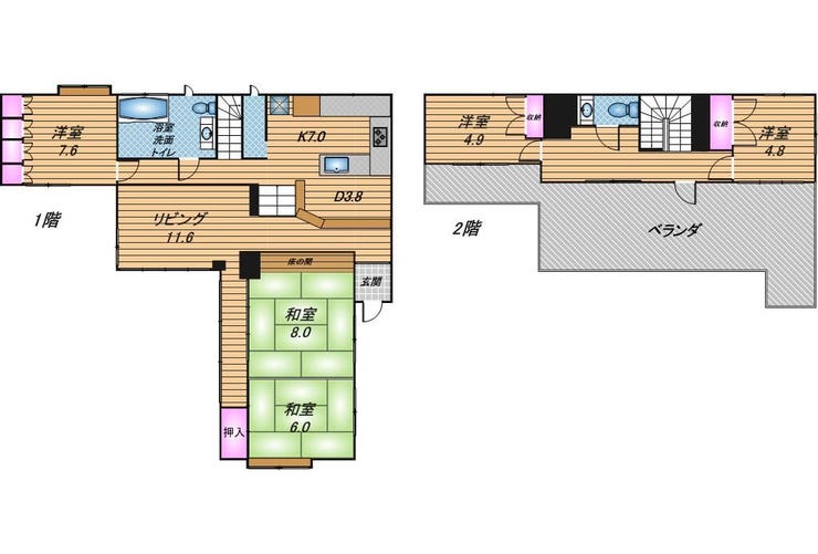
| 価格 | 4,250万円 | 間取り | 5LDK |
|---|---|---|---|
| 物件種別 | 中古一戸建て | ||
| 所在地 | 沖縄県浦添市沢岻1丁目1番11号 | ||
| アクセス |
|
||
| 建物面積 | 163.75㎡ | 駐車場 | あり 軽:2台 |
| 築年月 | 1986年(昭和61年)02月築 | ||
| 建物構造 | RC 2階建 地下1階 | 工法 | |
| 主要採光 | バルコニー | ||
| 保証・評価 | |||
| リフォーム | |||
| 土地面積 | 公434.57㎡(131.45坪) | 接道 | 南側幅 約1.6m |
| 私道 | 含:52.00㎡ | セットバック | |
| 地目 | 宅地 | 地勢 | |
| 権利 | 所有権 |
||
| 都市計画 | 市街化区域 |
用途地域 | 1種低層 |
| 建ぺい/容積率 | 50% / 100% | 土地国土法 | |
| 許可番号 | 建築基準法 | ||
| 法令制限 | |||
| 小学区 | 沢岻小学校 徒歩12分 (約900m) | 中学区 | 神森中学校 徒歩24分 (約1920m) |
| 現況 | 空 | 引渡 | 相談 |
| その他費用 | |||
| 周辺環境 | 沖縄銀行 経塚支店 徒歩3分 (約220m) ローソン 大名団地前店 徒歩3分 (約240m) サンエーV21おおな食品館 徒歩3分 (約240m) ドラッグイレブン経塚 徒歩4分 (約310m) ドラッグストアマツモトキヨシ おおな店 徒歩4分 (約320m) 沢岻小学校 徒歩7分 (約510m) メディカルモール経塚 徒歩6分 (約440m) ドラッグストアモリ 経塚店 徒歩6分 (約430m) 浦添経塚郵便局 徒歩8分 (約610m) サンエー経塚シティ 徒歩13分 (約980m) |
||
| 備考 | ■再建築不可 ■未登記部分有り ■駐車場有り※車種・台数要確認 |
||
| 物件番号 | 4445727 | 取引態様 | 媒介 |
取扱店舗情報
ハウスドゥ サンパーク通り浦添 株式会社R-JAPAN 店舗詳細ページへ
| 電話番号 | 098-876-5454 |
|---|---|
| 所在地 | 〒901-2133 沖縄県浦添市城間4丁目6-2 |
| 営業時間 | 10:00~19:00 |
| 定休日 | 水曜日、年末年始 |
| 宅建免許番号 | 国土交通大臣(2)第9251号 |
| アクセス | 店舗への地図はこちら |

来店ご予約
- 沖縄県
マイページ物件数 - 3,544件
沖縄県中古一戸建て新着物件
-
-

-
- 中古一戸建て
- 9,990万円
-
沖縄市美原2丁目
-
バス停美里小城原
-
-
-

-
- 中古一戸建て
- 6,680万円
-
中頭郡北谷町字宮城
-
美浜アメリカンビレッジ入口
-
-
-

-
- 中古一戸建て
- 6,680万円
-
中頭郡北谷町字宮城
-
美浜アメリカンビレッジ入口
-
-
-

-
- 中古一戸建て
- 6,090万円
-
浦添市城間1丁目
-
沖縄都市モノレール浦添前田駅
-
-
-

-
- 中古一戸建て
- 5,100万円
-
南城市大里字稲嶺
-
バス停親泊商店前バス停
-
-
-

-
- 収益
- 1億4,998万円
-
国頭郡今帰仁村字古宇利
-
古宇利島物産センター
-
-
-

-
- 中古一戸建て
- 5,998万円
-
国頭郡今帰仁村字諸志
-
諸志バス停
-
- お近くの店舗を探す
-
おすすめ物件
-
-

-
- 中古一戸建て
- 3,400万円
-
中頭郡読谷村字渡慶次
-
バス停読谷バスターミナル
-
-
-

-
- 中古一戸建て
- 3,298万円
-
南城市佐敷字新開
-
新開バス停
-
-
-

-
- 中古一戸建て
- 3,780万円
-
うるま市与那城屋慶名
-
バス停西屋慶名
-
-
-

-
- 中古一戸建て
- 3,150万円
-
浦添市前田1丁目
-
沖縄都市モノレール浦添前田
-
-
-

-
- 中古一戸建て
- 6,980万円
-
豊見城市字豊崎
-
バス停豊崎入口
-
-
-

-
- 中古一戸建て
- 3,780万円
-
豊見城市字与根
-
与根
-
-
-

-
- 中古一戸建て
- 4,780万円
-
島尻郡与那原町字板良敷
-
【バス停】北板良敷
-
-
-

-
- 中古一戸建て
- 1億500万円
-
那覇市松尾1丁目
-
沖縄都市モノレール県庁前
-
-
-

-
- 中古一戸建て
- 6,598万円
-
那覇市字銘苅
-
沖縄都市モノレール古島
-
-
-

-
- 中古一戸建て
- 4,398万円
-
糸満市潮崎町4丁目
-
沖縄都市モノレール赤嶺
-





























担当エージェント:浜野 友汰
~ご入居までの流れ~
①ご相談:お客様のご希望条件を、ぜひお気軽に担当エージェントへお申し付けください。
②資金計画・住宅ローン事前審査:お客様に応じた必要な資金を明確にし、綿密な資金計画を立てることで、無理のない具体的なビジョンを描くことができます。
③物件選び、現地内覧:いよいよ物件ツアーの始まりです!実際に物件をご内覧いただき、ご家族の住んだ後のイメージをお持ちいただきます。
④お申し込み:気に入った物件が見つかりましたら、購入申込書を売主様へお届けします。売主様と条件交渉、契約内容の調整を行います。
⑤契約・重要事項の説明:引き渡し後トラブルが無いよう、事前に物件や契約の内容をしっかりご確認いただきます。無事契約が完了しましたら、住宅ローンや火災保険等のお申込みまで弊社にてご案内いたします。
⑥残代金支払い・鍵の引き渡し:待ちに待ったお引越しです!その後のアフターサポートもぜひハウスドゥへお任せくださいませ。
◇リフォーム工事や引越し業者の手配、住宅ローン(地銀・ネットバンク)受付等、サポート体制も万全です。