津山市草加部の中古戸建
NEW 10.17掲載情報更新日:2025年10月18日 次回更新予定日:2025年11月01日
- 2,600万円
-
- 借入ご希望金額
万円 - 借入期間
年 - 借入金利
% - 月々のお支払い金額
円
- 借入ご希望金額
※ 月々のお支払例は目安の試算となりますので、実際の金額とは異なる場合がございます。詳しくは店舗までお問合わせください。
- 津山市草加部
-
『草加部上バス停』 徒歩4分 (約320m)
津山市草加部一戸建て | 物件情報
タマホーム施工◎築9年の中古戸建◎
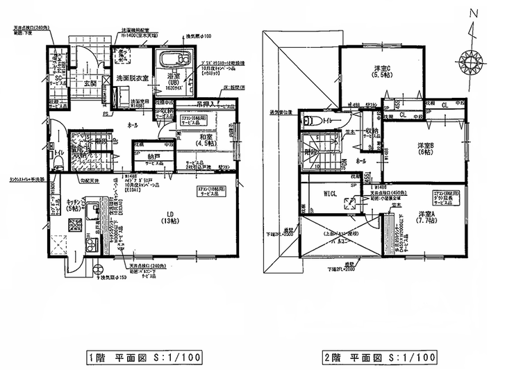
◇4LDKの間取り
◇18帖のひろびろLDK
◇便利なシステムキッチンは食洗機付き、カップボードあり
◇2階7.7帖の洋室にWIC完備
◇敷地内駐車6台可!※車種による
◆草加部上バス停まで徒歩4分(約320m)
物件の設備
- オール電化
- 公営水道
- 浄化槽
- IHクッキングヒータ
- システムキッチン
- バス1坪以上
- 浴室に窓
- トイレ2箇所
- 室内洗濯機置場
- 洗髪洗面化粧台
- モニタ付インターホン
- 火災警報器/報知機
- 24時間換気システム
- ウォークインクローゼット
- 全居室収納
- シューズインクローク
物件の特徴
- 2階建
物件詳細情報
| 価格 | 2,600万円 | 間取り | 4LDK |
|---|---|---|---|
| 物件種別 | 中古一戸建て | ||
| 所在地 | 岡山県津山市草加部 | ||
| アクセス |
|
||
| 建物面積 | 119.24㎡ | 駐車場 | あり |
| 築年月 | 2016年(平成28年)04月築 | ||
| 建物構造 | 木造 かわらぶき 2階建 | 工法 | |
| 主要採光 | バルコニー | ||
| 保証・評価 | |||
| リフォーム | |||
| 土地面積 | 公309.03㎡(93.48坪) | 接道 | |
| 私道 | セットバック | ||
| 地目 | 宅地 | 地勢 | |
| 権利 | 所有権 |
||
| 都市計画 | 非線引区域 |
用途地域 | 指定無 |
| 建ぺい/容積率 | 60% / 200% | 土地国土法 | |
| 許可番号 | 建築基準法 | ||
| 法令制限 | |||
| 小学区 | 成名小学校 徒歩14分 (約1100m) | 中学区 | 津山東中学校 徒歩74分 (約5900m) |
| 現況 | 空 | 引渡 | 相談 |
| その他費用 | |||
| 備考 | タマホーム施工 駐車6台可(車種による) | ||
| 物件番号 | 4451765 | 取引態様 | 専任 |
取扱店舗情報
| 電話番号 | 082-821-5688 |
|---|---|
| 所在地 | 〒736-0041 広島県安芸郡海田町大正町8-18 |
| 営業時間 | 9:00~18:00 |
| 定休日 | 水曜日 |
| 宅建免許番号 | 広島県知事(13)第3975号 |
| アクセス | 店舗への地図はこちら |

来店ご予約
- 岡山県
マイページ物件数 - 4,334件
岡山県中古一戸建て新着物件
-
-

-
- 中古一戸建て
- 500万円
-
倉敷市中畝2丁目
-
水島臨海鉄道水島駅
-
-
-

-
- 中古一戸建て
- 3,280万円
-
倉敷市玉島中央町1丁目
-
JR山陽本線新倉敷駅
-
-
-

-
- 中古一戸建て
- 1,980万円
-
小田郡矢掛町江良
-
井原鉄道矢掛駅
-
-
-

-
- 中古一戸建て
- 2,500万円
-
高梁市落合町阿部
-
JR伯備線備中高梁駅
-
-
-

-
- 中古一戸建て
- 480万円
-
加賀郡吉備中央町粟井谷
-
JR津山線福渡駅
-
-
-

-
- 中古一戸建て
- 1,298万円
-
岡山市中区藤崎
-
JR山陽本線岡山駅
-
-
-

-
- 中古一戸建て
- 2,280万円
-
倉敷市児島元浜町
-
JR本四備讃線児島駅
-
- お近くの店舗を探す
-
おすすめ物件
-
-

-
- 中古一戸建て
- 370万円
-
倉敷市児島柳田町
-
JR本四備讃線上の町
-
-
-

-
- 中古一戸建て
- 300万円
-
倉敷市児島味野5丁目
-
JR本四備讃線児島
-
-
-

-
- 中古一戸建て
- 1,380万円
-
倉敷市上富井
-
水島臨海鉄道西富井
-
-
-

-
- 中古一戸建て
- 500万円
-
倉敷市山地
-
JR山陽本線中庄
-
-
-

-
- 中古一戸建て
- 2,390万円
-
高梁市川上町臘数
-
JR伯備線備中高梁
-
-
-

-
- 中古一戸建て
- 2,400万円
-
倉敷市児島稗田町
-
JR本四備讃線上の町
-
-
-

-
- 中古一戸建て
- 2,800万円
-
岡山市北区今保
-
JR山陽本線北長瀬
-
-
-

-
- 中古一戸建て
- 1,600万円
-
岡山市南区新保
-
JR宇野線備前西市
-
-
-

-
- 中古一戸建て
- 350万円
-
久米郡美咲町宮山
-
JR姫新線美作大崎
-
-
-

-
- 中古一戸建て
- 2,650万円
-
倉敷市白楽町
-
JR山陽本線倉敷
-






















