鈴鹿市中江島町の中古戸建
掲載情報更新日:2026年02月13日 次回更新予定日:2026年02月27日
- 3,780万円
-
- 借入ご希望金額
万円 - 借入期間
年 - 借入金利
% - 月々のお支払い金額
円
- 借入ご希望金額
※ 月々のお支払例は目安の試算となりますので、実際の金額とは異なる場合がございます。詳しくは店舗までお問合わせください。
- 鈴鹿市中江島町
-
近鉄名古屋線『白子』 徒歩14分 (約1100m)
近鉄名古屋線『鼓ヶ浦』 徒歩30分 (約2390m)
近鉄名古屋線『千代崎』 徒歩29分 (約2260m)
鈴鹿市中江島町一戸建て | 物件情報
◇愛宕小・鼓ヶ浦中×6LDK◇ 駐車4台可能・軽量鉄骨のお家
〇複数不動産サイトを見なくても当店で解決〇
当店は鈴鹿市の物件すべてご紹介可能!
お問合せは「0120-668-662」まで☆
■物件のおすすめポイント■
・広々敷地約151坪
・駅近で通勤も通学もラクラク
・部屋数豊富な6LDK
■周辺環境■
・愛宕小/徒歩6分
・鼓ヶ浦中/徒歩30分
お得に買うなら《ハウスドゥ鈴鹿白子店》
お家の購入・売却・ローン相談なんでもお任せください!
【*当店では住宅ローン事務代行手数料は一切いただきません*】
物件の設備
- 公営水道
- 公共下水
- プロパンガス
- 個別プロパン
物件の特徴
- 2階建
- 即入居可
物件詳細情報
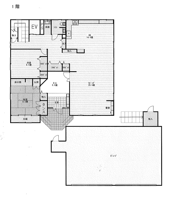
| 価格 | 3,780万円 | 間取り | 6LDK |
|---|---|---|---|
| 物件種別 | 中古一戸建て | ||
| 所在地 | 三重県鈴鹿市中江島町 | ||
| アクセス |
|
||
| 建物面積 | 公290.4㎡ | 駐車場 | あり 普通:4台 |
| 築年月 | 2001年(平成13年)01月築 | ||
| 建物構造 | 軽量鉄骨 2階建 | 工法 | |
| 主要採光 | バルコニー | ||
| 保証・評価 | |||
| リフォーム | |||
| 土地面積 | 公499.87㎡(151.21坪) | 接道 | |
| 私道 | セットバック | ||
| 地目 | 宅地 | 地勢 | |
| 権利 | 所有権 |
||
| 都市計画 | 市街化区域 |
用途地域 | 1種中高 |
| 建ぺい/容積率 | 60% / 200% | 土地国土法 | |
| 許可番号 | 建築基準法 | ||
| 法令制限 | |||
| 小学区 | 愛宕小学校 徒歩6分 (約480m) | 中学区 | 鼓ヶ浦中学校 徒歩30分 (約2360m) |
| 現況 | 空 | 引渡 | 即 |
| その他費用 | |||
| 周辺環境 | 尾池整形外科 徒歩2分 (約140m) ゆたか歯科 徒歩2分 (約150m) ファミリーマート 鈴鹿中江島町店 徒歩2分 (約160m) ローソン 鈴鹿中江島町店 徒歩2分 (約160m) ウエルシア中江島町店 徒歩4分 (約310m) 鈴鹿江島郵便局 徒歩8分 (約600m) 駒田医院 徒歩6分 (約420m) 白子保育所 徒歩4分 (約310m) 白子ウィメンズクリニック 徒歩6分 (約470m) 鼓ヶ浦中学校 徒歩30分 (約2360m) |
||
| 備考 | 付属建物 鉄骨造陸屋根2階建 居宅・車庫 1階73.74㎡ 2階38.99㎡ 平成13年3月新築 |
||
| 物件番号 | 4452148 | 取引態様 | 媒介 |
取扱店舗情報
ハウスドゥ 鈴鹿白子 株式会社ノーブル不動産 店舗詳細ページへ
| 電話番号 | 059-392-8066 |
|---|---|
| 所在地 | 〒510-0235 三重県鈴鹿市南江島町18-33 エクセル江島II 1F |
| 営業時間 | 9:00~18:00 |
| 定休日 | 火曜日・水曜日 |
| 宅建免許番号 | 三重県知事(1)第3791号 |
| アクセス | 店舗への地図はこちら |

来店ご予約
三重県鈴鹿市で価格が似ている物件はこちら
- 三重県
マイページ物件数 - 3,083件
最近見た物件
-
-

-
- 新築一戸建て
- 5,090万円
-
仙台市太白区泉崎2丁目
-
仙台市営地下鉄南北線富沢
-
-
-

-
- 新築一戸建て
- 2,480万円
-
高岡市清水町1丁目
-
あいの風とやま鉄道高岡
-
-
-

-
- 中古一戸建て
- 3,150万円
-
札幌市西区宮の沢四条4丁目
-
札幌市東西線宮の沢
-
三重県中古一戸建て新着物件
-
-

-
- 中古一戸建て
- 1,780万円
-
鈴鹿市中旭が丘1丁目
-
伊勢鉄道玉垣駅
-
-
-

-
- 中古一戸建て
- 1,899万円
-
四日市市笹川1丁目
-
四日市あすなろう西日野駅
-
-
-

-
- 中古一戸建て
- 1,899万円
-
四日市市笹川1丁目
-
四日市あすなろう西日野駅
-
-
-

-
- 中古一戸建て
- 1,499万円
-
四日市市あさけが丘3丁目
-
三岐鉄道三岐線山城駅
-
-
-

-
- 中古一戸建て
- 790万円
-
津市栗真町屋町
-
近鉄名古屋線高田本山駅
-
-
-

-
- 中古一戸建て
- 3,000万円
-
四日市市日永1丁目
-
四日市あすなろう赤堀駅
-
-
-

-
- 中古一戸建て
- 990万円
-
いなべ市大安町平塚
-
三岐鉄道三岐線大安駅
-
- お近くの店舗を探す
-
おすすめ物件
-
-

-
- 中古一戸建て
- 600万円
-
松阪市笹川町
-
JR紀勢本線松阪
-
-
-

-
- 中古一戸建て
- 3,180万円
-
鈴鹿市神戸本多町
-
近鉄鈴鹿線鈴鹿市
-
-
-

-
- 中古一戸建て
- 1,200万円
-
四日市市平津新町
-
三岐鉄道三岐線平津
-
-
-

-
- 中古一戸建て
- 1,350万円
-
亀山市みずほ台
-
JR関西本線井田川
-
-
-

-
- 中古一戸建て
- 1,299万円
-
四日市市楠町北五味塚
-
近鉄名古屋線楠
-
-
-

-
- 中古一戸建て
- 880万円
-
四日市市東坂部町
-
近鉄名古屋線霞ヶ浦
-
-
-

-
- 中古一戸建て
- 1,499万円
-
四日市市あさけが丘3丁目
-
三岐鉄道三岐線山城
-
-
-

-
- 中古一戸建て
- 1,650万円
-
鈴鹿市白子3丁目
-
近鉄名古屋線白子
-
-
-

-
- 中古一戸建て
- 2,900万円
-
いなべ市大安町石榑東
-
三岐鉄道三岐線三里
-
-
-

-
- 中古一戸建て
- 2,830万円
-
津市白塚町
-
近鉄名古屋線白塚
-






担当エージェント:林 勇気
鈴鹿市の不動産のことなら何でもご相談ください!
電話・メールなどお客様のご希望の方法でやり取り可能です◎
お問合せは【0120-668-662】までお気軽にご連絡ください。