泉南郡熊取町朝代西4丁目の中古戸建
掲載情報更新日:2026年01月22日 次回更新予定日:2026年02月05日
- 890万円
-
- 借入ご希望金額
万円 - 借入期間
年 - 借入金利
% - 月々のお支払い金額
円
- 借入ご希望金額
※ 月々のお支払例は目安の試算となりますので、実際の金額とは異なる場合がございます。詳しくは店舗までお問合わせください。
- 泉南郡熊取町朝代西4丁目
-
JR阪和線『熊取』 バス乗車6分 府営熊取団地線南小学校前 停 徒歩2分 (約160m)
泉南郡熊取町朝代西4丁目一戸建て | 物件情報
物件の設備
- 電気
- 公営水道
- 浄化槽
- 汲取
- プロパンガス
- ユニットバス
- バス1坪以上
- 浴室に窓
- 和室
- フローリング
- 納戸
- 床下収納
物件の特徴
- 前道6m以上
- 閑静な住宅街
- 通風良好
- 陽当り良好
- 2階建
- 即入居可
物件詳細情報
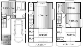
| 価格 | 890万円 | 間取り | 4LDK+S |
|---|---|---|---|
| 物件種別 | 中古一戸建て | ||
| 所在地 | 大阪府泉南郡熊取町朝代西4丁目 | ||
| アクセス |
|
||
| 建物面積 | 公96.88㎡ | 駐車場 | あり |
| 築年月 | 1998年(平成10年)01月築 | ||
| 建物構造 | 木造 2階建 | 工法 | |
| 主要採光 | バルコニー | ||
| 保証・評価 | |||
| リフォーム | |||
| 土地面積 | 公123.98㎡(37.50坪) | 接道 | 北西側(公道)幅 約6.7m 間口 約8.30m |
| 私道 | セットバック | ||
| 地目 | 宅地 | 地勢 | 平坦 |
| 権利 | 所有権 |
||
| 都市計画 | 市街化区域 |
用途地域 | 1種住居 |
| 建ぺい/容積率 | 60% / 200% | 土地国土法 | |
| 許可番号 | 建築基準法 | ||
| 法令制限 | |||
| 小学区 | 南小学校 徒歩5分 (約400m) | 中学区 | 熊取南中学校 徒歩23分 (約1800m) |
| 現況 | 空 | 引渡 | 即 |
| その他費用 | |||
| 備考 | ●並列駐車3台可(車種による) ●前面道路幅員約6.7m ●4LDK+S ●陽当り・通風良好 ●セブンーイレブン 大阪体育大学前店まで約400m ・令和7年度固定資産税額:29,400円/年 ※再建築時には合併浄化槽の設置ならびに排水放流先および排水経路の権利者の同意が必要です。 ※雑排水が他人の土地を経由し排出されています。 ・現況有姿でのお引き渡し(現状有姿売買) |
||
| 物件番号 | 4452334 | 取引態様 | 媒介 |
取扱店舗情報
ハウスドゥ 泉佐野日根野 株式会社ファイン・サポート 店舗詳細ページへ
| 電話番号 | 072-447-6624 |
|---|---|
| 所在地 | 〒598-0021 大阪府泉佐野市日根野4288-1-103 |
| 営業時間 | 10:00~19:00 |
| 定休日 | 水曜日 |
| 宅建免許番号 | 大阪府知事(6)第47889号 |
| アクセス | 店舗への地図はこちら |

来店ご予約
大阪府泉南郡熊取町で価格が似ている物件はこちら
- 大阪府
マイページ物件数 - 16,462件
最近見た物件
-
-

-
- 中古一戸建て
- 680万円
-
泉南郡熊取町山の手台3丁目
-
JR阪和線熊取
-
-
-

-
- 中古一戸建て
- 1,899万円
-
松山市石風呂町
-
伊予鉄道高浜線三津
-
-
-

-
- 新築一戸建て
- 3,690万円
-
豊田市大林町13丁目
-
愛知環状鉄道末野原
-
大阪府中古一戸建て新着物件
-
-

-
- 中古一戸建て
- 2,498万円
-
門真市脇田町
-
JR片町線住道駅
-
-
-

-
- 中古一戸建て
- 3,280万円
-
大阪市東淀川区下新庄2丁目
-
阪急電鉄千里線下新庄駅
-
-
-

-
- 中古一戸建て
- 3,980万円
-
守口市南寺方北通2丁目
-
大阪市今里筋線清水駅
-
-
-

-
- 中古一戸建て
- 3,480万円
-
堺市美原区太井
-
南海電鉄高野線萩原天神駅
-
-
-

-
- 中古一戸建て
- 1,750万円
-
松原市南新町6丁目
-
近鉄南大阪線布忍駅
-
-
-

-
- 中古一戸建て
- 850万円
-
大阪市平野区加美北1丁目
-
大阪市千日前線南巽駅
-
-
-

-
- 中古一戸建て
- 1,275万円
-
松原市小川5丁目
-
近鉄南大阪線恵我ノ荘駅
-
- お近くの店舗を探す
-
おすすめ物件
-
-

-
- 中古一戸建て
- 2,880万円
-
東大阪市東山町
-
近鉄けいはんな線新石切
-
-
-

-
- 中古一戸建て
- 730万円
-
泉南郡熊取町山の手台3丁目
-
JR阪和線熊取
-
-
-

-
- 中古一戸建て
- 2,780万円
-
大阪市住吉区山之内4丁目
-
JR阪和線杉本町
-
-
-

-
- 中古一戸建て
- 4,280万円
-
八尾市八尾木東3丁目
-
JR関西本線志紀
-
-
-

-
- 中古一戸建て
- 3,880万円
-
東大阪市長瀬町2丁目
-
JRおおさか東線JR長瀬
-
-
-

-
- 中古一戸建て
- 3,200万円
-
大阪市西成区梅南1丁目
-
大阪市四つ橋線花園町
-
-
-

-
- 中古一戸建て
- 2,980万円
-
八尾市八尾木3丁目
-
JR関西本線志紀
-
-
-

-
- 中古一戸建て
- 4,680万円
-
大阪市住吉区遠里小野6丁目
-
南海電鉄高野線我孫子前
-
-
-

-
- 中古一戸建て
- 2,380万円
-
東大阪市稲葉1丁目
-
近鉄難波・奈良線河内花園
-
-
-

-
- 中古一戸建て
- 2,599万円
-
茨木市庄1丁目
-
JR東海道線JR総持寺
-



