通風・採光に優れたウッドデッキ付きの心地よいリビング
掲載情報更新日:2026年01月02日 次回更新予定日:2026年01月16日
- 3,197万円
-
- 借入ご希望金額
万円 - 借入期間
年 - 借入金利
% - 月々のお支払い金額
円
- 借入ご希望金額
※ 月々のお支払例は目安の試算となりますので、実際の金額とは異なる場合がございます。詳しくは店舗までお問合わせください。
- 平塚市めぐみが丘2丁目
-
JR東海道本線『平塚』 バス乗車29分 めぐみが丘西 停 徒歩4分 (約320m)
通風・採光に優れたウッドデッキ付きの心地よいリビング一戸建て | 物件情報
■通風・採光に優れたウッドデッキ付きの心地よいリビング
■大通りから離れた車通りも少ない安心の住宅街
■南西に面した全居室・リビングは通風・採光に優れた心地よい空間
■バーベキューや読書に便利なウッドデッキ付き
■カースペース3台分あり(車種による)
■リフォーム2025年9月完工済み
物件の設備
- 電気
- 上水道
- 公営水道
- 下水道
- 公共下水
- 都市ガス
- 給湯
- カウンターキッチン
- システムキッチン
- ユニットバス
- 浴室に窓
- トイレ2箇所
- 室内洗濯機置場
- モニタ付インターホン
- LDK15畳以上
- 和室
- フローリング張替
- ウォークインクローゼット
- 床下収納
- 全居室収納
- シューズボックス
- ウッドデッキ
物件の特徴
- 内装リフォーム済
- 2階建
物件詳細情報
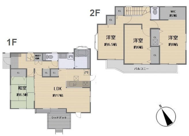
| 価格 | 3,197万円 | 間取り | 4LDK |
|---|---|---|---|
| 物件種別 | 中古一戸建て | ||
| 所在地 | 神奈川県平塚市めぐみが丘2丁目 | ||
| アクセス |
|
||
| 建物面積 | 公110.13㎡ | 駐車場 | あり 普通:3台 |
| 築年月 | 2004年(平成16年)08月築 | ||
| 建物構造 | 木造 2階建 | 工法 | |
| 主要採光 | バルコニー | ||
| 保証・評価 | |||
| リフォーム | 【水回り】2025年09月 キッチン・浴室・トイレ・洗面・給湯器 【内装】2025年09月 壁、天井 ・床 ・全室クロス ・建具 ・他[その他] |
||
| 土地面積 | 公202.36㎡(61.21坪) | 接道 | 北西側(公道)幅 約5.0m 間口 約17.60m |
| 私道 | セットバック | ||
| 地目 | 宅地 | 地勢 | |
| 権利 | 所有権 |
||
| 都市計画 | 市街化区域 |
用途地域 | 1種低層 |
| 建ぺい/容積率 | 50% / 80% | 土地国土法 | |
| 許可番号 | 建築基準法 | ||
| 法令制限 | 都市再生特別地区・法22条区域・地区計画(五領ヶ台地区)区域 | ||
| 小学区 | 吉沢小学校 徒歩9分 (約650m) | 中学区 | 土沢中学校 徒歩32分 (約2500m) |
| 現況 | 空 | 引渡 | 相談 |
| その他費用 | |||
| 周辺環境 | 吉沢小学校 徒歩9分 (約650m) 土沢中学校 徒歩32分 (約2500m) 吉沢保育園 徒歩13分 (約1000m) ファミリーマート 湘南めぐみが丘店 徒歩14分 (約1100m) ロピア 湘南めぐみが丘店 徒歩7分 (約540m) |
||
| 備考 | ■大通りから離れた車通りも少ない安心の住宅街 ■南西に面した全居室・リビングは通風・採光に優れた心地よい空間 ■バーベキューや読書に便利なウッドデッキ付き ■カースペース3台分あり(車種による) ■リフォーム2025年9月完工済み |
||
| 物件番号 | 4454670 | 取引態様 | 媒介 |
取扱店舗情報
| 電話番号 | 0463-24-8885 |
|---|---|
| 所在地 | 〒254-0073 神奈川県平塚市西八幡2丁目9-1 |
| 営業時間 | 9:00~18:00 |
| 定休日 | 第1・3火曜日、水曜日、年末年始 |
| 宅建免許番号 | 神奈川県知事(3)第28824号 |
| アクセス | 店舗への地図はこちら |

来店ご予約
神奈川県平塚市で価格が似ている物件はこちら
- 神奈川県
マイページ物件数 - 3,050件
最近見た物件
神奈川県中古一戸建て新着物件
- お近くの店舗を探す
-
おすすめ物件
-
-

-
- 中古一戸建て
- 7,500万円
-
横浜市中区滝之上
-
JR根岸線山手
-
-
-

-
- 中古一戸建て
- 4,480万円
-
横浜市南区大岡1丁目
-
横浜市営地下鉄ブルーライン弘明寺
-
-
-

-
- 中古一戸建て
- 4,480万円
-
川崎市川崎区渡田2丁目
-
JR東海道本線川崎
-
-
-

-
- 中古一戸建て
- 1,750万円
-
平塚市御殿3丁目
-
JR東海道本線平塚
-
-
-

-
- 中古一戸建て
- 3,880万円
-
厚木市緑ケ丘5丁目
-
小田急小田原線本厚木
-
-
-

-
- 中古一戸建て
- 8,280万円
-
横浜市中区竹之丸
-
JR根岸線山手
-
-
-

-
- 中古一戸建て
- 1,890万円
-
厚木市妻田北3丁目
-
小田急小田原線本厚木
-
-
-

-
- 中古一戸建て
- 1,990万円
-
平塚市唐ケ原
-
JR東海道本線平塚
-













ハウスドゥ 湘南平塚(株式会社プレジャー)
[営業時間]9:00~18:00
[定休日]第1週・第3週の火曜日、及び毎週水曜日
JR東海道線「平塚」駅よりバス乗車6分
「八幡」停留所 目の前です。
●店舗前に5台分の駐車スペースがございます。
●平塚駅など近隣地への送迎いたします。
●キッズスペース、授乳室を完備しております。
お子様連れのお客様もご安心してご来店ください。
●すぐにご来店が難しいお客様もお気軽にご相談ください。