青森市自由ケ丘2丁目の中古戸建
NEW 10.20掲載情報更新日:2025年10月27日 次回更新予定日:2025年11月10日
- 1,899万円
- 
                    - 借入ご希望金額
 万円
-  借入期間
 年
-  借入金利
 %
-  月々のお支払い金額
 円
 
- 借入ご希望金額
※ 月々のお支払例は目安の試算となりますので、実際の金額とは異なる場合がございます。詳しくは店舗までお問合わせください。
- 青森市自由ケ丘2丁目
- 
                    青い森鉄道『小柳』 徒歩9分 (約670m)
 
青森市自由ケ丘2丁目一戸建て | 物件情報
物件の設備
- 公営水道
- 公共下水
- プロパンガス
- 集中プロパン
- 給湯
- 浄水器
- システムキッチン
- バス1坪以上
- 追焚機能
- 浴室乾燥機
- トイレ2箇所
- 温水洗浄便座
- 洗髪洗面化粧台
- 照明器具
- モニタ付インターホン
- 火災警報器/報知機
- フローリング
- フローリング張替
物件の特徴
- 内装リフォーム済
- 外装リフォーム済
- 内外装リフォーム済
- 前道6m以上
- 2階建
物件詳細情報
| 価格 | 1,899万円 | 間取り | 4LDK+S | 
|---|---|---|---|
| 物件種別 | 中古一戸建て | ||
| 所在地 | 青森県青森市自由ケ丘2丁目 | ||
| アクセス | 
 | ||
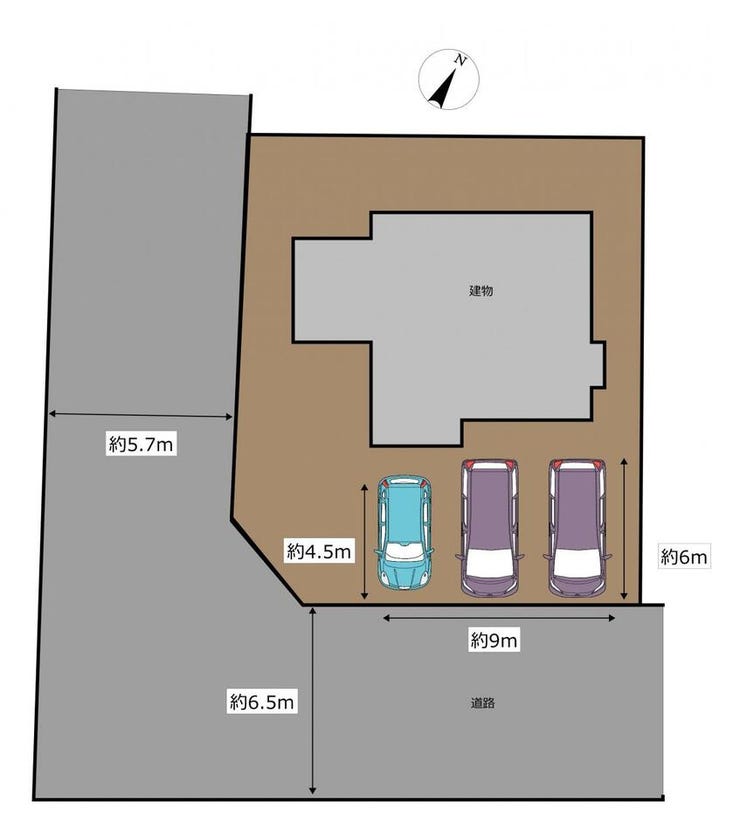
| 建物面積 | 公129.17㎡ | 駐車場 | あり 普通:3台 | 
| 築年月 | 1994年(平成6年)10月築 | ||
| 建物構造 | 木造 2階建 | 工法 | |
| 主要採光 | バルコニー | ||
| 保証・評価 | |||
| リフォーム | 【水回り】2025年12月予定 キッチン・浴室・トイレ・洗面・給湯器・給排水管 すべて新品交換 2025/10月リフォーム完了予定 【外装】2025年12月予定 外壁 ・屋根 屋根・外壁塗装 【内装】2025年12月予定 壁、天井 ・床 ・全室クロス ・他[照明器具] 壁・天井クロス貼替、照明器具交換 | ||
| 土地面積 | 公215.57㎡(65.20坪) | 接道 | 南東側(公道)幅 約6.5m 南西側(公道)幅 約5.7m | 
| 私道 | セットバック | ||
| 地目 | 宅地 | 地勢 | |
| 権利 | 所有権 | ||
| 都市計画 | 市街化区域 | 用途地域 | 1種低層 | 
| 建ぺい/容積率 | 50% / 80% | 土地国土法 | 届出不要 | 
| 許可番号 | 建築基準法 | ||
| 法令制限 | |||
| 小学区 | 小柳小学校 徒歩15分 (約1180m) | 中学区 | 佃中学校 徒歩31分 (約2430m) | 
| 現況 | 空 | 引渡 | 相談 | 
| その他費用 | |||
| 周辺環境 | 青森市立小柳小学校 徒歩15分 (約1180m) 青森市立佃中学校 徒歩31分 (約2430m) 青森県立青森商業高校 徒歩4分 (約310m) 小柳駅 徒歩9分 (約670m) ローソン 青森自由ヶ丘二丁目店 徒歩7分 (約530m) マエダストア 虹ヶ丘店 徒歩9分 (約690m) 青森小柳郵便局 徒歩21分 (約1610m) | ||
| 備考 | |||
| 物件番号 | 4455996 | 取引態様 | 媒介 | 
取扱店舗情報
ハウスドゥ 青森浪館 株式会社リノベアーズ 店舗詳細ページへ
| 電話番号 | 017-718-5449 | 
|---|---|
| 所在地 | 〒038-0024 青森県青森市浪館前田2丁目4-15 | 
| 営業時間 | 9:30~18:00 | 
| 定休日 | 火曜日、水曜日、GW、お盆、年末年始 | 
| 宅建免許番号 | 青森県知事(1)第3673号 | 
| アクセス | 店舗への地図はこちら | 

来店ご予約
青森県青森市で価格が似ている物件はこちら
- 青森県
 マイページ物件数
- 2,087件
最近見た物件
- 
                        - 
									                                     
- 
                                - 中古一戸建て
- 1,399万円
- 
                                        
                                            東広島市高屋町高屋東 
- 
                                        JR山陽本線白市 
 
 
- 
									                                    
- 
                        - 
									                                     
- 
                                - 中古一戸建て
- 300万円
- 
                                        
                                            鹿児島市吉野町 
- 
                                        JR日豊本線仙巌園 
 
 
- 
									                                    
- 
                        - 
									                                     
- 
                                - 中古一戸建て
- 3,390万円
- 
                                        
                                            四日市市大字泊村 
- 
                                        四日市あすなろう泊 
 
 
- 
									                                    
青森県中古一戸建て新着物件
- 
				- 
							                             
- 
						- 中古一戸建て
- 1,399万円
- 
								
									八戸市大字尻内町字大仏 
- 
                                JR八戸線八戸駅 
 
 
- 
							                            
- 
				- 
							                             
- 
						- 中古一戸建て
- 1,449万円
- 
								
									八戸市大字市川町字古館 
- 
                                市営バス市川後バス停 
 
 
- 
							                            
- 
				- 
							                             
- 
						- 中古一戸建て
- 1,150万円
- 
								
									上北郡おいらせ町豊原2丁目 
- 
                                青い森鉄道向山駅 
 
 
- 
							                            
- 
				- 
							                             
- 
						- 中古一戸建て
- 1,180万円
- 
								
									八戸市大字白銀町字雷 
- 
                                市営バス東ヶ丘バス停 
 
 
- 
							                            
- 
				- 
							                             
- 
						- 中古一戸建て
- 1,499万円
- 
								
									青森市大字油川字中道 
- 
                                JR津軽線油川駅 
 
 
- 
							                            
- 
				- 
							                             
- 
						- 中古一戸建て
- 849万円
- 
								
									青森市大字幸畑字松元 
- 
                                青い森鉄道筒井駅 
 
 
- 
							                            
- 
				- 
							                             
- 
						- 中古一戸建て
- 1,399万円
- 
								
									青森市大字新城字平岡 
- 
                                JR奥羽本線津軽新城駅 
 
 
- 
							                            
- お近くの店舗を探す
- 
            
            
            
おすすめ物件
- 
				- 
														 
- 
						- 中古一戸建て
- 350万円
- 
								
									八戸市大字田向字檀ノ平 
- 
								市営・南部バス田向バス停 
 
 
- 
														
- 
				- 
														 
- 
						- 中古一戸建て
- 2,700万円
- 
								
									青森市久須志2丁目 
- 
								青い森鉄道青森 
 
 
- 
														
- 
				- 
														 
- 
						- 中古一戸建て
- 2,180万円
- 
								
									青森市八重田4丁目 
- 
								青い森鉄道小柳 
 
 
- 
														
- 
				- 
														 
- 
						- 中古一戸建て
- 1,490万円
- 
								
									青森市金沢4丁目 
- 
								青い森鉄道青森 
 
 
- 
														
- 
				- 
														 
- 
						- 中古一戸建て
- 2,900万円
- 
								
									八戸市諏訪2丁目 
- 
								市営バス諏訪バス停 
 
 
- 
														
- 
				- 
														 
- 
						- 中古一戸建て
- 320万円
- 
								
									三戸郡階上町蒼前西6丁目 
- 
								コミュニティバス蒼前西5丁目バス停 
 
 
- 
														
- 
				- 
														 
- 
						- 中古一戸建て
- 2,500万円
- 
								
									三戸郡南部町大字埖渡字東あかね 
- 
								なんぶちぇりバス東あかね中央バス停 
 
 
- 
														
- 
				- 
														 
- 
						- 中古一戸建て
- 2,090万円
- 
								
									青森市西滝2丁目 
- 
								青い森鉄道青森 
 
 
- 
														
- 
				- 
														 
- 
						- 中古一戸建て
- 1,680万円
- 
								
									八戸市日計5丁目 
- 
								市営バス根岸バス停 
 
 
- 
														
- 
				- 
														 
- 
						- 中古一戸建て
- 2,180万円
- 
								
									青森市篠田1丁目 
- 
								青い森鉄道青森 
 
 
- 
														
 
     
                         
                         
                         
                    







 
                



















 
                 
             
                    

 
                                            
 
                                             
                                             
                                             
                                             
						 
						
□■ハウスドゥ 青森浪館 (株)リノベアーズ■□
ハウスドゥ青森浪館では、不動産に関するお悩みにワンストップでお任せいただけます!
物件探しはもちろん水まわりや内装・外装などのプチリフォームや全面的な改修まで、お客様のご希望に合わせて様々なリフォームプランをご用意しております。
エージェントが物件探しから資金計画、リフォーム・リノベーションのご相談まで一貫してサポートし、お客様にとって最適なプランをご提案させていただきます!
まずはご相談だけでも、お気軽にお問合せください!