野々市市押野4丁目の中古戸建
NEW 10.20掲載情報更新日:2025年10月20日 次回更新予定日:2025年11月03日
- 3,380万円
-
- 借入ご希望金額
万円 - 借入期間
年 - 借入金利
% - 月々のお支払い金額
円
- 借入ご希望金額
※ 月々のお支払例は目安の試算となりますので、実際の金額とは異なる場合がございます。詳しくは店舗までお問合わせください。
- 野々市市押野4丁目
-
『押野』 徒歩3分 (約240m)
野々市市押野4丁目一戸建て | 物件情報
野々市市押野4丁目 2階建 3LDKの中古戸建が登場!築8年の築浅物件。美邸!駐車場3台可!
小学校まで通学路は交通量が少ないので、親御さんは安心して通学してもらえる場所です!!子育て世代にはうれしいポイント!
幹線道路にアクセスしやすく、どこに行くにも便利な場所です。
近隣にはスーパー、薬局、小学校、中学校、保育園もあり、利便性の良い場所となっております。
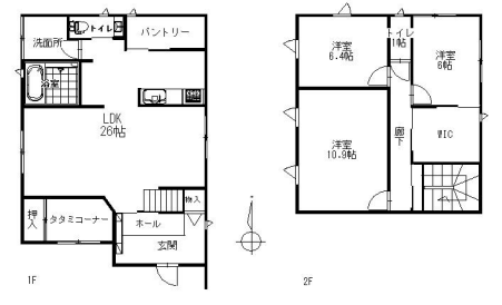
LDKが26帖あり、家族でゆったりとした空間で快適に過ごすことができるでしょう。
リビングには畳コーナーもあります。
物件の設備
- 電気
- オール電化
- 上水道
- 下水道
- 食器洗浄乾燥機
- IHクッキングヒータ
- バス1坪以上
- 追焚機能
- 浴室に窓
- トイレ2箇所
- 照明器具
- モニタ付インターホン
- LDK20畳以上
- 和室
- 複層ガラス
- ウォークインクローゼット
物件の特徴
- 前道6m以上
- 2階建
- 整形地
物件詳細情報
価格 | 3,380万円 | 間取り | 3LDK |
---|---|---|---|
物件種別 | 中古一戸建て | ||
所在地 | 石川県野々市市押野4丁目105-3 | ||
アクセス |
|
||
建物面積 | 126.99㎡ | 駐車場 | あり 普通:3台 |
築年月 | 2016年(平成28年)12月築 | ||
建物構造 | 木造 2階建 | 工法 | |
主要採光 | バルコニー | ||
保証・評価 | |||
リフォーム | |||
土地面積 | 公254.34㎡(76.93坪) | 接道 | 南東側(公道)幅 約7.8m 間口 約2.49m |
私道 | セットバック | ||
地目 | 宅地 | 地勢 | |
権利 | 所有権 |
||
都市計画 | 市街化区域 |
用途地域 | 準工業 |
建ぺい/容積率 | 60% / 200% | 土地国土法 | |
許可番号 | 建築基準法 | ||
法令制限 | |||
小学区 | 館野小学校 徒歩5分 (約368m) | 中学区 | 布水中学校 徒歩12分 (約956m) |
現況 | 空 | 引渡 | 相談 |
その他費用 | |||
周辺環境 | 野々市市立館野小学校 徒歩5分 (約400m) 野々市市スポーツセンター 徒歩9分 (約650m) 野々市市立布水中学校 徒歩13分 (約970m) セブン-イレブン野々市押野2丁目店 徒歩13分 (約1010m) クスリのアオキ押越店 徒歩13分 (約1040m) ウエルシア野々市横宮店 徒歩13分 (約1040m) 野々市郵便局 徒歩16分 (約1210m) クスリのアオキ 西泉店 徒歩16分 (約1270m) MEGAドン・キホーテ 徒歩21分 (約1660m) 金沢有松病院 徒歩27分 (約2160m) |
||
備考 | |||
物件番号 | 4456349 | 取引態様 | 媒介 |
取扱店舗情報
ハウスドゥ ラスパ白山 株式会社アンビション 店舗詳細ページへ
電話番号 | 076-225-6461 |
---|---|
所在地 | 〒924-0865 石川県白山市倉光5丁目14 ラスパ白山 A-10 |
営業時間 | 10:00~19:00 |
定休日 | 年中無休 |
宅建免許番号 | 石川県知事(1)第4517号 |
アクセス | 店舗への地図はこちら |
来店ご予約
- 石川県
マイページ物件数 - 492件
最近見た物件
-
-
-
- 中古一戸建て
- 2,748万円
-
金沢市横川3丁目
-
北陸鉄道石川線押野
-
石川県中古一戸建て新着物件
- お近くの店舗を探す
-
おすすめ物件
-
-
-
- 中古一戸建て
- 1,680万円
-
小松市串町
-
IRいしかわ鉄道粟津
-
-
-
-
- 中古一戸建て
- 2,500万円
-
金沢市諸江町中丁
-
北陸鉄道浅野川線割出
-
-
-
-
- 中古一戸建て
- 485万円
-
金沢市菊川2丁目
-
思案橋バス停
-
-
-
-
- 中古一戸建て
- 1,880万円
-
小松市松生町
-
IRいしかわ鉄道粟津
-
-
-
-
- 中古一戸建て
- 570万円
-
金沢市末町14の
-
IRいしかわ鉄道金沢
-
-
-
-
- 中古一戸建て
- 600万円
-
金沢市大樋町
-
西日本JRバス大樋町
-
-
-
-
- 中古一戸建て
- 150万円
-
金沢市横山町
-
IRいしかわ鉄道金沢
-
-
-
-
- 中古一戸建て
- 3,880万円
-
金沢市高畠2丁目
-
北陸鉄道高畠町
-
-
-
-
- 中古一戸建て
- 90万円
-
小松市大川町3丁目
-
IRいしかわ鉄道小松
-
-
-
-
- 中古一戸建て
- 1,450万円
-
白山市美川本吉町
-
本吉町バス停
-