岡山市北区富田の中古戸建
掲載情報更新日:2026年02月03日 次回更新予定日:2026年02月17日
- 2,890万円
-
- 借入ご希望金額
万円 - 借入期間
年 - 借入金利
% - 月々のお支払い金額
円
- 借入ご希望金額
※ 月々のお支払例は目安の試算となりますので、実際の金額とは異なる場合がございます。詳しくは店舗までお問合わせください。
- 岡山市北区富田
-
JR山陽本線『岡山』 バス乗車15分 岡電バス 富田 停 徒歩3分 (約240m)
岡山市北区富田一戸建て | 物件情報
物件の設備
- 電気
- 上水道
- 公営水道
- 下水道
- 公共下水
- 都市ガス
- 給湯
- 食器乾燥機
- 食器洗浄乾燥機
- コンロ三口
- カウンターキッチン
- システムキッチン
- バス
- 追焚機能
- 浴室暖房
- 浴室乾燥機
- トイレ
- トイレ2箇所
- 温水洗浄便座
- 室内洗濯機置場
- 洗面所独立
- エアコン
- エアコン2基
- 洗濯乾燥機
- 照明器具
- モニタ付インターホン
- 複層ガラス
- 全室フローリング
- クローゼット
- ウォークインクローゼット
- バルコニー
物件の特徴
- 2階建
- 即入居可
物件詳細情報
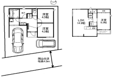
| 価格 | 2,890万円 | 間取り | 3LDK |
|---|---|---|---|
| 物件種別 | 中古一戸建て | ||
| 所在地 | 岡山県岡山市北区富田 | ||
| アクセス |
|
||
| 建物面積 | 83.01㎡ | 駐車場 | あり |
| 築年月 | 2023年(令和5年)09月築 | ||
| 建物構造 | 木造 2階建 | 工法 | |
| 主要採光 | バルコニー | ||
| 保証・評価 | |||
| リフォーム | |||
| 土地面積 | 公80.56㎡(24.36坪) | 接道 | 東側(公道)幅 約4.0m 間口 約8.90m |
| 私道 | セットバック | ||
| 地目 | 宅地 | 地勢 | |
| 権利 | 所有権 |
||
| 都市計画 | 市街化区域 |
用途地域 | 2種住居 |
| 建ぺい/容積率 | 60% / 160% | 土地国土法 | |
| 許可番号 | 建築基準法 | ||
| 法令制限 | 特別用途地区・宅地造成工事規制区域 | ||
| 小学区 | 岡南小学校 徒歩18分 (約1400m) | 中学区 | |
| 現況 | 空 | 引渡 | 即 |
| その他費用 | |||
| 周辺環境 | 岡山駅 徒歩42分 (約3320m) 岡山市立岡南小学校 徒歩18分 (約1410m) 岡山市立岡輝中学校 徒歩20分 (約1600m) セブンイレブン 岡山青江1丁目店 徒歩9分 (約680m) 岡山南眼科 徒歩3分 (約230m) ザ・ビッグ奥田南店 徒歩10分 (約740m) ニトリ 岡山奥田店 徒歩16分 (約1220m) 岡山大元郵便局 徒歩20分 (約1600m) あおぞら保育園 徒歩23分 (約1770m) ドン・キホーテ下中野店 徒歩16分 (約1240m) |
||
| 備考 | ●全部屋にエアコン、照明、カーテンレール付きです。 ●ガス衣類乾燥機、食器洗い乾燥機、浴室乾燥機付きです。 ●キッチンはタッチレス水栓、玄関はポケットキーです。 ●敷地内には2台の駐車スペースがあります。 ●賃貸物件(月額135,000円)としても募集中 |
||
| 物件番号 | 4458881 | 取引態様 | 媒介 |
取扱店舗情報
ハウスドゥ 岡山駅西口 株式会社アールイープロジェクト 店舗詳細ページへ
| 電話番号 | 086-239-8621 |
|---|---|
| 所在地 | 〒700-0025 岡山県岡山市北区寿町1-3 ウエストサイドオカヤマ1階 |
| 営業時間 | 9:00~18:00 |
| 定休日 | 水曜日 |
| 宅建免許番号 | 岡山県知事(2)第5855号 |
| アクセス | 店舗への地図はこちら |

来店ご予約
岡山県岡山市北区で価格が似ている物件はこちら
- 岡山県
マイページ物件数 - 4,507件
最近見た物件
-
-

-
- 中古一戸建て
- 1,399万円
-
三戸郡階上町蒼前西5丁目
-
蒼前西3丁目バス停
-
-
-

-
- 中古一戸建て
- 428万円
-
福山市神辺町大字下竹田
-
井原鉄道御領
-
-
-

-
- 土地
- 1,307万円
-
伊予郡松前町大字筒井
-
伊予鉄道郡中線松前
-
岡山県中古一戸建て新着物件
-
-

-
- 中古一戸建て
- 1,680万円
-
倉敷市児島田の口7丁目
-
JR本四備讃線児島駅
-
-
-

-
- 中古一戸建て
- 3,980万円
-
岡山市中区平井3丁目
-
岡山電軌東山本線東山岡電ミュージアム駅
-
-
-

-
- 中古一戸建て
- 190万円
-
赤磐市和田
-
宇野バス山陽団地西1番
-
-
-

-
- 中古一戸建て
- 300万円
-
倉敷市浜町1丁目
-
JR山陽本線倉敷駅
-
-
-

-
- 中古一戸建て
- 2,280万円
-
岡山市北区西崎1丁目
-
JR吉備線備前三門駅
-
-
-

-
- 中古一戸建て
- 3,800万円
-
倉敷市浜町2丁目
-
JR山陽本線倉敷駅
-
-
-

-
- 中古一戸建て
- 3,820万円
-
倉敷市中島
-
水島臨海鉄道西富井駅
-
- お近くの店舗を探す
-
おすすめ物件
-
-

-
- 中古一戸建て
- 450万円
-
倉敷市児島柳田町
-
JR本四備讃線上の町
-
-
-

-
- 中古一戸建て
- 3,236万円
-
岡山市北区神田町2丁目
-
岡電・両備バス岡南小学校前 停
-
-
-

-
- 中古一戸建て
- 2,390万円
-
高梁市川上町臘数
-
JR伯備線備中高梁
-
-
-

-
- 中古一戸建て
- 100万円
-
岡山市北区建部町福渡
-
JR津山線福渡
-
-
-

-
- 中古一戸建て
- 780万円
-
津山市山北
-
JR津山線津山
-
-
-

-
- 中古一戸建て
- 1,348万円
-
岡山市中区四御神
-
JR山陽本線東岡山
-
-
-

-
- 中古一戸建て
- 1,350万円
-
総社市宿
-
JR吉備線備中高松
-
-
-

-
- 中古一戸建て
- 350万円
-
久米郡美咲町宮山
-
JR姫新線美作大崎
-
-
-

-
- 中古一戸建て
- 980万円
-
赤磐市桜が丘西1丁目
-
JR山陽本線万富
-
-
-

-
- 中古一戸建て
- 1,899万円
-
赤磐市桜が丘東4丁目
-
JR山陽本線万富
-


