宮崎市中西町の中古戸建
掲載情報更新日:2026年03月03日 次回更新予定日:2026年03月17日
- 980万円
-
- 借入ご希望金額
万円 - 借入期間
年 - 借入金利
% - 月々のお支払い金額
円
- 借入ご希望金額
※ 月々のお支払例は目安の試算となりますので、実際の金額とは異なる場合がございます。詳しくは店舗までお問合わせください。
- 宮崎市中西町
-
JR日豊本線『宮崎』 徒歩27分 (約2110m)
JR日豊本線『南宮崎』 徒歩41分 (約3220m)
JR日豊本線『宮崎神宮』 徒歩60分 (約4770m)
宮崎交通『中西町』 徒歩5分 (約400m)
宮崎市中西町一戸建て | 物件情報
南西角地で日当たり良好☆生活便利な中西町エリアの中古住宅!駐車場増設も可能♪
◆南西角地で明るく開放的!
陽当たりが良く、風通しの良い立地。快適な住環境です。
◆生活便利な中西町エリア!
スーパー・コンビニ・病院などが徒歩圏内に揃う便利な立地です。
◆駐車場増設可能!
お車の台数や来客にも柔軟に対応できます。
◆小・中学校まで徒歩圏内!
潮見小学校まで徒歩約11分、宮崎中学校まで徒歩約16分の安心の通学距離です。
物件の設備
- 公営水道
- 下水道
- 都市ガス
- コンロ三口
- システムキッチン
- バス
- 浴室に窓
- トイレ
- トイレ2箇所
- 温水洗浄便座
- 室内洗濯機置場
- 洗髪洗面化粧台
- リビング階段
- 和室
- 全居室6畳以上
- 出窓
- 納戸
- 南庭
物件の特徴
- 南側道路面す
- 閑静な住宅街
- 陽当り良好
- 2階建
- 角地
- 平坦地
- 整形地
- 即入居可
物件詳細情報
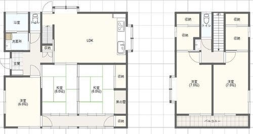
| 価格 | 980万円 | 間取り | 5LDK+S |
|---|---|---|---|
| 物件種別 | 中古一戸建て | ||
| 所在地 | 宮崎県宮崎市中西町 | ||
| アクセス |
|
||
| 建物面積 | 公124.02㎡ | 駐車場 | あり 普通:1台 |
| 築年月 | 1977年(昭和52年)06月築 | ||
| 建物構造 | 木造 2階建 | 工法 | |
| 主要採光 | バルコニー | ||
| 保証・評価 | |||
| リフォーム | |||
| 土地面積 | 公165.29㎡(50坪) | 接道 | 南側(公道)幅 約5.0m 間口 約12.30m 西側(公道)幅 約5.0m |
| 私道 | 別:公76.27㎡ | セットバック | |
| 地目 | 宅地 | 地勢 | 平坦 |
| 権利 | 所有権 |
||
| 都市計画 | 市街化区域 |
用途地域 | 1種低層 |
| 建ぺい/容積率 | 60% / 100% | 土地国土法 | |
| 許可番号 | 建築基準法 | ||
| 法令制限 | |||
| 小学区 | 潮見小学校 徒歩11分 (約850m) | 中学区 | 宮崎中学校 徒歩16分 (約1270m) |
| 現況 | 空 | 引渡 | 即 |
| その他費用 | |||
| 周辺環境 | マルイチ 一の宮店 徒歩5分 (約350m) WASHハウス 宮崎中西店 徒歩5分 (約380m) セブンイレブン 宮崎一の宮町店 徒歩6分 (約450m) まえだストアー 徒歩8分 (約600m) コスモス 曽師店 徒歩9分 (約700m) 出来島・高洲コミュニティーセンター 徒歩9分 (約670m) 潮見小学校 徒歩11分 (約850m) ファミリーマート 潮見町店 徒歩10分 (約750m) セブン-イレブン 宮崎高洲町店 徒歩11分 (約810m) ローソン 宮崎稗原町店 徒歩15分 (約1190m) |
||
| 備考 | 利便性のいい中西町に中古住宅☆南西角地で日当たりも良好。駐車場は増設可能です。 | ||
| 物件番号 | 4466148 | 取引態様 | 媒介 |
取扱店舗情報
| 電話番号 | 0985-86-7336 |
|---|---|
| 所在地 | 〒889-1607 宮崎県宮崎市清武町加納3丁目16 メモワールII101号室 |
| 営業時間 | 9:00~20:00 |
| 定休日 | 不定休 |
| 宅建免許番号 | 宮崎県知事(1)第4995号 |
| アクセス | 店舗への地図はこちら |

来店ご予約
宮崎県宮崎市で価格が似ている物件はこちら
- 宮崎県
マイページ物件数 - 1,633件
最近見た物件
-
-

-
- 中古一戸建て
- 3,480万円
-
北名古屋市片場大石
-
名鉄犬山線西春
-
宮崎県中古一戸建て新着物件
-
-

-
- 中古一戸建て
- 1,680万円
-
宮崎市高岡町五町
-
JR日豊本線宮崎神宮駅
-
-
-

-
- 中古一戸建て
- 2,300万円
-
宮崎市学園木花台南3丁目
-
JR日南線木花駅
-
-
-

-
- 中古一戸建て
- 2,749万円
-
児湯郡高鍋町大字北高鍋
-
JR日豊本線高鍋駅
-
-
-

-
- 中古一戸建て
- 2,800万円
-
宮崎市大塚町樋ノ口
-
大塚神社前
-
-
-

-
- 中古一戸建て
- 750万円
-
宮崎市佐土原町下田島
-
JR日豊本線佐土原駅
-
-
-

-
- 中古一戸建て
- 2,050万円
-
宮崎市大字赤江
-
JR日南線田吉駅
-
-
-

-
- 中古一戸建て
- 1,580万円
-
宮崎市佐土原町下田島
-
JR日豊本線佐土原駅
-
- お近くの店舗を探す
-
おすすめ物件
-
-

-
- 中古一戸建て
- 2,000万円
-
宮崎市江南2丁目
-
JR日豊本線南宮崎
-
-
-

-
- 中古一戸建て
- 280万円
-
宮崎市佐土原町東上那珂
-
野久尾バス停
-
-
-

-
- 中古一戸建て
- 2,900万円
-
宮崎市田野町乙
-
JR日豊本線田野
-
-
-

-
- 中古一戸建て
- 3,600万円
-
宮崎市高岡町飯田3丁目
-
JR日豊本線宮崎
-
-
-

-
- 中古一戸建て
- 700万円
-
日南市南郷町中村乙
-
JR日南線南郷
-
-
-

-
- 中古一戸建て
- 2,300万円
-
宮崎市学園木花台南3丁目
-
JR日南線木花
-
-
-

-
- 中古一戸建て
- 1,400万円
-
宮崎市堀川町
-
JR日豊本線宮崎
-
-
-

-
- 中古一戸建て
- 1,600万円
-
日南市時任町
-
JR日南線飫肥
-
-
-

-
- 中古一戸建て
- 1,150万円
-
宮崎市大字本郷北方
-
JR日南線田吉
-
-
-

-
- 中古一戸建て
- 1,990万円
-
宮崎市吉村町曽師前
-
JR日豊本線宮崎
-
























担当エージェント:小玉 賢太
南西角地で日当たりの良い中古住宅です。生活利便性の高い中西町エリアにあり、周辺環境も充実。駐車場は増設も可能で、ご家族のライフスタイルに合わせた使い方ができます。ぜひ一度現地をご覧ください。