菊池市大琳寺の中古戸建
掲載情報更新日:2026年05月19日 次回更新予定日:2026年06月02日
- 1,998万円
-
- 借入ご希望金額
万円 - 借入期間
年 - 借入金利
% - 月々のお支払い金額
円
- 借入ご希望金額
※ 月々のお支払例は目安の試算となりますので、実際の金額とは異なる場合がございます。詳しくは店舗までお問合わせください。
- 菊池市大琳寺
-
熊本電気鉄道『御代志』 車25分(約12.6km)
『大琳寺』 徒歩4分 (約320m)
菊池市大琳寺一戸建て | 物件情報
《一気見ツアー今すぐOK》☆仲介手数料無料物件(65万円相当がお得!)お気軽にお問合せください♪
【内覧ツアー×最安値保証】ネットの物件、すべて当社で紹介可能!交渉力で「理想の価格」を叶えます
当社は通常かかる仲介手数料(物件価格の3%+6万円)が無料(例:3000万円の場合、90万円相当)
売主様への価格交渉も得意なので、どこよりもお安くご購入いただけるよう徹底サポートします!
他社様でお見積もりを取った後でも大丈夫!もっと安く買えるのでは?そんな悩みは当社が解決します
【内覧ツアー】
熊本県内全域の気になる物件をすべて当社でご内覧いただける『内覧ツアー』を実施中☆
新築・中古・中古マンションも!見学されたい物件を1日で内覧可能♪
窓口を一つに絞れるから、手間も時間もかかりません。
【最安値保証】
\最 安 値 徹 底 宣 言/
他社様よりも必ずお得にご購入いただけることをお約束します
当社ではオプション費用(エアコン、網戸、太陽光等)もお客様に代わり相見積もりします
トータルの費用が100万円以上変わることも!
全国700店舗以上展開!
ハウスドゥだからこその豊富な物件数・情報量でお客様のお家選びをトータルサポートいたします!
物件の設備
- 電気
- 上水道
- 公営水道
- 下水道
- 公共下水
- プロパンガス
- 給湯
- 食器洗浄乾燥機
- コンロ三口
- グリル
- ガスコンロ付
- カウンターキッチン
- システムキッチン
- バス
- オートバス
- バス1坪以上
- 浴室暖房
- 浴室乾燥機
- トイレ
- 温水洗浄便座
- 室内洗濯機置場
- 洗髪洗面化粧台
- 洗面所独立
- モニタ付インターホン
- 火災警報器/報知機
- 和室
- 2面採光
- 出窓
- フローリング
- フローリング張替
- 網戸
- クローゼット
- クローゼット3箇所
- シューズボックス
- バルコニー
- ワイドバルコニー
- 庭
物件の特徴
- 内装リフォーム済
- 外装リフォーム済
- 内外装リフォーム済
- スーパーが近い
- 閑静な住宅街
- 通風良好
- 陽当り良好
- 2階建
- 整形地
- 即入居可
オープンハウス・イベント情報
開催日時:毎週土日祝 09:00~19:00
開催場所:熊本県菊池市
\\現地見学会ご予約受付中// ○平日・土日祝いつでも承ります!! 〇お仕事帰りもOK!早朝・19時以降も対応致します! ◇◆◇お問い合わせ◇◆◇ 電話:096-243-3000 または 見学予約フォームにて事前にご予約をお願いします♪ ◇◆◇見学のご予約◇◆◇ 事前にご希望日時…
物件詳細情報
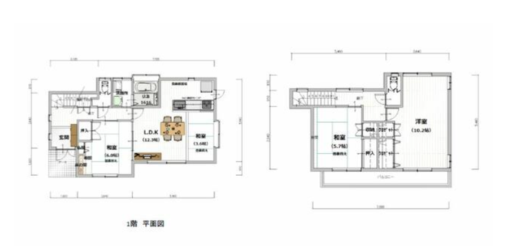
| 価格 | 1,998万円 | 間取り | 3LDK |
|---|---|---|---|
| 物件種別 | 中古一戸建て | ||
| 所在地 | 熊本県菊池市大琳寺279-3 | ||
| アクセス |
|
||
| 建物面積 | 98.65㎡ | 駐車場 | あり 普通:2台 |
| 築年月 | 1990年(平成2年)11月築 | ||
| 建物構造 | 木造 2階建 | 工法 | |
| 主要採光 | バルコニー | ||
| 保証・評価 | |||
| リフォーム | 【水回り】2025年09月 浴室・トイレ・洗面・給湯器 【外装】2025年09月 外壁 ・屋根 【内装】2025年09月 全面 ・壁、天井 ・床 ・全室クロス ・建具 ・サッシ |
||
| 土地面積 | 198.69㎡(60.10坪) | 接道 | |
| 私道 | セットバック | ||
| 地目 | 宅地 | 地勢 | |
| 権利 | 所有権 |
||
| 都市計画 | 市街化区域 |
用途地域 | 1種住居 |
| 建ぺい/容積率 | 60% / 172% | 土地国土法 | |
| 許可番号 | 建築基準法 | ||
| 法令制限 | |||
| 小学区 | 隈府小学校 徒歩11分 (約832m) | 中学区 | 菊池南中学校 徒歩11分 (約877m) |
| 現況 | 空 | 引渡 | 即 |
| その他費用 | |||
| 周辺環境 | 隈府小学校 徒歩11分 (約880m) 菊池南中学校 徒歩12分 (約900m) 菊池幼稚園 徒歩7分 (約550m) セブンイレブン 菊池北原店 徒歩11分 (約830m) ロッキースーパーストア 菊池店 徒歩6分 (約410m) 菊池中央病院 徒歩7分 (約490m) 菊池郵便局 徒歩10分 (約730m) 菊池市役所 徒歩11分 (約880m) サニー菊池店 徒歩4分 (約310m) 肥後銀行 菊池支店 徒歩12分 (約920m) |
||
| 備考 | ・菊池市立 隈府小学校まで徒歩11分(約880m) ・菊池市立菊池南中学校まで徒歩12分(約900m) ・菊池幼稚園まで徒歩7分(約550m) ・セブンイレブン 菊池北原店まで徒歩11分(約830m) ・ロッキースーパーストア 菊池店まで徒歩6分(約410m) ・菊池中央病院まで徒歩7分(約490m) ・菊池郵便局まで徒歩10分(約730m) ・菊池市役所まで徒歩11分(約880m) ・サニー菊池店まで徒歩4分(約310m) ・肥後銀行 菊池支店まで徒歩12分(約920m) |
||
| 物件番号 | 4467312 | 取引態様 | 媒介 |
取扱店舗情報
ハウスドゥ 御幸田迎 株式会社Remado 店舗詳細ページへ
| 電話番号 | 096-243-3000 |
|---|---|
| 所在地 | 〒861-4108 熊本県熊本市南区幸田1丁目7-20 |
| 営業時間 | 10:00~18:00 |
| 定休日 | お盆、年末年始 |
| 宅建免許番号 | 熊本県知事(1)第5556号 |
| アクセス | 店舗への地図はこちら |

来店ご予約
熊本県菊池市で価格が似ている物件はこちら
- 熊本県
マイページ物件数 - 3,079件
最近見た物件
-
-

-
- 新築一戸建て
- 5,500万円
-
松山市北斎院町
-
伊予鉄道高浜線山西
-
-
-

-
- 新築一戸建て
- 3,798万円
-
菊池郡菊陽町大字津久礼
-
JR豊肥本線原水
-
-
-

-
- 新築一戸建て
- 2,180万円
-
弘前市大字東城北2丁目
-
弘南鉄道大鰐線中央弘前
-
熊本県中古一戸建て新着物件
-
-

-
- 中古一戸建て
- 3,598万円
-
熊本市東区健軍3丁目
-
熊本市健軍線健軍交番前駅
-
-
-

-
- 中古一戸建て
- 3,598万円
-
熊本市東区健軍3丁目
-
熊本市健軍線健軍交番前駅
-
-
-

-
- 中古一戸建て
- 2,999万円
-
熊本市北区麻生田5丁目
-
熊本電気鉄道須屋駅
-
-
-

-
- 中古一戸建て
- 2,999万円
-
熊本市北区麻生田5丁目
-
熊本電気鉄道須屋駅
-
-
-

-
- 中古一戸建て
- 4,500万円
-
菊池郡菊陽町沖野2丁目
-
JR豊肥本線三里木駅
-
-
-

-
- 中古一戸建て
- 3,098万円
-
熊本市東区八反田2丁目
-
JR豊肥本線東海学園前駅
-
-
-

-
- 中古一戸建て
- 1,290万円
-
阿蘇郡西原村大字布田
-
JR豊肥本線肥後大津駅
-
- お近くの店舗を探す
-
おすすめ物件
-
-

-
- 中古一戸建て
- 4,380万円
-
宇城市不知火町御領
-
JR鹿児島本線松橋
-
-
-

-
- 中古一戸建て
- 2,698万円
-
熊本市東区戸島1丁目
-
JR豊肥本線光の森
-
-
-

-
- 中古一戸建て
- 1,750万円
-
熊本市北区山室2丁目
-
熊本電気鉄道八景水谷
-
-
-

-
- 中古一戸建て
- 2,480万円
-
熊本市東区神園2丁目
-
JR豊肥本線武蔵塚
-
-
-

-
- 中古一戸建て
- 2,198万円
-
熊本市南区野口1丁目
-
JR鹿児島本線西熊本
-
-
-

-
- 中古一戸建て
- 1,130万円
-
合志市須屋
-
熊本電気鉄道須屋
-
-
-

-
- 中古一戸建て
- 4,900万円
-
合志市御代志
-
熊本電気鉄道御代志
-
-
-

-
- 中古一戸建て
- 4,280万円
-
熊本市東区佐土原3丁目
-
熊本市健軍線健軍町
-
-
-

-
- 中古一戸建て
- 2,350万円
-
熊本市北区楠4丁目
-
JR豊肥本線武蔵塚
-
-
-

-
- 中古一戸建て
- 4,698万円
-
熊本市南区八幡11丁目
-
JR鹿児島本線川尻
-























担当エージェント:藤原 章裕
【月々の支払い例】
2000万円借り入れの場合
月々40,265円(頭金・ボーナス払いなし)
金利0.780%の場合(SBI新生銀行、金利優遇有)
変動金利 返済期間50年
※あくまで一例。条件有。
【周辺環境】
・菊池市立 隈府小学校まで徒歩11分(約880m)
・菊池市立菊池南中学校まで徒歩12分(約900m)
・菊池幼稚園まで徒歩7分(約550m)
・セブンイレブン 菊池北原店まで徒歩11分(約830m)
・ロッキースーパーストア 菊池店まで徒歩6分(約410m)
・菊池中央病院まで徒歩7分(約490m)
・菊池郵便局まで徒歩10分(約730m)
・菊池市役所まで徒歩11分(約880m)
・サニー菊池店まで徒歩4分(約310m)
・肥後銀行 菊池支店まで徒歩12分(約920m)
いつでもお気軽にご連絡ください☆彡
お問い合わせは『株式会社Remado』まで♪