熊本市南区孫代町の中古戸建
掲載情報更新日:2026年04月21日 次回更新予定日:2026年05月05日
- 1,788万円
-
- 借入ご希望金額
万円 - 借入期間
年 - 借入金利
% - 月々のお支払い金額
円
- 借入ご希望金額
※ 月々のお支払例は目安の試算となりますので、実際の金額とは異なる場合がございます。詳しくは店舗までお問合わせください。
- 熊本市南区孫代町
-
JR鹿児島本線『西熊本』 徒歩40分 (約3200m)
JR三角線『川尻』 徒歩58分 (約4640m)
『砂原(川口)』 徒歩4分 (約320m)
熊本市南区孫代町一戸建て | 物件情報
《一気見ツアー今すぐOK》☆ご成約で5万円以内のお好きな家具家電等プレゼント♪(当社から指定なし)
【内覧ツアー×最安値保証】ネットの物件、すべて当社で紹介可能!交渉力で「理想の価格」を叶えます
☆5万円以内のお好きな家具家電等プレゼント!※景品表示法の範囲内でプレゼント!
売主様への価格交渉も得意なので、どこよりもお安くご購入いただけるよう徹底サポートします!
他社様でお見積もりを取った後でも大丈夫!もっと安く買えるのでは?そんな悩みは当社が解決します
【内覧ツアー】
熊本県内全域の気になる物件をすべて当社でご内覧いただける『内覧ツアー』を実施中☆
新築・中古・中古マンションも!見学されたい物件を1日で内覧可能♪
窓口を一つに絞れるから、手間も時間もかかりません。
【最安値保証】
\最 安 値 徹 底 宣 言/
他社様よりも必ずお得にご購入いただけることをお約束します
当社ではオプション費用(エアコン、網戸、太陽光等)もお客様に代わり相見積もりします
トータルの費用が300万円以上変わることも!
全国700店舗以上展開!
ハウスドゥだからこその豊富な物件数・情報量でお客様のお家選びをトータルサポートいたします!
物件の設備
- 電気
- 上水道
- 公営水道
- 下水道
- 公共下水
- 側溝
- プロパンガス
- 給湯
- 浄水器
- コンロ三口
- グリル
- システムキッチン
- オープンキッチン
- バス
- ユニットバス
- オートバス
- 追焚機能
- 浴室に窓
- トイレ
- 温水洗浄便座
- 室内洗濯機置場
- 洗髪洗面化粧台
- 洗面所独立
- 照明器具
- ダウンライト
- 省エネ給湯器
- モニタ付インターホン
- 和室
- フローリング
- 一部フローリング
- フローリング張替
- シャッター雨戸
- 網戸
- クローゼット
- クローゼット2箇所
- 納戸
- シューズボックス
- 庭
物件の特徴
- 内装リフォーム済
- 外装リフォーム済
- 内外装リフォーム済
- 2沿線利用可
- 小学校徒歩10分以内
- 前道6m以上
- 通風良好
- 陽当り良好
- 2階建
- 耐震基準適合証明書有
- 即入居可
オープンハウス・イベント情報
開催日時:毎週土日祝 09:00~19:00
開催場所:熊本県熊本市南区
\\現地見学会ご予約受付中// ○平日・土日祝いつでも承ります!! 〇お仕事帰りもOK!早朝・19時以降も対応致します! ◇◆◇お問い合わせ◇◆◇ 電話:096-243-3000 または 見学予約フォームにて事前にご予約をお願いします♪ ◇◆◇見学のご予約◇◆◇ 事前にご希望日時…
物件詳細情報
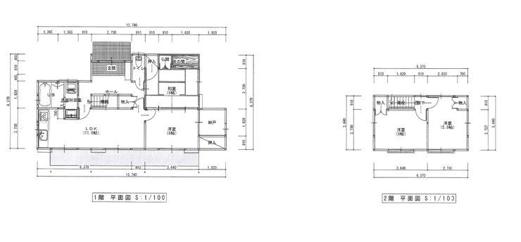
| 価格 | 1,788万円 | 間取り | 4LDK+S |
|---|---|---|---|
| 物件種別 | 中古一戸建て | ||
| 所在地 | 熊本県熊本市南区孫代町130-5 | ||
| アクセス |
|
||
| 建物面積 | 91.08㎡ | 駐車場 | あり 普通:2台 |
| 築年月 | 1980年(昭和55年)05月築 | ||
| 建物構造 | 木造 2階建 | 工法 | |
| 主要採光 | バルコニー | ||
| 保証・評価 | 耐震基準適合証明書(検査日:2025/10/07) |
||
| リフォーム | 【水回り】2025年10月 キッチン・浴室・トイレ・洗面 【外装】2025年10月 外壁 ・屋根 【内装】2025年10月 壁、天井 ・床 ・建具 |
||
| 土地面積 | 187.23㎡(56.63坪) | 接道 | 北側(公道)幅 約8.7m |
| 私道 | セットバック | ||
| 地目 | 宅地 | 地勢 | |
| 権利 | 所有権 |
||
| 都市計画 | 市街化区域 |
用途地域 | 2種中高 |
| 建ぺい/容積率 | 60% / 200% | 土地国土法 | |
| 許可番号 | 建築基準法 | ||
| 法令制限 | |||
| 小学区 | 飽田東小学校 徒歩9分 (約650m) | 中学区 | 飽田中学校 徒歩3分 (約240m) |
| 現況 | 空 | 引渡 | 即 |
| その他費用 | |||
| 周辺環境 | 飽田東小学校 徒歩9分 (約650m) 飽田中学校 徒歩3分 (約240m) 飽田東保育園 徒歩5分 (約380m) ファミリーマート あきた店 徒歩6分 (約440m) パディマーケット 徒歩26分 (約2040m) ゆめマート城山店 徒歩29分 (約2280m) ドラッグセガミ熊本城山店 徒歩27分 (約2150m) 八分字郵便局 徒歩9分 (約710m) 土井内科クリニック 徒歩10分 (約800m) 南区役所 飽田まちづくりセンター 徒歩14分 (約1120m) |
||
| 備考 | ・飽田東小学校まで徒歩9分(約650m) ・飽田中学校まで徒歩3分(約240m) ・飽田東保育園まで徒歩5分(約380m) ・ファミリーマート あきた店まで徒歩6分(約440m) ・パディマーケットまで徒歩26分(約2040m) ・ゆめマート城山店まで徒歩29分(約2280m) ・ドラッグセガミ熊本城山店まで徒歩27分(約2150m) ・八分字郵便局まで徒歩9分(約710m) ・土井内科クリニックまで徒歩10分(約800m) ・南区役所 飽田まちづくりセンターまで徒歩14分(約1120m) |
||
| 物件番号 | 4468574 | 取引態様 | 媒介 |
取扱店舗情報
ハウスドゥ 御幸田迎 株式会社Remado 店舗詳細ページへ
| 電話番号 | 096-243-3000 |
|---|---|
| 所在地 | 〒861-4108 熊本県熊本市南区幸田1丁目7-20 |
| 営業時間 | 10:00~18:00 |
| 定休日 | お盆、年末年始 |
| 宅建免許番号 | 熊本県知事(1)第5556号 |
| アクセス | 店舗への地図はこちら |

来店ご予約
熊本県熊本市南区で価格が似ている物件はこちら
- 熊本県
マイページ物件数 - 3,139件
最近見た物件
-
-

-
- 中古一戸建て
- 2,798万円
-
姫路市上大野4丁目
-
JR播但線野里
-
-
-

-
- 中古一戸建て
- 1,228万円
-
赤磐市桜が丘西6丁目
-
桜が丘西6丁目バス停
-
熊本県中古一戸建て新着物件
-
-

-
- 中古一戸建て
- 2,198万円
-
菊池郡大津町美咲野3丁目
-
JR豊肥本線肥後大津駅
-
-
-

-
- 中古一戸建て
- 1,490万円
-
熊本市北区龍田弓削2丁目
-
JR豊肥本線武蔵塚駅
-
-
-

-
- 中古一戸建て
- 3,490万円
-
菊池郡菊陽町光の森4丁目
-
JR豊肥本線光の森駅
-
-
-

-
- 中古一戸建て
- 1,790万円
-
熊本市東区小山5丁目
-
JR豊肥本線武蔵塚駅
-
-
-

-
- 中古一戸建て
- 2,398万円
-
熊本市北区飛田1丁目
-
JR鹿児島本線西里駅
-
-
-

-
- 中古一戸建て
- 2,290万円
-
合志市須屋
-
熊本電気鉄道三ツ石駅
-
-
-

-
- 中古一戸建て
- 3,090万円
-
合志市幾久富
-
JR豊肥本線光の森駅
-
- お近くの店舗を探す
-
おすすめ物件
-
-

-
- 中古一戸建て
- 2,498万円
-
熊本市南区薄場1丁目
-
JR鹿児島本線西熊本
-
-
-

-
- 中古一戸建て
- 750万円
-
熊本市北区徳王1丁目
-
JR鹿児島本線崇城大学前
-
-
-

-
- 中古一戸建て
- 2,570万円
-
合志市野々島
-
熊本電気鉄道御代志
-
-
-

-
- 中古一戸建て
- 4,380万円
-
合志市御代志
-
熊本電気鉄道御代志
-
-
-

-
- 中古一戸建て
- 1,758万円
-
熊本市南区日吉2丁目
-
JR鹿児島本線西熊本
-
-
-

-
- 中古一戸建て
- 2,790万円
-
合志市合生
-
熊本電気鉄道御代志
-
-
-

-
- 中古一戸建て
- 1,670万円
-
熊本市南区城南町藤山
-
JR三角線富合
-
-
-

-
- 中古一戸建て
- 2,058万円
-
熊本市北区清水岩倉2丁目
-
熊本電気鉄道新須屋
-
-
-

-
- 中古一戸建て
- 4,698万円
-
熊本市南区八幡11丁目
-
JR鹿児島本線川尻
-
-
-

-
- 中古一戸建て
- 4,900万円
-
合志市御代志
-
熊本電気鉄道御代志
-























担当エージェント:髙濱 将弥
【月々の支払い例】
1800万円借り入れの場合
月々36,238円(頭金・ボーナス払いなし)
金利0.780%の場合(SBI新生銀行、金利優遇有)
変動金利 返済期間50年
※あくまで一例。条件有。
【周辺環境】
・飽田東小学校まで徒歩9分(約650m)
・飽田中学校まで徒歩3分(約240m)
・飽田東保育園まで徒歩5分(約380m)
・ファミリーマート あきた店まで徒歩6分(約440m)
・パディマーケットまで徒歩26分(約2040m)
・ゆめマート城山店まで徒歩29分(約2280m)
・ドラッグセガミ熊本城山店まで徒歩27分(約2150m)
・八分字郵便局まで徒歩9分(約710m)
・土井内科クリニックまで徒歩10分(約800m)
・南区役所 飽田まちづくりセンターまで徒歩14分(約1120m)
いつでもお気軽にご連絡ください☆彡
お問い合わせは『株式会社Remado』まで♪