宇都宮市今泉町の中古戸建
NEW 10.30掲載情報更新日:2025年10月30日 次回更新予定日:2025年11月13日
- 3,980万円
-
- 借入ご希望金額
万円 - 借入期間
年 - 借入金利
% - 月々のお支払い金額
円
- 借入ご希望金額
※ 月々のお支払例は目安の試算となりますので、実際の金額とは異なる場合がございます。詳しくは店舗までお問合わせください。
- 宇都宮市今泉町
-
宇都宮芳賀ライト線『陽東3丁目』 徒歩24分 (約1920m)
宇都宮芳賀ライト線『峰』 徒歩28分 (約2240m)
JR東北本線『宇都宮』 車11分(約3.5km)
宇都宮市今泉町一戸建て | 物件情報
人気の泉が丘小・中学校エリア☆デザインリノベーションハウス(^^♪
並列3台駐車可能♪
ダイニングには間接照明あり☆
3帖のランドリールームがあり収納充実☆
家族が必ず顔を合わせるリビング内階段☆
物件の設備
- 電気
- 公営水道
- 公共下水
- プロパンガス
- 浄水器
- IHクッキングヒータ
- システムキッチン
- フローリング張替
- ウォークインクローゼット
- ウォークスルークローゼット
- シューズインクローク
物件の特徴
- リノベーション
- 内装リフォーム済
- 外装リフォーム済
- 内外装リフォーム済
- 2階建
物件詳細情報
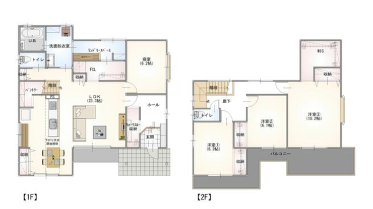
| 価格 | 3,980万円 | 間取り | 4LDK+S |
|---|---|---|---|
| 物件種別 | 中古一戸建て | ||
| 所在地 | 栃木県宇都宮市今泉町 | ||
| アクセス |
|
||
| 建物面積 | 146.23㎡ | 駐車場 | あり |
| 築年月 | 1990年(平成2年)08月築 | ||
| 建物構造 | 軽量鉄骨 2階建 | 工法 | |
| 主要採光 | バルコニー | ||
| 保証・評価 | |||
| リフォーム | 【水回り】2026年03月予定 キッチン・浴室・トイレ・洗面・給湯器・給排水管 【外装】2026年03月予定 外壁 ・屋根 【内装】2026年03月予定 全面 ・壁、天井 ・床 ・全室クロス ・建具 ・サッシ 【共用】2026年03月予定 【その他】2026年03月予定 |
||
| 土地面積 | 264㎡(79.86坪) | 接道 | |
| 私道 | セットバック | ||
| 地目 | 宅地 | 地勢 | |
| 権利 | 所有権 |
||
| 都市計画 | 市街化区域 |
用途地域 | 1種住居 |
| 建ぺい/容積率 | 60% / 200% | 土地国土法 | |
| 許可番号 | 建築基準法 | ||
| 法令制限 | |||
| 小学区 | 泉が丘小学校 徒歩9分 (約660m) | 中学区 | 泉が丘中学校 徒歩10分 (約750m) |
| 現況 | 引渡 | 期日指定:2026年03月末以降 | |
| その他費用 | |||
| 周辺環境 | 泉が丘小学校 徒歩9分 (約660m) 宇都宮市立泉が丘中学校 徒歩10分 (約750m) シャトレーゼ 宇都宮中今泉店 徒歩13分 (約990m) |
||
| 備考 | |||
| 物件番号 | 4469097 | 取引態様 | 媒介 |
取扱店舗情報
ハウスドゥ 中戸祭 株式会社ケイズ・ネクスト 店舗詳細ページへ
| 電話番号 | 028-680-4339 |
|---|---|
| 所在地 | 〒320-0052 栃木県宇都宮市中戸祭町867-3 イステートハイツ中戸祭 |
| 営業時間 | 9:00~18:00 |
| 定休日 | 水曜日・夏休暇・GW・年末年始 |
| 宅建免許番号 | 栃木県知事(1)第5469号 |
| アクセス | 店舗への地図はこちら |

来店ご予約
栃木県宇都宮市で価格が似ている物件はこちら
- 栃木県
マイページ物件数 - 6,632件
最近見た物件
-
-

-
- 新築一戸建て
- 3,798万円
-
春日市白水ヶ丘2丁目
-
JR博多南線博多南
-
-
-

-
- 新築一戸建て
- 4,799万円
-
名古屋市南区赤坪町
-
名鉄名古屋本線本笠寺
-
-
-

-
- 中古マンション
- 3,180万円
-
大阪市淀川区木川東4丁目
-
大阪市御堂筋線新大阪
-
栃木県中古一戸建て新着物件
- お近くの店舗を探す
-
おすすめ物件
-
-

-
- 中古一戸建て
- 3,280万円
-
宇都宮市戸祭3丁目
-
東武宇都宮線東武宇都宮
-
-
-

-
- 中古一戸建て
- 1億3,000万円
-
宇都宮市陽東5丁目
-
宇都宮芳賀ライト線宇都宮大学陽東キャンパス
-
-
-

-
- 中古一戸建て
- 2,950万円
-
佐野市高萩町
-
JR両毛線佐野
-
-
-

-
- 中古一戸建て
- 1,600万円
-
宇都宮市下川俣町
-
JR東北本線岡本
-
-
-

-
- 中古一戸建て
- 3,080万円
-
鹿沼市玉田町
-
東武日光線北鹿沼
-
-
-

-
- 中古一戸建て
- 1,480万円
-
那須塩原市東赤田
-
JRバス西那須野消防署前
-
-
-

-
- 中古一戸建て
- 1億2,000万円
-
宇都宮市鶴田町
-
東武宇都宮線東武宇都宮
-
-
-

-
- 中古一戸建て
- 1,980万円
-
宇都宮市下平出町
-
宇都宮芳賀ライト線平石中央小学校前
-
-
-

-
- 中古一戸建て
- 2,780万円
-
宇都宮市石井町
-
宇都宮芳賀ライト線平石中央小学校前
-
-
-

-
- 中古一戸建て
- 3,190万円
-
宇都宮市鶴田町
-
JR日光線鶴田
-


















