白山市鶴来大国町の中古戸建
NEW 10.30掲載情報更新日:2025年10月30日 次回更新予定日:2025年11月13日
- 900万円
- 
                    - 借入ご希望金額
 万円
-  借入期間
 年
-  借入金利
 %
-  月々のお支払い金額
 円
 
- 借入ご希望金額
※ 月々のお支払例は目安の試算となりますので、実際の金額とは異なる場合がございます。詳しくは店舗までお問合わせください。
- 白山市鶴来大国町
- 
                    北陸鉄道石川線『鶴来』 徒歩6分 (約480m)
 
白山市鶴来大国町一戸建て | 物件情報
白山市鶴来大国町に2階建6DKの戸建が登場!敷地面積も広くゆったりと過ごしたい方におすすめです。
             
        
            白山市鶴来大国町に登場した、土地面積277.87㎡・建物面積168.15㎡のゆとりある中古戸建住宅です。
2024年10月に減築・増築を含むリノベーションが行われ、ゆとりを持って快適に暮らせる住まいへと整えられています。
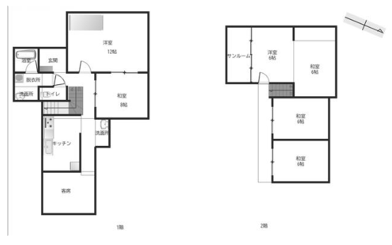
間取りも6DKと多くあり、ライフスタイルに合わせやすく大家族や来客多い方にもうれしいですね。
ワーキングスペースとして活用するのもいいですね。
駐車スペースも3台以上確保されており、来客時にも安心。車の複数所有も可能です。
徒歩圏内にはつるぎショッピングスクエアLET’Sやファミリーマート白山月橋店、中学校・小学校、保育園が揃い、生活環境や子育て環境も良好。広い敷地はお子さまの遊び場やガーデニングスペースとしても楽しめ、暮らしの幅を広げてくれます。        
物件の設備
- 電気
- 上水道
- 下水道
- プロパンガス
- 洗髪洗面化粧台
- エアコン
- 照明器具
- CATVインターネット
物件の特徴
- 前道6m以上
- 2階建
物件詳細情報
| 価格 | 900万円 | 間取り | 6DK | 
|---|---|---|---|
| 物件種別 | 中古一戸建て | ||
| 所在地 | 石川県白山市鶴来大国町 | ||
| アクセス | 
 | ||
| 建物面積 | 168.15㎡ | 駐車場 | あり 普通:3台 | 
| 築年月 | 1971年(昭和46年)11月築 | ||
| 建物構造 | 木造 2階建 | 工法 | |
| 主要採光 | バルコニー | ||
| 保証・評価 | |||
| リフォーム | |||
| 土地面積 | 公277.87㎡(84.05坪) | 接道 | 東側(公道)幅 約7.9m 間口 約7.70m 西側(公道)幅 約6.0m 間口 約10.00m | 
| 私道 | セットバック | ||
| 地目 | 宅地 | 地勢 | |
| 権利 | 所有権 | ||
| 都市計画 | 市街化区域 | 用途地域 | 準工業 | 
| 建ぺい/容積率 | 80% / 200% | 土地国土法 | |
| 許可番号 | 建築基準法 | ||
| 法令制限 | |||
| 小学区 | 朝日小学校 徒歩21分 (約1682m) | 中学区 | 鶴来中学校 徒歩10分 (約750m) | 
| 現況 | 居住中 | 引渡 | 相談 | 
| その他費用 | |||
| 周辺環境 | 鶴来駅 徒歩6分 (約480m) 白山市立鶴来中学校 徒歩10分 (約760m) ファミリーマート 白山月橋店 徒歩15分 (約1200m) 学校法人鶴来学園鶴来第一幼稚園 徒歩20分 (約1560m) ゲンキー鶴来月橋店 徒歩22分 (約1690m) 白山市立朝日小学校 徒歩22分 (約1690m) コメヤ薬局月橋店 徒歩28分 (約2180m) マルエー コア・井口店 徒歩47分 (約3690m) ウエルシア白山鶴来店 徒歩52分 (約4140m) | ||
| 備考 | 空き家バンク登録物件 固定資産税額 土地:23,371円/建物:33,679円(建物二筆) 2024年10月に減築・増築(年月日不詳)を含むリノベーション | ||
| 物件番号 | 4469234 | 取引態様 | 媒介 | 
取扱店舗情報
ハウスドゥ ラスパ白山 株式会社アンビション 店舗詳細ページへ
| 電話番号 | 076-225-6461 | 
|---|---|
| 所在地 | 〒924-0865 石川県白山市倉光5丁目14 ラスパ白山 A-10 | 
| 営業時間 | 10:00~19:00 | 
| 定休日 | 年中無休 | 
| 宅建免許番号 | 石川県知事(1)第4517号 | 
| アクセス | 店舗への地図はこちら | 

来店ご予約
石川県白山市で価格が似ている物件はこちら
- 石川県
 マイページ物件数
- 495件
石川県中古一戸建て新着物件
- お近くの店舗を探す
- 
            
            
            
 
     
                         
                         
                         
                    







 
                














 
                 
             
                    

 
                                            
















 
						 
						
お問合せお待ちしております!