糸魚川市横町3丁目の中古戸建
掲載情報更新日:2025年12月23日 次回更新予定日:2026年01月06日
- 100万円
-
- 借入ご希望金額
万円 - 借入期間
年 - 借入金利
% - 月々のお支払い金額
円
- 借入ご希望金額
※ 月々のお支払例は目安の試算となりますので、実際の金額とは異なる場合がございます。詳しくは店舗までお問合わせください。
- 糸魚川市横町3丁目
-
日本海ひすいライン『糸魚川』 徒歩9分 (約700m)
糸魚川市横町3丁目一戸建て | 物件情報
糸魚川小学校まで徒歩10分圏内♪全居室6帖以上♪スーパー・コンビニ徒歩圏内♪
▼周辺施設
■糸魚川市中央保育園 約350m
■マル二ハピー横町店 約400m
■セブンイレブン糸魚川中央店 約850m
■イチコスーパー糸魚川店 約900m
■一栄会よしだ病院 約1000m
■糸魚川市役所 約1100m
※S.62年(月不詳)増築
物件の設備
- 上水道
- 下水道
- 都市ガス
- 浴室に窓
- 和室
- 全居室6畳以上
- 全居室収納
- 庭
物件の特徴
- スーパーが近い
- 市街地が近い
- 陽当り良好
- 2階建
- 即入居可
- 再建築不可
物件詳細情報
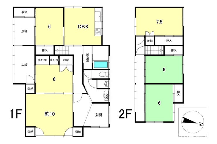
| 価格 | 100万円 | 間取り | 6DK |
|---|---|---|---|
| 物件種別 | 中古一戸建て | ||
| 所在地 | 新潟県糸魚川市横町3丁目3番34号 | ||
| アクセス |
|
||
| 建物面積 | 145.73㎡ | 駐車場 | なし |
| 築年月 | 1966年(昭和41年)11月築 | ||
| 建物構造 | 木造 2階建 | 工法 | |
| 主要採光 | バルコニー | ||
| 保証・評価 | |||
| リフォーム | |||
| 土地面積 | 188.02㎡(56.87坪) | 接道 | 北側幅 約1.7m 間口 約17.00m |
| 私道 | セットバック | ||
| 地目 | 宅地 | 地勢 | |
| 権利 | 所有権 |
||
| 都市計画 | 非線引区域 |
用途地域 | 1種住居 |
| 建ぺい/容積率 | 60% / 200% | 土地国土法 | |
| 許可番号 | 建築基準法 | 再建築不可 | |
| 法令制限 | 景観法 | ||
| 小学区 | 糸魚川小学校 徒歩8分 (約600m) | 中学区 | 糸魚川中学校 徒歩17分 (約1300m) |
| 現況 | 空 | 引渡 | 即 |
| その他費用 | その他負担金:24703円 R7固定資産税 |
||
| 備考 | |||
| 物件番号 | 4472278 | 取引態様 | 媒介 |
取扱店舗情報
ハウスドゥ 上越市役所前 カネヨ物産株式会社 店舗詳細ページへ
| 電話番号 | 025-522-5553 |
|---|---|
| 所在地 | 〒943-0805 新潟県上越市木田2丁目4-9 |
| 営業時間 | 9:00~18:00 |
| 定休日 | 水曜日 |
| 宅建免許番号 | 新潟県知事(1)第5656号 |
| アクセス | 店舗への地図はこちら |

来店ご予約
新潟県糸魚川市で価格が似ている物件はこちら
- 新潟県
マイページ物件数 - 1,729件
最近見た物件
新潟県中古一戸建て新着物件
-
-

-
- 中古一戸建て
- 1,199万円
-
新潟市西区真砂2丁目
-
JR越後線小針駅
-
-
-

-
- 中古一戸建て
- 1,950万円
-
新潟市西区五十嵐中島5丁目
-
JR越後線内野西が丘駅
-
-
-

-
- 中古一戸建て
- 1,998万円
-
新潟市西区鳥原
-
JR越後線小針駅
-
-
-

-
- 中古一戸建て
- 70万円
-
糸魚川市大字大和川
-
日本海ひすいライン梶屋敷駅
-
-
-

-
- 中古一戸建て
- 700万円
-
上越市浦川原区山印内
-
北越急行ほくほく線うらがわら駅
-
-
-

-
- 中古一戸建て
- 850万円
-
上越市中門前2丁目
-
妙高はねうまライン春日山駅
-
-
-

-
- 中古一戸建て
- 899万円
-
新潟市西区寺尾西4丁目
-
JR越後線寺尾駅
-
- お近くの店舗を探す
-
おすすめ物件
-
-

-
- 中古一戸建て
- 500万円
-
新潟市江南区所島2丁目
-
JR信越本線亀田
-
-
-

-
- 中古一戸建て
- 2,480万円
-
新潟市東区物見山4丁目
-
JR白新線大形
-
-
-

-
- 中古一戸建て
- 2,000万円
-
上越市幸町
-
妙高はねうまライン高田
-
-
-

-
- 中古一戸建て
- 300万円
-
上越市五智6丁目
-
妙高はねうまライン直江津
-
-
-

-
- 中古一戸建て
- 500万円
-
上越市中門前2丁目
-
妙高はねうまライン春日山
-
-
-

-
- 中古一戸建て
- 500万円
-
上越市大字夷浜
-
JR信越本線犀潟
-
-
-

-
- 中古一戸建て
- 680万円
-
新潟市江南区稲葉3丁目
-
JR信越本線亀田
-
-
-

-
- 中古一戸建て
- 200万円
-
上越市大字黒井
-
JR信越本線黒井
-
-
-

-
- 中古一戸建て
- 1,950万円
-
上越市大字福田
-
JR信越本線黒井
-
-
-

-
- 中古一戸建て
- 1,200万円
-
新潟市江南区稲葉2丁目
-
JR信越本線亀田
-

























