東大阪市日下町5丁目中古戸建
掲載情報更新日:2025年12月31日 次回更新予定日:2026年01月14日
- 1,580万円
-
- 借入ご希望金額
万円 - 借入期間
年 - 借入金利
% - 月々のお支払い金額
円
- 借入ご希望金額
※ 月々のお支払例は目安の試算となりますので、実際の金額とは異なる場合がございます。詳しくは店舗までお問合わせください。
- 東大阪市日下町5丁目
-
近鉄けいはんな線『新石切』 徒歩26分 (約2080m)
近鉄難波・奈良線『石切』 徒歩29分 (約2320m)
東大阪市日下町5丁目中古戸建一戸建て | 物件情報
令和7年3月リフォーム済み物件♪
○お買物施設、教育施設が徒歩圏内と暮らしやすい住環境です。
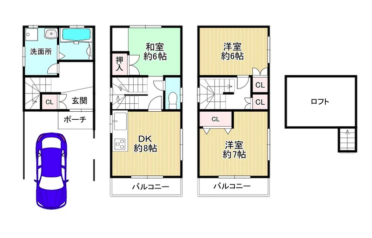
○各居室6帖以上!ロフトなど収納豊富な3DKです♪
○令和7年3月リフォーム済です☆
洗面化粧台新調、キッチン新調、浴室新調、トイレ新調、
CF張替、フローリング張替(DK)、一部クロス張替、畳表替え
<周辺環境>
・ファミリーマート東大阪日下町店 徒歩5分(約341m)
・万代石切店 徒歩7分(約522m)
・関西スーパー日下店 徒歩10分(約744m)
物件の設備
- 電気
- 公営水道
- 都市ガス
- コンロ三口
- システムキッチン
- バス
- 追焚機能
- 浴室に窓
- トイレ
- 温水洗浄便座
- 室内洗濯機置場
- 洗面所独立
- モニタ付インターホン
- 和室
- 全居室6畳以上
- フローリング
- 一部フローリング
- フローリング張替
- 全居室収納
- 屋根裏収納
- バルコニー
- 2面バルコニー
物件の特徴
- 内装リフォーム済
- 外装リフォーム済
- 内外装リフォーム済
- 内外装リフォーム後渡
- 小学校徒歩10分以内
- 緑豊かな住宅地
- 閑静な住宅街
- 通風良好
- 陽当り良好
- 3階建以上
- 平坦地
物件詳細情報
| 価格 | 1,580万円 | 間取り | 3DK |
|---|---|---|---|
| 物件種別 | 中古一戸建て | ||
| 所在地 | 大阪府東大阪市日下町5丁目4-10 | ||
| アクセス |
|
||
| 建物面積 | 91.73㎡ | 駐車場 | あり 普通:1台 |
| 築年月 | 1996年(平成8年)02月築 | ||
| 建物構造 | SRC 3階建 | 工法 | |
| 主要採光 | バルコニー | ||
| 保証・評価 | |||
| リフォーム | 【水回り】2025年03月 キッチン・浴室・トイレ・洗面・給湯器・給排水管 【外装】2025年03月 外壁 ・屋根 【内装】2025年03月 全面 ・壁、天井 ・床 ・全室クロス ・建具 ・サッシ |
||
| 土地面積 | 43.25㎡(13.08坪) | 接道 | 西側(公道)幅 約4.2m 間口 約4.50m |
| 私道 | セットバック | ||
| 地目 | 宅地 | 地勢 | |
| 権利 | 所有権 |
||
| 都市計画 | 市街化区域 |
用途地域 | 1種住居 |
| 建ぺい/容積率 | 60% / 200% | 土地国土法 | |
| 許可番号 | 建築基準法 | ||
| 法令制限 | 準防火地域 | ||
| 小学区 | 孔舎衙小学校 徒歩5分 (約394m) | 中学区 | 孔舎衙中学校 徒歩16分 (約1259m) |
| 現況 | 空 | 引渡 | 相談 |
| その他費用 | |||
| 周辺環境 | 東大阪市立孔舎衙小学校 徒歩4分 (約310m) 東大阪市立孔舎衙中学校 徒歩15分 (約1130m) セブンイレブン 東大阪善根寺町3丁目店 徒歩8分 (約590m) 万代 善根寺店 徒歩14分 (約1050m) ココカラファイン 日下店 徒歩7分 (約550m) 東大阪日下郵便局 徒歩11分 (約840m) JA大阪中河内 孔舎衙支店 徒歩8分 (約590m) 東大阪市立孔舎衙こども園 徒歩8分 (約590m) 中石切公園 徒歩15分 (約1140m) |
||
| 備考 | |||
| 物件番号 | 4472879 | 取引態様 | 媒介 |
取扱店舗情報
| 電話番号 | 072-973-6177 |
|---|---|
| 所在地 | 〒581-0801 大阪府八尾市山城町2丁目1-28 山城ビル1F |
| 営業時間 | 9:00~18:00 |
| 定休日 | 水曜日、年末年始 |
| 宅建免許番号 | 大阪府知事(1)第64057号 |
| アクセス | 店舗への地図はこちら |

来店ご予約
大阪府東大阪市で価格が似ている物件はこちら
- 大阪府
マイページ物件数 - 16,174件
大阪府中古一戸建て新着物件
-
-

-
- 中古一戸建て
- 1,550万円
-
東大阪市中小阪1丁目
-
近鉄難波・奈良線河内小阪駅
-
-
-

-
- 中古一戸建て
- 1億5,000万円
-
豊中市服部南町2丁目
-
阪急電鉄宝塚線服部天神駅
-
-
-

-
- 中古一戸建て
- 5,880万円
-
池田市石橋2丁目
-
阪急電鉄宝塚線石橋阪大前駅
-
-
-

-
- 中古一戸建て
- 1,450万円
-
豊中市螢池西町1丁目
-
阪急電鉄宝塚線蛍池駅
-
-
-

-
- 中古一戸建て
- 1,980万円
-
阪南市緑ヶ丘3丁目
-
JR阪和線和泉鳥取駅
-
-
-

-
- 中古一戸建て
- 780万円
-
泉南市新家
-
JR阪和線新家駅
-
-
-

-
- 中古一戸建て
- 555万円
-
阪南市自然田
-
JR阪和線和泉鳥取駅
-
- お近くの店舗を探す
-
おすすめ物件
-
-

-
- 中古一戸建て
- 1,350万円
-
泉南市樽井2丁目
-
南海電鉄本線樽井
-
-
-

-
- 中古一戸建て
- 3,480万円
-
高槻市津之江町1丁目
-
JR東海道線高槻
-
-
-

-
- 中古一戸建て
- 1,800万円
-
大阪市淀川区三国本町3丁目
-
阪急電鉄宝塚線三国
-
-
-

-
- 中古一戸建て
- 790万円
-
泉南郡熊取町山の手台3丁目
-
JR阪和線熊取
-
-
-

-
- 中古一戸建て
- 4,580万円
-
大阪市住之江区住之江1丁目
-
南海電鉄本線住ノ江
-
-
-

-
- 中古一戸建て
- 2,080万円
-
大阪市平野区加美西2丁目
-
JR関西本線加美
-
-
-

-
- 中古一戸建て
- 580万円
-
河内長野市大矢船中町
-
南海電鉄高野線三日市町
-
-
-

-
- 中古一戸建て
- 4,780万円
-
高槻市奥天神町1丁目
-
JR東海道線高槻
-
-
-

-
- 中古一戸建て
- 1,488万円
-
茨木市橋の内3丁目
-
阪急電鉄京都線総持寺
-
-
-

-
- 中古一戸建て
- 4,680万円
-
高槻市月見町
-
JR東海道線高槻
-





















