松山市居相6丁目の中古戸建
掲載情報更新日:2026年02月05日 次回更新予定日:2026年02月19日
- 2,980万円
-
- 借入ご希望金額
万円 - 借入期間
年 - 借入金利
% - 月々のお支払い金額
円
- 借入ご希望金額
※ 月々のお支払例は目安の試算となりますので、実際の金額とは異なる場合がございます。詳しくは店舗までお問合わせください。
- 松山市居相6丁目
-
JR予讃線『市坪』 徒歩29分 (約2270m)
『椿団地前』 徒歩6分 (約480m)
松山市居相6丁目一戸建て | 物件情報
物件の設備
- 電気
- オール電化
- 上水道
- 下水道
- 側溝
- IHクッキングヒータ
- カウンターキッチン
- システムキッチン
- バス1坪以上
- 追焚機能
- 浴室乾燥機
- トイレ2箇所
- 温水洗浄便座
- 照明器具
- ディンプルキー
- モニタ付インターホン
- 火災警報器/報知機
- 複層ガラス
- ウォークインクローゼット
- 床下収納
- シューズインクローク
物件の特徴
- セットバック済
- 南側道路面す
- 2階建
- バリアフリー
物件詳細情報
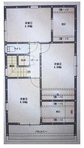
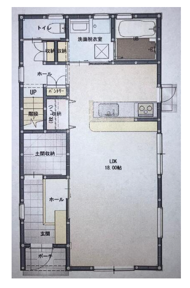
| 価格 | 2,980万円 | 間取り | 3LDK |
|---|---|---|---|
| 物件種別 | 中古一戸建て | ||
| 所在地 | 愛媛県松山市居相6丁目 | ||
| アクセス |
|
||
| 建物面積 | 駐車場 | なし | |
| 築年月 | 2020年(令和2年)09月築 | ||
| 建物構造 | 木造 2階建 | 工法 | |
| 主要採光 | バルコニー | ||
| 保証・評価 | |||
| リフォーム | |||
| 土地面積 | 公132.69㎡(40.13坪) | 接道 | 南側(公道)幅 約4.0m 間口 約7.90m |
| 私道 | セットバック | 済 | |
| 地目 | 宅地 | 地勢 | 平坦 |
| 権利 | 所有権 |
||
| 都市計画 | 市街化区域 |
用途地域 | 1種低層 |
| 建ぺい/容積率 | 50% / 80% | 土地国土法 | |
| 許可番号 | 建築基準法 | ||
| 法令制限 | |||
| 小学区 | 中学区 | ||
| 現況 | 居住中 | 引渡 | 相談 |
| その他費用 | |||
| 備考 | |||
| 物件番号 | 4475433 | 取引態様 | 媒介 |
取扱店舗情報
ハウスドゥ 松山富久 リビング・ハーモニー株式会社 店舗詳細ページへ
| 電話番号 | 089-971-0077 |
|---|---|
| 所在地 | 〒791-8034 愛媛県松山市富久町430-2 |
| 営業時間 | 10:00~18:00 |
| 定休日 | 火曜日、水曜日、GW、お盆、年末年始 |
| 宅建免許番号 | 愛媛県知事(1)第5862号 |
| アクセス | 店舗への地図はこちら |

来店ご予約
愛媛県松山市で価格が似ている物件はこちら
- 愛媛県
マイページ物件数 - 3,773件
愛媛県中古一戸建て新着物件
- お近くの店舗を探す
-
おすすめ物件
-
-

-
- 中古一戸建て
- 2,350万円
-
松山市ひばりケ丘
-
JR予讃線三津浜
-
-
-

-
- 中古一戸建て
- 2,990万円
-
東温市南方
-
伊予鉄道横河原線横河原
-
-
-

-
- 中古一戸建て
- 2,300万円
-
松山市南白水1丁目
-
道後平入口 バス停
-
-
-

-
- 中古一戸建て
- 700万円
-
伊予市下吾川
-
伊予鉄道郡中線新川
-
-
-

-
- 中古一戸建て
- 1,800万円
-
松山市古三津1丁目
-
伊予鉄道高浜線山西
-
-
-

-
- 中古一戸建て
- 2,780万円
-
松山市古川南3丁目
-
JR予讃線市坪
-
-
-

-
- 中古一戸建て
- 2,950万円
-
松山市吉藤2丁目
-
伊予鉄道環状線木屋町
-
-
-

-
- 中古一戸建て
- 7,970万円
-
松山市居相1丁目
-
伊予鉄バス椿神社前バス停まで徒歩
-
-
-

-
- 中古一戸建て
- 2,990万円
-
松山市南斎院町
-
西側 バス停
-
-
-

-
- 中古一戸建て
- 3,380万円
-
伊予郡松前町大字浜
-
伊予鉄道郡中線松前
-















