中古戸建 松原市高見の里3丁目
NEW 11.04掲載情報更新日:2025年11月17日 次回更新予定日:2025年12月01日
- 3,280万円
-
- 借入ご希望金額
万円 - 借入期間
年 - 借入金利
% - 月々のお支払い金額
円
- 借入ご希望金額
※ 月々のお支払例は目安の試算となりますので、実際の金額とは異なる場合がございます。詳しくは店舗までお問合わせください。
- 松原市高見の里3丁目
-
近鉄南大阪線『高見ノ里』 徒歩5分 (約400m)
近鉄南大阪線『布忍』 徒歩13分 (約1040m)
近鉄南大阪線『河内松原』 徒歩19分 (約1520m)
中古戸建 松原市高見の里3丁目一戸建て | 物件情報
★2020年築!駐車2台可能★
★2020年築!駐車2台可能★
●オススメポイント●
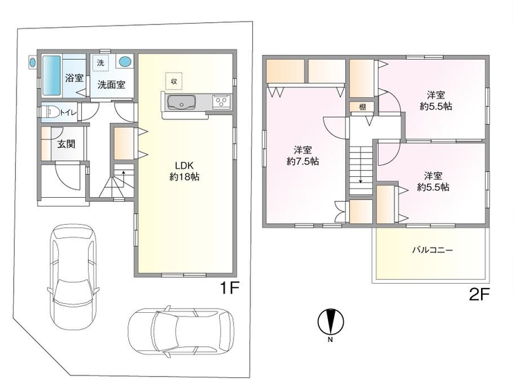
・LDK広々18帖
・駐車2台可能
・築浅物件です♪
●教育機関●
・松葉原西小学校 徒歩14分
・松原中学校 徒歩12分
物件の設備
- 電気
- 公営水道
- 公共下水
- 都市ガス
- 給湯
- コンロ三口
- グリル
- カウンターキッチン
- システムキッチン
- バス
- ユニットバス
- 追焚機能
- 浴室に窓
- トイレ
- 温水洗浄便座
- 室内洗濯機置場
- 洗面所独立
- モニタ付インターホン
- LDK18畳以上
- フローリング
- 網戸
- クローゼット
物件の特徴
- 整備された歩道
- スーパーが近い
- 閑静な住宅街
- 通風良好
- 陽当り良好
- 2階建
- 平坦地
物件詳細情報
| 価格 | 3,280万円 | 間取り | 3LDK |
|---|---|---|---|
| 物件種別 | 中古一戸建て | ||
| 所在地 | 大阪府松原市高見の里3丁目 | ||
| アクセス |
|
||
| 建物面積 | 公86.94㎡ | 駐車場 | あり 普通:2台 |
| 築年月 | 2020年(令和2年)10月築 | ||
| 建物構造 | 木造 2階建 | 工法 | |
| 主要採光 | バルコニー | ||
| 保証・評価 | |||
| リフォーム | |||
| 土地面積 | 公103.12㎡(31.19坪) | 接道 | 北側幅 約5.0m 間口 約6.40m |
| 私道 | セットバック | ||
| 地目 | 宅地 | 地勢 | |
| 権利 | 所有権 |
||
| 都市計画 | 市街化区域 |
用途地域 | 2種住居 |
| 建ぺい/容積率 | 60% / 200% | 土地国土法 | |
| 許可番号 | 建築基準法 | ||
| 法令制限 | |||
| 小学区 | 松原西小学校 徒歩14分 (約1100m) | 中学区 | 松原中学校 徒歩12分 (約948m) |
| 現況 | 空 | 引渡 | 相談 |
| その他費用 | |||
| 周辺環境 | 明の守しんどう学園 徒歩10分 (約770m) 松原市立松原西小学校 徒歩17分 (約1290m) 松原市立松原中学校 徒歩12分 (約940m) 阪南大学高等学校 徒歩5分 (約370m) マルシゲ 高見の里店 徒歩2分 (約120m) 松原高見郵便局 徒歩4分 (約270m) 高見ノ里駅 徒歩6分 (約410m) カナートモール松原 徒歩12分 (約930m) |
||
| 備考 | ・明の守しんどう学園まで徒歩10分(約770m) ・松原市立松原西小学校まで徒歩17分(約1290m) ・松原市立松原中学校まで徒歩12分(約940m) ・阪南大学高等学校まで徒歩5分(約370m) ・マルシゲ 高見の里店まで徒歩2分(約120m) ・松原高見郵便局まで徒歩4分(約270m) ・高見ノ里駅まで徒歩6分(約410m) ・カナートモール松原まで徒歩12分(約930m) |
||
| 物件番号 | 4476486 | 取引態様 | 媒介 |
取扱店舗情報
ハウスドゥ 松原阿保 Tacoo home株式会社 店舗詳細ページへ
| 電話番号 | 072-247-5294 |
|---|---|
| 所在地 | 〒580-0043 大阪府松原市阿保1丁目4-11コーポイン松原102 |
| 営業時間 | 平日:10:00~20:00/土日祝:9:00~20:00 |
| 定休日 | 水曜日 |
| 宅建免許番号 | 大阪府知事(1)第65754号 |
| アクセス | 店舗への地図はこちら |

来店ご予約
大阪府松原市で価格が似ている物件はこちら
- 大阪府
マイページ物件数 - 15,666件
最近見た物件
-
-

-
- 中古一戸建て
- 150万円
-
上川郡愛別町字本町
-
JR石北本線愛別
-
-
-

-
- 中古一戸建て
- 1,480万円
-
旭川市神楽岡十一条3丁目
-
JR函館本線旭川
-
-
-

-
- 中古一戸建て
- 3,199万円
-
千葉市若葉区みつわ台2丁目
-
千葉都市モノレールみつわ台
-
大阪府中古一戸建て新着物件
-
-

-
- 中古一戸建て
- 1,200万円
-
高槻市東城山町
-
JR東海道線高槻駅
-
-
-

-
- 中古一戸建て
- 4,750万円
-
茨木市豊川2丁目
-
大阪モノレール彩都豊川駅
-
-
-

-
- 中古一戸建て
- 5,950万円
-
茨木市太田3丁目
-
阪急電鉄京都線総持寺駅
-
-
-

-
- 中古一戸建て
- 4,399万円
-
大阪市淀川区野中南1丁目
-
阪急電鉄神戸線十三駅
-
-
-

-
- 中古一戸建て
- 1億8,000万円
-
大阪市阿倍野区北畠2丁目
-
阪堺電気軌道上町線北畠駅
-
-
-

-
- 中古一戸建て
- 2,990万円
-
堺市北区東浅香山町1丁
-
JR阪和線浅香駅
-
-
-

-
- 中古一戸建て
- 1,400万円
-
豊中市豊南町南6丁目
-
阪急電鉄宝塚線三国駅
-
- お近くの店舗を探す
-
おすすめ物件
-
-

-
- 中古一戸建て
- 3,280万円
-
大阪市西成区鶴見橋2丁目
-
JR大阪環状線今宮
-
-
-

-
- 中古一戸建て
- 2,980万円
-
八尾市八尾木3丁目
-
JR関西本線志紀
-
-
-

-
- 中古一戸建て
- 2,280万円
-
泉大津市昭和町
-
南海電鉄本線泉大津
-
-
-

-
- 中古一戸建て
- 2,798万円
-
高槻市東天川3丁目
-
阪急電鉄京都線高槻市
-
-
-

-
- 中古一戸建て
- 4,770万円
-
茨木市総持寺1丁目
-
阪急電鉄京都線総持寺
-
-
-

-
- 中古一戸建て
- 480万円
-
貝塚市橋本
-
JR阪和線和泉橋本
-
-
-

-
- 中古一戸建て
- 690万円
-
泉佐野市日根野
-
JR阪和線日根野
-
-
-

-
- 中古一戸建て
- 4,750万円
-
大阪市住之江区御崎7丁目
-
南海電鉄本線住ノ江
-
-
-

-
- 中古一戸建て
- 2,180万円
-
東大阪市末広町
-
近鉄難波・奈良線瓢箪山
-
-
-

-
- 中古一戸建て
- 680万円
-
泉南郡熊取町小垣内1丁目
-
JR阪和線熊取
-





担当エージェント:福田 亜翔
【複数件併せてのご案内可能です】気になるあのマンション、エリア内・沿線近くの物件などお客様のご要望に沿った物件を一度にご紹介いたします♪