防府市佐波1丁目の中古戸建
掲載情報更新日:2026年03月16日 次回更新予定日:2026年03月30日
- 2,300万円
-
- 借入ご希望金額
万円 - 借入期間
年 - 借入金利
% - 月々のお支払い金額
円
- 借入ご希望金額
※ 月々のお支払例は目安の試算となりますので、実際の金額とは異なる場合がございます。詳しくは店舗までお問合わせください。
- 防府市佐波1丁目
-
JR山陽本線『防府』 徒歩15分 (約1170m)
防府市佐波1丁目一戸建て | 物件情報
【4LDK+S/駐車4台可能】 こだわりのつまった夢の国のような家♪ハウスクリーニング完了!
太陽光発電搭載のオール電化住宅。光熱費を抑えながら、安心・快適な暮らしを叶えます。IHクッキングヒーターと食洗機付きの対面キッチンで、家族と会話を楽しみながら家事ができるのも魅力。1坪以上のゆったりバスルームには浴室乾燥機や追焚機能を備え、毎日の疲れを癒します。収納も全居室+納戸+さしかけ倉庫と充実。トイレ2ヶ所や24時間換気システムなど、家族みんなが快適に暮らせる工夫が満載の住まいです。
物件の設備
- 電気
- オール電化
- 上水道
- 公営水道
- 下水道
- 公共下水
- 側溝
- 都市ガス
- 食器洗浄乾燥機
- IHクッキングヒータ
- コンロ三口
- カウンターキッチン
- システムキッチン
- バス
- ユニットバス
- バス1坪以上
- 追焚機能
- 浴室乾燥機
- 浴室に窓
- トイレ
- トイレ2箇所
- 温水洗浄便座
- 室内洗濯機置場
- 洗髪洗面化粧台
- 洗面所独立
- 照明器具
- ダウンライト
- 太陽光発電システム
- モニタ付インターホン
- 和室
- 複層ガラス
- フローリング
- シャッター雨戸
- 24時間換気システム
- クローゼット
- ウォークインクローゼット
- 納戸
- 全居室収納
- バルコニー
- 庭
物件の特徴
- 前道6m以上
- 閑静な住宅街
- 通風良好
- 陽当り良好
- 2階建
- 整形地
物件詳細情報
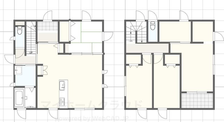
| 価格 | 2,300万円 | 間取り | 4LDK+S |
|---|---|---|---|
| 物件種別 | 中古一戸建て | ||
| 所在地 | 山口県防府市佐波1丁目 | ||
| アクセス |
|
||
| 建物面積 | 115.5㎡ | 駐車場 | あり 普通:4台 |
| 築年月 | 2012年(平成24年)12月築 | ||
| 建物構造 | 木造 2階建 | 工法 | |
| 主要採光 | バルコニー | ||
| 保証・評価 | |||
| リフォーム | |||
| 土地面積 | 公231.41㎡(70坪) | 接道 | 西側(公道)幅 約6.0m |
| 私道 | セットバック | 無 | |
| 地目 | 宅地 | 地勢 | 平坦 |
| 権利 | 所有権 |
||
| 都市計画 | 市街化区域 |
用途地域 | 1種住居 |
| 建ぺい/容積率 | 60% / 200% | 土地国土法 | |
| 許可番号 | 建築基準法 | ||
| 法令制限 | |||
| 小学区 | 佐波小学校 徒歩10分 (約772m) | 中学区 | 佐波中学校 徒歩24分 (約1920m) |
| 現況 | 空 | 引渡 | 相談 |
| その他費用 | |||
| 周辺環境 | スーパーセンタートライアル防府店 徒歩12分 (約960m) クスリ岩崎チェーン防府駅南店 徒歩8分 (約630m) |
||
| 備考 | |||
| 物件番号 | 4477773 | 取引態様 | 媒介 |
取扱店舗情報
| 電話番号 | 0835-28-1120 |
|---|---|
| 所在地 | 〒747-0809 山口県防府市寿町4-17 |
| 営業時間 | 9:30~18:00 |
| 定休日 | 毎週水曜日、第1以外の第木曜日 |
| 宅建免許番号 | 国土交通大臣(2)第9501号 |
| アクセス | 店舗への地図はこちら |

来店ご予約
山口県防府市で価格が似ている物件はこちら
- 山口県
マイページ物件数 - 3,267件
最近見た物件
-
-

-
- 新築一戸建て
- 4,280万円
-
名古屋市緑区兵庫1丁目
-
名古屋市桜通線徳重
-
山口県中古一戸建て新着物件
- お近くの店舗を探す
-
おすすめ物件
-
-

-
- 中古一戸建て
- 2,598万円
-
下関市綾羅木本町4丁目
-
JR山陰本線綾羅木
-
-
-

-
- 中古一戸建て
- 4,200万円
-
宇部市大字中野開作
-
JR宇部線宇部
-
-
-

-
- 中古一戸建て
- 1,950万円
-
防府市仁井令町
-
JR山陽本線防府
-
-
-

-
- 中古一戸建て
- 4,550万円
-
宇部市中村1丁目
-
JR宇部線琴芝
-
-
-

-
- 中古一戸建て
- 3,650万円
-
周南市大字徳山
-
JR山陽本線徳山
-
-
-

-
- 中古一戸建て
- 480万円
-
岩国市玖珂町
-
JR岩徳線玖珂
-
-
-

-
- 中古一戸建て
- 1,080万円
-
防府市大字江泊
-
JR山陽本線防府
-
-
-

-
- 中古一戸建て
- 1,190万円
-
宇部市北小羽山町3丁目
-
JR宇部線宇部新川
-
-
-

-
- 中古一戸建て
- 1,498万円
-
防府市新橋町
-
JR山陽本線防府
-
-
-

-
- 中古一戸建て
- 1,598万円
-
周南市大字夜市
-
JR山陽本線福川
-






























担当エージェント:岩本 恭生
資金計画や住宅ローンのご相談も丁寧にサポートいたします。ご希望に合わせたリフォームのご提案も可能です。安心して長くお住まいいただける一邸を、ぜひ現地でご覧ください。