中古戸建 松原市松ケ丘4丁目
NEW 11.06掲載情報更新日:2025年11月14日 次回更新予定日:2025年11月28日
- 2,780万円
-
- 借入ご希望金額
万円 - 借入期間
年 - 借入金利
% - 月々のお支払い金額
円
- 借入ご希望金額
※ 月々のお支払例は目安の試算となりますので、実際の金額とは異なる場合がございます。詳しくは店舗までお問合わせください。
- 松原市松ケ丘4丁目
-
近鉄南大阪線『河内松原』 徒歩14分 (約1120m)
近鉄南大阪線『高見ノ里』 徒歩27分 (約2160m)
近鉄南大阪線『恵我ノ荘』 徒歩21分 (約1680m)
中古戸建 松原市松ケ丘4丁目一戸建て | 物件情報
★室内リフォーム済み、4LDKのお家★
★室内リフォーム済み、4LDKのお家★
●オススメポイント●
・1.2階にそれぞれトイレ完備
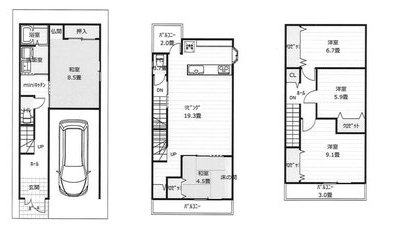
・広々とした19.3帖のLDKに隣接して4.5畳の和室あり♪
・全居室収納有り
●教育機関●
・松原北小学校 徒歩19分
・松原第四中学校 徒歩12分
物件の設備
- 電気
- 公営水道
- 公共下水
- 都市ガス
- 給湯
- 食器洗浄乾燥機
- コンロ三口
- グリル
- システムキッチン
- バス
- ユニットバス
- 追焚機能
- 浴室に窓
- トイレ
- トイレ2箇所
- 温水洗浄便座
- 室内洗濯機置場
- 洗面所独立
- モニタ付インターホン
- LDK18畳以上
- 和室
- フローリング
- フローリング張替
- 網戸
- クローゼット
物件の特徴
- 内装リフォーム済
- 外装リフォーム済
- 内外装リフォーム済
- 前道6m以上
- 南側道路面す
- 整備された歩道
- スーパーが近い
- 閑静な住宅街
- 通風良好
- 陽当り良好
- 3階建以上
- 平坦地
物件詳細情報
| 価格 | 2,780万円 | 間取り | 5LDK |
|---|---|---|---|
| 物件種別 | 中古一戸建て | ||
| 所在地 | 大阪府松原市松ケ丘4丁目 | ||
| アクセス |
|
||
| 建物面積 | 公161.94㎡ | 駐車場 | あり 普通:1台 |
| 築年月 | 2001年(平成13年)03月築 | ||
| 建物構造 | 鉄骨 3階建 | 工法 | |
| 主要採光 | バルコニー | ||
| 保証・評価 | |||
| リフォーム | 【水回り】2025年08月 キッチン・浴室・トイレ 【外装】2025年08月 外壁 【内装】2025年08月 床 ・全室クロス |
||
| 土地面積 | 公82.2㎡(24.86坪) | 接道 | 南側(公道)幅 約6.3m 間口 約7.00m |
| 私道 | セットバック | ||
| 地目 | 宅地 | 地勢 | 平坦 |
| 権利 | 所有権 |
||
| 都市計画 | 市街化区域 |
用途地域 | 2種中高 |
| 建ぺい/容積率 | 60% / 200% | 土地国土法 | |
| 許可番号 | 建築基準法 | ||
| 法令制限 | 準防火地域 | ||
| 小学区 | 松原北小学校 徒歩19分 (約1500m) | 中学区 | 松原第四中学校 徒歩12分 (約900m) |
| 現況 | 空 | 引渡 | 相談 |
| その他費用 | |||
| 周辺環境 | ピヨピヨ保育園 徒歩7分 (約520m) 松原市立松原北小学校 徒歩20分 (約1550m) 松原市立松原第四中学校 徒歩14分 (約1100m) キリン堂 松原松ケ丘店 徒歩6分 (約470m) 万代 松原上田店 徒歩9分 (約670m) イオンタウン松原 徒歩12分 (約960m) 河内松原駅 徒歩12分 (約960m) |
||
| 備考 | ・ピヨピヨ保育園まで徒歩7分(約520m) ・松原市立松原北小学校まで徒歩20分(約1550m) ・松原市立松原第四中学校まで徒歩14分(約1100m) ・キリン堂 松原松ケ丘店まで徒歩6分(約470m) ・万代 松原上田店まで徒歩9分(約670m) ・イオンタウン松原まで徒歩12分(約960m) ・河内松原駅まで徒歩12分(約960m) |
||
| 物件番号 | 4478017 | 取引態様 | 媒介 |
取扱店舗情報
ハウスドゥ 松原阿保 Tacoo home株式会社 店舗詳細ページへ
| 電話番号 | 072-247-5294 |
|---|---|
| 所在地 | 〒580-0043 大阪府松原市阿保1丁目4-11コーポイン松原102 |
| 営業時間 | 平日:10:00~20:00/土日祝:9:00~20:00 |
| 定休日 | 水曜日 |
| 宅建免許番号 | 大阪府知事(1)第65754号 |
| アクセス | 店舗への地図はこちら |

来店ご予約
大阪府松原市で価格が似ている物件はこちら
- 大阪府
マイページ物件数 - 15,638件
大阪府中古一戸建て新着物件
- お近くの店舗を探す
-
おすすめ物件
-
-

-
- 中古一戸建て
- 2,180万円
-
東大阪市末広町
-
近鉄難波・奈良線瓢箪山
-
-
-

-
- 中古一戸建て
- 2,380万円
-
大阪市住之江区平林南2丁目
-
南港ポートタウン線(ニュートラム)平林
-
-
-

-
- 中古一戸建て
- 2,580万円
-
大阪市住吉区長居2丁目
-
JR阪和線長居
-
-
-

-
- 中古一戸建て
- 2,300万円
-
大阪市阿倍野区阿倍野筋3丁目
-
大阪市谷町線阿倍野
-
-
-

-
- 中古一戸建て
- 1,650万円
-
和泉市黒鳥町2丁目
-
JR阪和線和泉府中
-
-
-

-
- 中古一戸建て
- 398万円
-
泉佐野市長滝
-
JR阪和線長滝
-
-
-

-
- 中古一戸建て
- 2,980万円
-
茨木市北春日丘1丁目
-
JR東海道線茨木
-
-
-

-
- 中古一戸建て
- 2,490万円
-
八尾市南本町7丁目
-
JR関西本線八尾
-
-
-

-
- 中古一戸建て
- 4,580万円
-
大阪市住之江区住之江1丁目
-
南海電鉄本線住ノ江
-
-
-

-
- 中古一戸建て
- 4,770万円
-
茨木市総持寺1丁目
-
阪急電鉄京都線総持寺
-

















担当エージェント:福田 亜翔
【複数件併せてのご案内可能です】気になるあのマンション、エリア内・沿線近くの物件などお客様のご要望に沿った物件を一度にご紹介いたします♪