宮崎市大塚台東2丁目の中古戸建
掲載情報更新日:2026年02月10日 次回更新予定日:2026年02月24日
- 3,600万円
-
- 借入ご希望金額
万円 - 借入期間
年 - 借入金利
% - 月々のお支払い金額
円
- 借入ご希望金額
※ 月々のお支払例は目安の試算となりますので、実際の金額とは異なる場合がございます。詳しくは店舗までお問合わせください。
- 宮崎市大塚台東2丁目
-
JR日豊本線『南宮崎』 徒歩53分 (約4230m)
JR日豊本線『宮崎』 徒歩61分 (約4820m)
JR日豊本線『宮崎神宮』 徒歩81分 (約6460m)
宮崎市大塚台東2丁目一戸建て | 物件情報
大塚台東の築浅3LDK。駐車4台可×高台の安心エリアで快適な暮らし
◆ 築浅・リフォーム不要のきれいな住まい
2021年築で室内状態良好。入居後の初期費用を抑えられます。
◆ 駐車4台のゆとりある敷地
並列駐車OKで来客時も安心。車を多く使うご家庭にぴったり。
◆ 高台×南向きで陽当たり良好
ハザードマップ外の安心エリア。明るく風通しの良い立地です。
◆ 収納充実の3LDK
WIC・パントリー・各部屋収納で、片付けやすい空間設計。
◆ 選べる通学エリア(申請制)
江南小・大塚中への通学変更も可能なエリアで柔軟に選択できます。
物件の設備
- 食器洗浄乾燥機
- IHクッキングヒータ
- アイランドキッチン
- バス
- 浴室に窓
- トイレ
- 室内洗濯機置場
- ウォークインクローゼット
物件の特徴
- 閑静な住宅街
- 高台に立地
- 陽当り良好
- 2階建
物件詳細情報
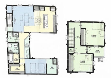
| 価格 | 3,600万円 | 間取り | 3LDK |
|---|---|---|---|
| 物件種別 | 中古一戸建て | ||
| 所在地 | 宮崎県宮崎市大塚台東2丁目 | ||
| アクセス |
|
||
| 建物面積 | 公130.25㎡ | 駐車場 | あり 普通:4台 |
| 築年月 | 2021年(令和3年)09月築 | ||
| 建物構造 | 木造 2階建 | 工法 | |
| 主要採光 | 南向 | バルコニー | |
| 保証・評価 | |||
| リフォーム | |||
| 土地面積 | 公234.74㎡(71坪) | 接道 | 東側(公道)幅 約4.6m |
| 私道 | セットバック | ||
| 地目 | 宅地 | 地勢 | 高台 |
| 権利 | 所有権 |
||
| 都市計画 | 市街化区域 |
用途地域 | 1種低層 |
| 建ぺい/容積率 | 40% / 80% | 土地国土法 | |
| 許可番号 | 建築基準法 | ||
| 法令制限 | |||
| 小学区 | 宮崎西小学校 徒歩13分 (約1040m) | 中学区 | 生目南中学校 徒歩36分 (約2810m) |
| 現況 | 居住中 | 引渡 | 相談 |
| その他費用 | |||
| 周辺環境 | 宮崎県立宮崎西高等学園附属中学校 徒歩5分 (約350m) 大塚台西保育園 徒歩11分 (約880m) ふたば認定こども園 徒歩10分 (約800m) 宮崎西小学校 徒歩13分 (約1040m) ローソン 宮崎大塚大迫店 徒歩11分 (約820m) セブンイレブン 宮崎大塚中央通 徒歩11分 (約810m) 旬感マーケット 大塚店 徒歩14分 (約1100m) コープみやざき 大塚店 徒歩11分 (約870m) セブンイレブン 宮崎大坪町店 徒歩13分 (約1010m) コスモス 大塚店 徒歩15分 (約1140m) |
||
| 備考 | 築浅なのでリフォーム不要で入居可能☆収納豊富・駐車場は並列で4台程度可能。 高台なので安心のハザードマップ外です。 申請により、江南小学校、大塚中学校へ通学可能。 |
||
| 物件番号 | 4479779 | 取引態様 | 媒介 |
取扱店舗情報
| 電話番号 | 0985-86-7336 |
|---|---|
| 所在地 | 〒889-1607 宮崎県宮崎市清武町加納3丁目16 メモワールII101号室 |
| 営業時間 | 9:00~20:00 |
| 定休日 | 不定休 |
| 宅建免許番号 | 宮崎県知事(1)第4995号 |
| アクセス | 店舗への地図はこちら |

来店ご予約
宮崎県宮崎市で価格が似ている物件はこちら
- 宮崎県
マイページ物件数 - 1,595件
最近見た物件
-
-

-
- 新築一戸建て
- 2,680万円
-
霧島市国分新町
-
JR日豊本線国分
-
-
-

-
- 土地
- 1,150万円
-
可児市今渡
-
名鉄広見線日本ライン今渡
-
-
-

-
- 土地
- 200万円
-
芳賀郡芳賀町大字西水沼
-
【西水沼】
-
宮崎県中古一戸建て新着物件
-
-

-
- 中古一戸建て
- 2,280万円
-
宮崎市青島3丁目
-
JR日南線折生迫駅
-
-
-

-
- 中古一戸建て
- 1,100万円
-
宮崎市佐土原町下田島
-
JR日豊本線佐土原駅
-
-
-

-
- 中古一戸建て
- 2,000万円
-
宮崎市生目台東3丁目
-
JR日豊本線南宮崎駅
-
-
-

-
- 中古一戸建て
- 3,980万円
-
宮崎市田野町甲
-
JR日豊本線田野駅
-
-
-

-
- 中古一戸建て
- 900万円
-
宮崎市清武町加納甲
-
JR日豊本線清武駅
-
-
-

-
- 中古一戸建て
- 3,500万円
-
宮崎市大塚台東1丁目
-
JR日豊本線宮崎駅
-
-
-

-
- 中古一戸建て
- 780万円
-
宮崎市佐土原町上田島
-
JR日豊本線佐土原駅
-
- お近くの店舗を探す
-
おすすめ物件
-
-

-
- 中古一戸建て
- 1,250万円
-
宮崎市清武町今泉丙
-
JR日豊本線清武
-
-
-

-
- 中古一戸建て
- 1,400万円
-
宮崎市堀川町
-
JR日豊本線宮崎
-
-
-

-
- 中古一戸建て
- 2,000万円
-
宮崎市江南2丁目
-
JR日豊本線南宮崎
-
-
-

-
- 中古一戸建て
- 1,600万円
-
日南市時任町
-
JR日南線飫肥
-
-
-

-
- 中古一戸建て
- 1,990万円
-
宮崎市吉村町曽師前
-
JR日豊本線宮崎
-
-
-

-
- 中古一戸建て
- 700万円
-
日南市南郷町中村乙
-
JR日南線南郷
-
-
-

-
- 中古一戸建て
- 690万円
-
宮崎市東宮1丁目
-
JR日南線南方
-
-
-

-
- 中古一戸建て
- 280万円
-
宮崎市佐土原町東上那珂
-
野久尾バス停
-
-
-

-
- 中古一戸建て
- 2,300万円
-
宮崎市学園木花台南3丁目
-
JR日南線木花
-
-
-

-
- 中古一戸建て
- 2,900万円
-
宮崎市田野町乙
-
JR日豊本線田野
-























担当エージェント:小玉 賢太
築浅で室内状態が良く、高台の安心エリアにある3LDKです。
駐車4台可能で、車をよく使うご家庭にもぴったり。
収納が多く暮らしやすい間取りで、長く快適にお住まいいただけます。