加島3丁目 中古戸建
NEW 11.08掲載情報更新日:2025年11月13日 次回更新予定日:2025年11月27日
- 3,380万円
-
- 借入ご希望金額
万円 - 借入期間
年 - 借入金利
% - 月々のお支払い金額
円
- 借入ご希望金額
※ 月々のお支払例は目安の試算となりますので、実際の金額とは異なる場合がございます。詳しくは店舗までお問合わせください。
- 大阪市淀川区加島3丁目
-
JR東西線『加島』 徒歩3分 (約240m)
加島3丁目 中古戸建一戸建て | 物件情報
◆ハウスドゥ天六駅前おすすめ物件です♪
◆JR東西線「加島」駅徒歩3分
物件の設備
- 電気
- 上水道
- 下水道
- 都市ガス
物件の特徴
- 前道6m以上
- 3階建以上
- 建設住宅性能評価付
- 瑕疵保険検査基準適合
- 瑕疵保険(国交省指定)保証利用可
- 瑕疵保証(不動産会社独自)有
物件詳細情報
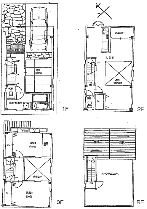
| 価格 | 3,380万円 | 間取り | 3LDK |
|---|---|---|---|
| 物件種別 | 中古一戸建て | ||
| 所在地 | 大阪府大阪市淀川区加島3丁目 | ||
| アクセス |
|
||
| 建物面積 | 公93.41㎡ | 駐車場 | なし |
| 築年月 | 2002年(平成14年)10月築 | ||
| 建物構造 | 鉄骨 3階建 | 工法 | |
| 主要採光 | バルコニー | ||
| 保証・評価 | 【瑕疵保証(不動産会社独自)】利用可 【瑕疵保険(国交省指定)】利用可 建設住宅性能評価書(新築時) |
||
| リフォーム | |||
| 土地面積 | 公62.65㎡(18.95坪) | 接道 | 北東側幅 約6.0m |
| 私道 | セットバック | ||
| 地目 | 宅地 | 地勢 | |
| 権利 | 所有権 |
||
| 都市計画 | 市街化区域 |
用途地域 | 準工業 |
| 建ぺい/容積率 | 60% / 300% | 土地国土法 | |
| 許可番号 | 建築基準法 | ||
| 法令制限 | |||
| 小学区 | 中学区 | ||
| 現況 | 居住中 | 引渡 | 相談 |
| その他費用 | |||
| 備考 | |||
| 物件番号 | 4480413 | 取引態様 | 媒介 |
取扱店舗情報
| 電話番号 | 06-6881-4360 |
|---|---|
| 所在地 | 〒531-0041 大阪府大阪市北区天神橋7丁目3-2 大山ビル6F |
| 営業時間 | 10:00~19:00 |
| 定休日 | 火曜日・水曜日 |
| 宅建免許番号 | 大阪府知事(3)第56923号 |
| アクセス | 店舗への地図はこちら |

来店ご予約
大阪府大阪市淀川区で価格が似ている物件はこちら
- 大阪府
マイページ物件数 - 15,707件
最近見た物件
-
-

-
- 中古一戸建て
- 2,150万円
-
札幌市清田区清田八条3丁目
-
札幌市東豊線福住
-
-
-

-
- 中古一戸建て
- 1,530万円
-
宇部市大字西岐波
-
JR宇部線床波
-
大阪府中古一戸建て新着物件
-
-

-
- 中古一戸建て
- 1,300万円
-
泉南市新家
-
JR阪和線新家駅
-
-
-

-
- 中古一戸建て
- 2,880万円
-
茨木市北春日丘2丁目
-
JR東海道線茨木駅
-
-
-

-
- 中古一戸建て
- 4,780万円
-
茨木市上野町
-
JR東海道線茨木駅
-
-
-

-
- 中古一戸建て
- 2,780万円
-
大阪市阿倍野区橋本町
-
大阪市堺筋線天下茶屋駅
-
-
-

-
- 中古一戸建て
- 2,680万円
-
大阪市淀川区十八条3丁目
-
阪急電鉄宝塚線三国駅
-
-
-

-
- 中古一戸建て
- 1,580万円
-
東大阪市大蓮東2丁目
-
近鉄大阪線弥刀駅
-
-
-

-
- 収益
- 4,100万円
-
茨木市彩都あさぎ5丁目
-
大阪モノレール彩都彩都西駅
-
- お近くの店舗を探す
-
おすすめ物件
-
-

-
- 中古一戸建て
- 730万円
-
泉南郡熊取町山の手台3丁目
-
JR阪和線熊取
-
-
-

-
- 中古一戸建て
- 2,180万円
-
東大阪市末広町
-
近鉄難波・奈良線瓢箪山
-
-
-

-
- 中古一戸建て
- 2,780万円
-
大阪市住吉区山之内4丁目
-
JR阪和線杉本町
-
-
-

-
- 中古一戸建て
- 4,750万円
-
大阪市住之江区御崎7丁目
-
南海電鉄本線住ノ江
-
-
-

-
- 中古一戸建て
- 6,700万円
-
池田市旭丘2丁目
-
阪急電鉄宝塚線石橋阪大前
-
-
-

-
- 中古一戸建て
- 890万円
-
泉南郡熊取町山の手台3丁目
-
JR阪和線熊取
-
-
-

-
- 中古一戸建て
- 690万円
-
泉佐野市日根野
-
JR阪和線日根野
-
-
-

-
- 中古一戸建て
- 480万円
-
貝塚市橋本
-
JR阪和線和泉橋本
-
-
-

-
- 中古一戸建て
- 1,780万円
-
岸和田市下池田町2丁目
-
JR阪和線久米田
-
-
-

-
- 中古一戸建て
- 1,450万円
-
大阪市阿倍野区播磨町3丁目
-
大阪市御堂筋線西田辺
-



担当エージェント:藤島 大斗
◆お気軽にお問い合わせください♪