岩出市山崎の中古戸建
掲載情報更新日:2026年02月26日 次回更新予定日:2026年03月12日
- 538万円
-
- 借入ご希望金額
万円 - 借入期間
年 - 借入金利
% - 月々のお支払い金額
円
- 借入ご希望金額
※ 月々のお支払例は目安の試算となりますので、実際の金額とは異なる場合がございます。詳しくは店舗までお問合わせください。
- 岩出市山崎
-
JR和歌山線『船戸』 徒歩12分 (約900m)
JR和歌山線『岩出』 徒歩27分 (約2100m)
コミニティバス『船戸箱山』 徒歩3分 (約240m)
岩出市山崎一戸建て | 物件情報
月々1.5万円~ 即内見可!
☆月々1.5万円~
☆陽当たり良好!
☆駐車場2台可能!
【内覧会開催中】
本日ご案内可能な場合もございます。
複数件併せてご内見も可能♪
他の掲載物件もまとめてご内見頂けます。気になる物件をお教え下さい。
☆立地のポイント
【船戸駅】徒歩約12分
【岩出駅】徒歩約27分
【コミニティバス/船戸箱山】徒歩約3分
物件の設備
- 上水道
- 浄化槽
物件の特徴
- 2階建
- 即入居可
物件詳細情報
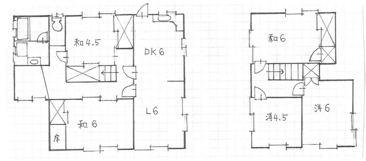
| 価格 | 538万円 | 間取り | 5LDK |
|---|---|---|---|
| 物件種別 | 中古一戸建て | ||
| 所在地 | 和歌山県岩出市山崎 | ||
| アクセス |
|
||
| 建物面積 | 109.54㎡ | 駐車場 | あり |
| 築年月 | 1985年(昭和60年)02月築 | ||
| 建物構造 | 木造 2階建 | 工法 | |
| 主要採光 | バルコニー | ||
| 保証・評価 | |||
| リフォーム | |||
| 土地面積 | 公149.69㎡(45.28坪) | 接道 | 西側(公道)幅 約4.0m |
| 私道 | セットバック | 無 | |
| 地目 | 宅地 | 地勢 | 平坦 |
| 権利 | 所有権 |
||
| 都市計画 | 非線引区域 |
用途地域 | |
| 建ぺい/容積率 | 70% / 200% | 土地国土法 | |
| 許可番号 | 建築基準法 | ||
| 法令制限 | |||
| 小学区 | 岩出小学校 徒歩23分 (約1800m) | 中学区 | 岩出中学校 徒歩32分 (約2500m) |
| 現況 | 空 | 引渡 | 即 |
| その他費用 | |||
| 備考 | 公共下水引き込み有 駐車場2台可 |
||
| 物件番号 | 4481718 | 取引態様 | 媒介 |
取扱店舗情報
| 電話番号 | 050-5805-9447 |
|---|---|
| 所在地 | 〒536-0006 大阪府大阪市城東区野江4丁目10-13 クリエイト野江内代1F |
| 営業時間 | 10:00~19:00 |
| 定休日 | なし |
| 宅建免許番号 | 国土交通大臣(1)第10706号 |
| アクセス | 店舗への地図はこちら |

来店ご予約
和歌山県岩出市で価格が似ている物件はこちら
- 和歌山県
マイページ物件数 - 1,238件
和歌山県中古一戸建て新着物件
-
-

-
- 中古一戸建て
- 290万円
-
和歌山市神前
-
和歌山電鐵貴志川線神前駅
-
-
-

-
- 中古一戸建て
- 480万円
-
和歌山市栄谷
-
南海電気鉄道加太線紀ノ川駅
-
-
-

-
- 中古一戸建て
- 1,800万円
-
和歌山市島崎町2丁目
-
JR紀勢本線宮前駅
-
-
-

-
- 中古一戸建て
- 380万円
-
新宮市仲之町2丁目
-
JR紀勢本線新宮駅
-
-
-

-
- 中古一戸建て
- 300万円
-
東牟婁郡那智勝浦町大字北浜3丁目
-
JR紀勢本線紀伊勝浦駅
-
-
-

-
- 中古一戸建て
- 700万円
-
岩出市中迫
-
JR和歌山線岩出駅
-
-
-

-
- 中古一戸建て
- 620万円
-
和歌山市北島
-
南海電気鉄道加太線東松江駅
-
- お近くの店舗を探す
-


















担当エージェント:尾関 親代
落ち着いた住環境でファミリー層にも単身者にも◎♪
住宅ローン相談会開催中です!
ぜひお気軽にお問い合わせください!
公共下水引き込み有
駐車場2台可