栃木市大平町西野田の中古戸建
NEW 11.09掲載情報更新日:2025年11月09日 次回更新予定日:2025年11月23日
- 1,699万円
-
- 借入ご希望金額
万円 - 借入期間
年 - 借入金利
% - 月々のお支払い金額
円
- 借入ご希望金額
※ 月々のお支払例は目安の試算となりますので、実際の金額とは異なる場合がございます。詳しくは店舗までお問合わせください。
- 栃木市大平町西野田
-
東武日光線『静和』 徒歩47分 (約3700m)
栃木市大平町西野田一戸建て | 物件情報
物件の設備
- 公営水道
- 浄化槽
- プロパンガス
物件の特徴
- 即入居可
物件詳細情報
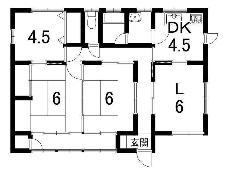
| 価格 | 1,699万円 | 間取り | 4DK |
|---|---|---|---|
| 物件種別 | 中古一戸建て | ||
| 所在地 | 栃木県栃木市大平町西野田 | ||
| アクセス |
|
||
| 建物面積 | 公70.38㎡ | 駐車場 | あり |
| 築年月 | 2015年(平成27年)11月築 | ||
| 建物構造 | 木造 1階建 | 工法 | |
| 主要採光 | バルコニー | ||
| 保証・評価 | |||
| リフォーム | |||
| 土地面積 | 公392㎡(118.58坪) | 接道 | 南東側(公道)幅 約5.7m 間口 約2.50m |
| 私道 | セットバック | ||
| 地目 | 宅地 | 地勢 | |
| 権利 | 所有権 |
||
| 都市計画 | 調整区域 |
用途地域 | 指定無 |
| 建ぺい/容積率 | 60% / 200% | 土地国土法 | |
| 許可番号 | 建築基準法 | ||
| 法令制限 | |||
| 小学区 | 大平南小学校 徒歩9分 (約700m) | 中学区 | 大平南中学校 徒歩25分 (約1952m) |
| 現況 | 空 | 引渡 | 即 |
| その他費用 | |||
| 備考 | ■瑕疵保障(不動産会社独自)付 | ||
| 物件番号 | 4481818 | 取引態様 | 媒介 |
取扱店舗情報
ハウスドゥ 自治医大駅前 有限会社日下田材木店 店舗詳細ページへ
| 電話番号 | 0285-37-6076 |
|---|---|
| 所在地 | 〒329-0434 栃木県下野市祇園1丁目25-2 |
| 営業時間 | 10:00~18:00 |
| 定休日 | 水曜日 |
| 宅建免許番号 | 栃木県知事(2)第5135号 |
| アクセス | 店舗への地図はこちら |

来店ご予約
栃木県栃木市で価格が似ている物件はこちら
- 栃木県
マイページ物件数 - 6,763件
栃木県中古一戸建て新着物件
- お近くの店舗を探す
-
おすすめ物件
-
-

-
- 中古一戸建て
- 1,980万円
-
宇都宮市下平出町
-
宇都宮芳賀ライト線平石中央小学校前
-
-
-

-
- 中古一戸建て
- 1億3,000万円
-
宇都宮市陽東5丁目
-
宇都宮芳賀ライト線宇都宮大学陽東キャンパス
-
-
-

-
- 中古一戸建て
- 1,980万円
-
宇都宮市下平出町
-
宇都宮芳賀ライト線平石中央小学校前
-
-
-

-
- 中古一戸建て
- 3,490万円
-
芳賀郡芳賀町大字八ツ木
-
宇都宮芳賀ライト線芳賀・高根沢工業団地
-
-
-

-
- 中古一戸建て
- 1,480万円
-
那須塩原市東赤田
-
JRバス西那須野消防署前
-
-
-

-
- 中古一戸建て
- 1億3,000万円
-
宇都宮市陽東5丁目
-
宇都宮芳賀ライト線宇都宮大学陽東キャンパス
-
-
-

-
- 中古一戸建て
- 600万円
-
佐野市石塚町
-
さーのって「石塚町南」
-
-
-

-
- 中古一戸建て
- 380万円
-
宇都宮市山本2丁目
-
関東バス【ゆたか団地】
-
-
-

-
- 中古一戸建て
- 2,480万円
-
宇都宮市城南2丁目
-
JR東北本線雀宮
-
-
-

-
- 中古一戸建て
- 3,280万円
-
宇都宮市戸祭3丁目
-
東武宇都宮線東武宇都宮
-







