鳥取市若葉台南5丁目の中古戸建
NEW 11.09掲載情報更新日:2025年11月09日 次回更新予定日:2025年11月23日
- 2,129万円
-
- 借入ご希望金額
万円 - 借入期間
年 - 借入金利
% - 月々のお支払い金額
円
- 借入ご希望金額
※ 月々のお支払例は目安の試算となりますので、実際の金額とは異なる場合がございます。詳しくは店舗までお問合わせください。
- 鳥取市若葉台南5丁目
-
JR因美線『津ノ井』 徒歩41分 (約3240m)
JR因美線『東郡家』 徒歩31分 (約2430m)
鳥取市若葉台南5丁目一戸建て | 物件情報
季節の風と光が心地いい。自然と暮らす4SLDK
緑豊かな街並みにたたずむ、リフォーム済み4SLDKの住まい。
リビングの大きな窓から差し込む陽光が心地よく、自然を感じながら穏やかな時間を過ごせます。
全室ゆとりのある間取りに加え、収納やサービスルームも充実。
水回りや内外装も一新されており、すぐに快適な暮らしが始められます。
小学校や公園も近く、子どもたちがのびのびと過ごせる環境。
四季の移ろいを感じながら、家族の時間をゆっくり育めるお家です。
物件の設備
- 電気
- オール電化
- 公営水道
- 公共下水
- 給湯
- IHクッキングヒータ
- カウンターキッチン
- システムキッチン
- バス
- バス1坪以上
- トイレ
- 温水洗浄便座
- 室内洗濯機置場
- 洗髪洗面化粧台
- エアコン
- 照明器具
- モニタ付インターホン
- 火災警報器/報知機
- フローリング
- フローリング張替
- クローゼット
- 納戸
- 全居室収納
物件の特徴
- リノベーション
- 内装リフォーム済
- 外装リフォーム済
- 内外装リフォーム済
- 前道6m以上
- 閑静な住宅街
- 陽当り良好
- 2階建
- 瑕疵保証(不動産会社独自)有
物件詳細情報
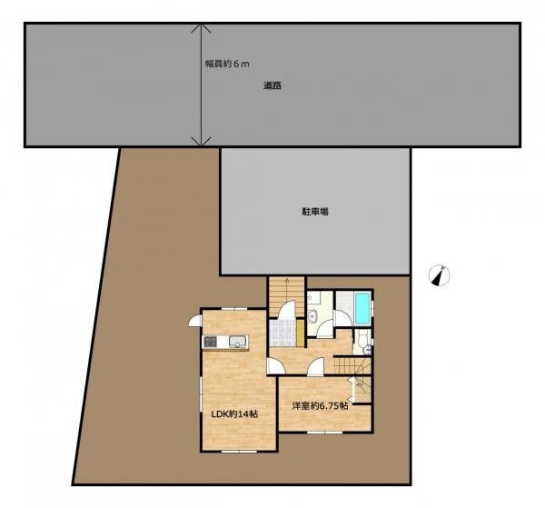
| 価格 | 2,129万円 | 間取り | 4LDK+S |
|---|---|---|---|
| 物件種別 | 中古一戸建て | ||
| 所在地 | 鳥取県鳥取市若葉台南5丁目 | ||
| アクセス |
|
||
| 建物面積 | 127㎡ | 駐車場 | あり 普通:3台 |
| 築年月 | 1994年(平成6年)11月築 | ||
| 建物構造 | 木造 2階建 | 工法 | |
| 主要採光 | バルコニー | ||
| 保証・評価 | 【瑕疵保証(不動産会社独自)】利用可 |
||
| リフォーム | 【水回り】2025年11月 キッチン・浴室・トイレ・洗面・給湯器 【外装】2025年11月 外壁 ・屋根 【その他】2025年11月 |
||
| 土地面積 | 290.24㎡(87.79坪) | 接道 | 北東側(公道)幅 約6.0m 南西側(公道)幅 約15.0m |
| 私道 | セットバック | ||
| 地目 | 宅地 | 地勢 | |
| 権利 | 所有権 |
||
| 都市計画 | 市街化区域 |
用途地域 | 1種低層 |
| 建ぺい/容積率 | 50% / 80% | 土地国土法 | |
| 許可番号 | 建築基準法 | ||
| 法令制限 | 景観法 | ||
| 小学区 | 若葉台小学校 徒歩12分 (約900m) | 中学区 | 桜ヶ丘中学校 徒歩52分 (約4100m) |
| 現況 | 空 | 引渡 | 未記入 |
| その他費用 | |||
| 周辺環境 | 若葉台駐在所 徒歩6分 (約430m) 若葉台小学校 徒歩12分 (約900m) ダイソーイオン津ノ井店 徒歩17分 (約1300m) イオン津ノ井店 徒歩18分 (約1380m) JR東郡家駅 徒歩31分 (約2430m) エスマートつのい店 徒歩35分 (約2790m) コメリ郡家店 徒歩49分 (約3900m) 桜ヶ丘中学校 徒歩52分 (約4100m) |
||
| 備考 | |||
| 物件番号 | 4482561 | 取引態様 | 媒介 |
取扱店舗情報
| 電話番号 | 0857-54-1455 |
|---|---|
| 所在地 | 〒680-0903 鳥取県鳥取市南隈881番地 サウスIII101号 |
| 営業時間 | 10:00~18:00 |
| 定休日 | 水曜日、木曜日、祝日、年末年始 |
| 宅建免許番号 | 鳥取県知事(1)第1434号 |
| アクセス | 店舗への地図はこちら |

来店ご予約
鳥取県鳥取市で価格が似ている物件はこちら
- 鳥取県
マイページ物件数 - 440件
最近見た物件
鳥取県中古一戸建て新着物件
- お近くの店舗を探す
-
おすすめ物件
-
-

-
- 中古一戸建て
- 1,450万円
-
鳥取市面影2丁目
-
JR山陰本線鳥取
-
-
-

-
- 中古一戸建て
- 1,680万円
-
米子市上福原
-
JR山陰本線東山公園
-
-
-

-
- 中古一戸建て
- 1,980万円
-
境港市上道町
-
JR境線馬場崎町
-
-
-

-
- 中古一戸建て
- 2,480万円
-
鳥取市浜坂3丁目
-
JR山陰本線鳥取
-
-
-

-
- 中古一戸建て
- 3,150万円
-
米子市中島1丁目
-
JR山陰本線東山公園
-
-
-

-
- 中古一戸建て
- 1,849万円
-
鳥取市宮長
-
JR山陰本線鳥取
-
-
-

-
- 中古一戸建て
- 1,899万円
-
米子市淀江町佐陀
-
淀江町巡回バス 佐陀浜入口バス停
-
-
-

-
- 中古一戸建て
- 1,549万円
-
鳥取市相生町4丁目
-
JR山陰本線鳥取
-
-
-

-
- 中古一戸建て
- 1,780万円
-
鳥取市若葉台南6丁目
-
JR因美線津ノ井
-










































