加古川市別府町本町2丁目の中古戸建
NEW 11.11掲載情報更新日:2025年11月11日 次回更新予定日:2025年11月25日
- 777万円
-
- 借入ご希望金額
万円 - 借入期間
年 - 借入金利
% - 月々のお支払い金額
円
- 借入ご希望金額
※ 月々のお支払例は目安の試算となりますので、実際の金額とは異なる場合がございます。詳しくは店舗までお問合わせください。
- 加古川市別府町本町2丁目
-
山陽電鉄本線『別府』 徒歩13分 (約1040m)
加古川市別府町本町2丁目一戸建て | 物件情報
◆家を買うならハウスドゥ 加古川駅南!◆不動産に関するあらゆる問題を一緒に解決していきましょう。
■住宅ローンのご相談無料■平日・土日祝問わず物件案内ツアー実施中!(水曜定休)■販売中の物件全公開をお約束■購入・売却について分かりやすくご説明■近隣や自治会についてなど何でもご相談ください!
物件の設備
- 電気
- 上水道
- 公営水道
- 下水道
- 公共下水
- プロパンガス
- バス
- トイレ
- 温水洗浄便座
- 室内洗濯機置場
- 洗面所独立
- バルコニー
物件の特徴
- 前道6m以上
- 2階建
- 即入居可
物件詳細情報
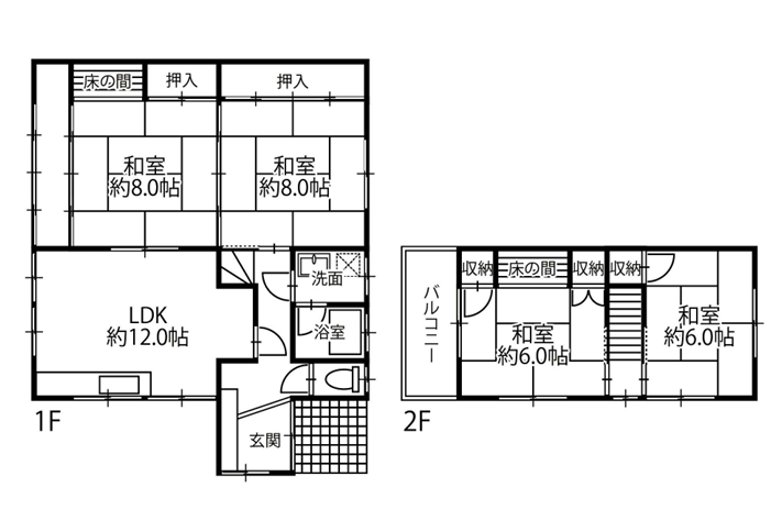
| 価格 | 777万円 | 間取り | 4LDK |
|---|---|---|---|
| 物件種別 | 中古一戸建て | ||
| 所在地 | 兵庫県加古川市別府町本町2丁目 | ||
| アクセス |
|
||
| 建物面積 | 111.02㎡ | 駐車場 | なし |
| 築年月 | 1982年(昭和57年)08月築 | ||
| 建物構造 | 木造 2階建 | 工法 | |
| 主要採光 | 南西向 | バルコニー | |
| 保証・評価 | |||
| リフォーム | |||
| 土地面積 | 158.34㎡(47.89坪) | 接道 | 南西側(公道)幅 約15.0m 間口 約2.80m |
| 私道 | セットバック | 無 | |
| 地目 | 宅地 | 地勢 | 平坦 |
| 権利 | 所有権 |
||
| 都市計画 | 市街化区域 |
用途地域 | |
| 建ぺい/容積率 | 60% / 200% | 土地国土法 | 届出不要 |
| 許可番号 | 建築基準法 | ||
| 法令制限 | 前面道路43但し書き道路 再建築可 包括同意基準(3)-4 前面道路所有者・加古川市所 有(管理者・加古川市土木総務課 管理者の承諾可 土木総務課・課長 水野氏確認 R7.7.31) | ||
| 小学区 | 別府小学校 徒歩2分 (約130m) | 中学区 | 別府中学校 徒歩19分 (約1450m) |
| 現況 | 空 | 引渡 | 即 |
| その他費用 | |||
| 周辺環境 | 加古川市立別府小学校 徒歩2分 (約130m) イトーヨーカドー アリオ加古川店 徒歩9分 (約660m) ファミリーマート 新野辺北町店 徒歩9分 (約680m) 別府駅 徒歩12分 (約910m) ドラッグストアコスモス 東加古川店 徒歩15分 (約1190m) A-プライス 加古川別府店 徒歩15分 (約1180m) たずみ病院 徒歩17分 (約1340m) 加古川市立別府中学校 徒歩19分 (約1450m) 浜の宮公園 徒歩21分 (約1650m) |
||
| 備考 | 売主契約不適合責任免責及び付帯設備の故障不具合免責 | ||
| 物件番号 | 4484875 | 取引態様 | 媒介 |
取扱店舗情報
ハウスドゥ 加古川駅南 INFINEX株式会社 店舗詳細ページへ
| 電話番号 | 079-490-7701 |
|---|---|
| 所在地 | 〒675-0064 兵庫県加古川市加古川町溝之口753 兵庫住宅ビル1F |
| 営業時間 | 10:00~18:00 |
| 定休日 | 水曜日、GW、夏季休暇、年末年始 |
| 宅建免許番号 | 兵庫県知事(1)第401794号 |
| アクセス | 店舗への地図はこちら |

来店ご予約
兵庫県加古川市で価格が似ている物件はこちら
- 兵庫県
マイページ物件数 - 2,871件
最近見た物件
-
-

-
- 中古一戸建て
- 1,399万円
-
津島市東中地町1丁目
-
名鉄尾西線日比野
-
-
-

-
- 中古一戸建て
- 1,590万円
-
大阪市淀川区田川2丁目
-
JR東海道線塚本
-
兵庫県中古一戸建て新着物件
-
-

-
- 中古一戸建て
- 1,380万円
-
尼崎市武庫町3丁目
-
阪急電鉄神戸線武庫之荘駅
-
-
-

-
- 中古一戸建て
- 1,699万円
-
加古川市野口町長砂
-
山陽電鉄本線浜の宮駅
-
-
-

-
- 中古一戸建て
- 2,780万円
-
姫路市神子岡前1丁目
-
JR姫新線播磨高岡駅
-
-
-

-
- 中古一戸建て
- 1,949万円
-
明石市北朝霧丘2丁目
-
JR山陽本線明石駅
-
-
-

-
- 中古一戸建て
- 1,750万円
-
加古川市別府町別府
-
山陽電鉄本線別府駅
-
-
-

-
- 中古一戸建て
- 300万円
-
たつの市龍野町北龍野
-
JR姫新線本竜野駅
-
-
-

-
- 中古一戸建て
- 800万円
-
尼崎市東本町4丁目
-
阪神電鉄本線大物駅
-
- お近くの店舗を探す
-
おすすめ物件
-
-

-
- 中古一戸建て
- 485万円
-
加西市北条町東南
-
北条鉄道北条町
-
-
-

-
- 中古一戸建て
- 550万円
-
姫路市北平野南の町
-
JR山陽本線姫路
-
-
-

-
- 中古一戸建て
- 290万円
-
姫路市的形町福泊
-
山陽電鉄本線的形
-
-
-

-
- 中古一戸建て
- 2,990万円
-
明石市大久保町大窪
-
JR山陽本線大久保
-
-
-

-
- 中古一戸建て
- 2,120万円
-
明石市大久保町西脇
-
JR山陽本線大久保
-
-
-

-
- 中古一戸建て
- 2,280万円
-
姫路市飾磨区上野田5丁目
-
山陽電鉄本線亀山
-
-
-

-
- 中古一戸建て
- 930万円
-
姫路市飾磨区阿成下垣内
-
山陽電鉄本線妻鹿
-
-
-

-
- 中古一戸建て
- 1,800万円
-
加古川市加古川町西河原
-
JR山陽本線加古川
-
-
-

-
- 中古一戸建て
- 950万円
-
加古川市別府町別府
-
山陽電鉄本線別府
-
-
-

-
- 中古一戸建て
- 3,980万円
-
加古川市加古川町友沢
-
山陽電鉄本線尾上の松
-



ハウスドゥ加古川駅南店は不動産業界をお客様の為の業界へ変えるために、日々営業しております。
不動産がもっとお客様にとって身近に感じられるようにお客様に寄り添って営業!
全ての不動産情報を公開、お客様に寄り添った提案を心掛けます。
「安心」と「安全」な取引をモットーに店舗ネットワークを拡大、北海道から沖縄まで700店舗を展開中
お客様にとって一番最適な物件、最適な条件でご購入いただけるように購入までの流れや住宅ローン等わからないことがあれば何回でも何度でもお答えさせていただきます
不動産の仕組みやローンの仕組みをしっかりと理解していただいた上で安心安全な取引をしていただくことを心掛けております。
メールでのお問合せの際は、物件について知りたい内容や希望の条件などを合わせて送っていただけますとよりお客様に寄り添ったご提案が可能です!