大字安行慈林 中古戸建
NEW 11.15掲載情報更新日:2025年11月15日 次回更新予定日:2025年11月29日
- 1,200万円
-
- 借入ご希望金額
万円 - 借入期間
年 - 借入金利
% - 月々のお支払い金額
円
- 借入ご希望金額
※ 月々のお支払例は目安の試算となりますので、実際の金額とは異なる場合がございます。詳しくは店舗までお問合わせください。
- 川口市大字安行慈林
-
埼玉高速鉄道『鳩ヶ谷』 徒歩18分 (約1440m)
JR京浜東北・根岸線『川口』 バス乗車26分 サンテピア 停 徒歩5分 (約400m)
埼玉高速鉄道『東川口』 バス乗車27分 慈林 停 徒歩3分 (約240m)
大字安行慈林 中古戸建一戸建て | 物件情報
★人気のエリアに戸建が登場です★
☆☆☆本日、ご案内可能です☆☆☆
人気エリアに戸建が登場です!
◆前面棟無しで日当たり良好!
物件の設備
- システムキッチン
- オートバス
- 浴室に窓
- トイレ2箇所
- 洗髪洗面化粧台
- モニタ付インターホン
- 和室
- フローリング
- クローゼット
物件の特徴
- スーパーが近い
- 閑静な住宅街
- 陽当り良好
- 2階建
- 前面棟無
物件詳細情報
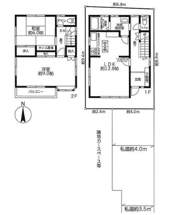
| 価格 | 1,200万円 | 間取り | 2LDK |
|---|---|---|---|
| 物件種別 | 中古一戸建て | ||
| 所在地 | 埼玉県川口市大字安行慈林 | ||
| アクセス |
|
||
| 建物面積 | 71.28㎡ | 駐車場 | なし |
| 築年月 | 1989年(平成1年)11月築 | ||
| 建物構造 | 木造 2階建 | 工法 | |
| 主要採光 | バルコニー | ||
| 保証・評価 | |||
| リフォーム | |||
| 土地面積 | 公60.49㎡(18.29坪) | 接道 | |
| 私道 | セットバック | ||
| 地目 | 宅地 | 地勢 | |
| 権利 | 所有権 |
||
| 都市計画 | 市街化区域 |
用途地域 | 1種住居 |
| 建ぺい/容積率 | 60% / 160% | 土地国土法 | |
| 許可番号 | 建築基準法 | ||
| 法令制限 | |||
| 小学区 | 慈林小学校 徒歩11分 (約850m) | 中学区 | 安行中学校 徒歩24分 (約1900m) |
| 現況 | 空 | 引渡 | 相談 |
| その他費用 | |||
| 周辺環境 | セブン-イレブン 川口安行慈林店 徒歩3分 (約220m) 川口市高齢者総合福祉センター サンテピア 徒歩4分 (約300m) 安行慈林南公園 徒歩4分 (約320m) 慈林神社 徒歩5分 (約340m) 川口市立安行保育所 徒歩6分 (約410m) 安行慈林堂下公園 徒歩5分 (約380m) 魚勝 徒歩5分 (約380m) 埼玉ヤクルト保育園ぽっぽ保育ルーム 徒歩5分 (約340m) 翠ケ丘幼稚園 徒歩6分 (約460m) わかゆり学園 徒歩6分 (約440m) |
||
| 備考 | |||
| 物件番号 | 4490624 | 取引態様 | 媒介 |
取扱店舗情報
ハウスドゥ 鳩ヶ谷坂下町 株式会社ウェルカムホーム 店舗詳細ページへ
| 電話番号 | 048-242-5180 |
|---|---|
| 所在地 | 〒334-0003 埼玉県川口市坂下町3丁目32-21 |
| 営業時間 | 9:00~18:00 |
| 定休日 | 火曜日、水曜日、年末年始 |
| 宅建免許番号 | 埼玉県知事(1)第25389号 |
| アクセス | 店舗への地図はこちら |

来店ご予約
埼玉県川口市で価格が似ている物件はこちら
- 埼玉県
マイページ物件数 - 3,135件
最近見た物件
-
-

-
- 中古一戸建て
- 2,499万円
-
津市河芸町杜の街1丁目
-
伊勢鉄道伊勢上野
-
埼玉県中古一戸建て新着物件
-
-

-
- 中古一戸建て
- 2,880万円
-
川口市大字峯
-
東武伊勢崎・大師線草加駅
-
-
-

-
- 中古一戸建て
- 2,980万円
-
川口市大字安行吉岡
-
埼玉高速鉄道新井宿駅
-
-
-

-
- 収益
- 830万円
-
川口市桜町6丁目
-
埼玉高速鉄道新井宿駅
-
-
-

-
- 中古一戸建て
- 1,380万円
-
さいたま市桜区大字神田
-
JR埼京線与野本町駅
-
-
-

-
- 中古一戸建て
- 1,899万円
-
さいたま市岩槻区美幸町
-
東武野田線岩槻駅
-
-
-

-
- 中古一戸建て
- 3,980万円
-
さいたま市緑区大字中尾
-
JR武蔵野線東浦和駅
-
-
-

-
- 中古一戸建て
- 1,200万円
-
川口市大字安行慈林
-
埼玉高速鉄道鳩ヶ谷駅
-
- お近くの店舗を探す
-
おすすめ物件
-
-

-
- 中古一戸建て
- 2,930万円
-
上尾市小泉5丁目
-
JR高崎線北上尾
-
-
-

-
- 中古一戸建て
- 2,880万円
-
さいたま市岩槻区城町1丁目
-
東武野田線岩槻
-
-
-

-
- 中古一戸建て
- 1,980万円
-
上尾市大字原市
-
埼玉新都市交通原市
-
-
-

-
- 中古一戸建て
- 1,480万円
-
北葛飾郡松伏町田中3丁目
-
東武伊勢崎・大師線北越谷
-
-
-

-
- 中古一戸建て
- 4,880万円
-
上尾市大字原市
-
湘南新宿ライン宇須東大宮
-
-
-

-
- 中古一戸建て
- 480万円
-
北本市石戸2丁目
-
JR高崎線北本
-
-
-

-
- 中古一戸建て
- 3,980万円
-
さいたま市緑区大字中尾
-
JR武蔵野線東浦和
-
-
-

-
- 中古一戸建て
- 3,980万円
-
上尾市今泉3丁目
-
JR高崎線上尾
-
-
-

-
- 中古一戸建て
- 3,480万円
-
川口市柳崎4丁目
-
JR武蔵野線東浦和
-
-
-

-
- 中古一戸建て
- 2,480万円
-
さいたま市岩槻区大字本宿
-
東武野田線岩槻
-















担当エージェント:富重 隆文
お客様に「寄り添う」会社です。不動産の購入は金額も大きく、不安なことがたくさんあると思います。ぜひ、一度ご連絡ください。不動産に関するプロとして、お客様の課題に一つ一つ向き合っていきます。