中古戸建 駿河区池田
掲載情報更新日:2026年04月07日 次回更新予定日:2026年04月21日
- 2,480万円
-
- 借入ご希望金額
万円 - 借入期間
年 - 借入金利
% - 月々のお支払い金額
円
- 借入ご希望金額
※ 月々のお支払例は目安の試算となりますので、実際の金額とは異なる場合がございます。詳しくは店舗までお問合わせください。
- 静岡市駿河区池田
-
JR東海道本線『東静岡』 車9分(約3.1km)
静岡鉄道静岡清水線『古庄』 車9分(約3.2km)
しずてつジャストライン『「英和学院大学池田山団地」停』 徒歩2分 (約160m)
中古戸建 駿河区池田一戸建て | 物件情報
◎眺望、景色は一見の価値あり ◎セキスイハイム施工物件 ◎バス停徒歩2分!
私たち「ハウスドゥ 東静岡」は、
静岡市葵区・駿河区エリアを中心に不動産情報を発信しています。
*「不動産購入って何から始めたらいいの?」
*「月々の支払いは、いくらくらいがベストなの?」
*「住宅ローンを組む銀行は、どこがいいの?」
*「高い買い物だから、失敗したくない」
*「不動産は、いつが買い時なの?」
など不動産を購入する際のお悩みや不安などを解決します!
是非ご相談ください!
また当日のご見学、ご内覧、ご相談も承ります!!
お気軽にお問合せ下さいませ!
営業時間:9:00~18:00(水曜日定休)
◇キッズスペース有◇
【ハウスドゥ 東静岡】
〒420-0813 静岡県静岡市葵区長沼三丁目1番36号
お問合わせ:0120-761-751
スタッフ一同お客様のご来店を心よりお待ちしております!
物件の設備
- 電気
- 上水道
- 下水道
- 側溝
- プロパンガス
- 給湯
- コンロ三口
- システムキッチン
- バス
- トイレ
- トイレ2箇所
- 室内洗濯機置場
- 洗面所独立
- エアコン
- LDK20畳以上
- 全居室6畳以上
- フローリング
- クローゼット
- 床下収納
- シューズボックス
物件の特徴
- 前道6m以上
- 南側道路面す
- 高台に立地
- 通風良好
- 陽当り良好
- 2階建
- 角地
物件詳細情報
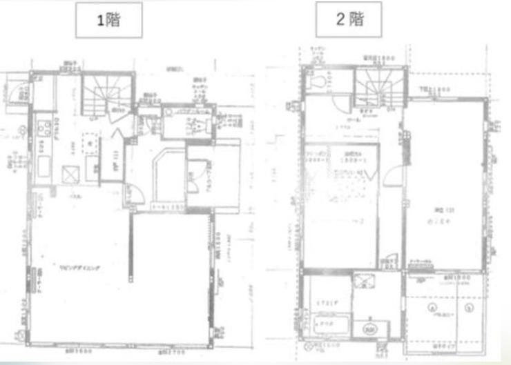
| 価格 | 2,480万円 | 間取り | 2LDK |
|---|---|---|---|
| 物件種別 | 中古一戸建て | ||
| 所在地 | 静岡県静岡市駿河区池田 | ||
| アクセス |
|
||
| 建物面積 | 公117.06㎡ | 駐車場 | あり 普通:1台 |
| 築年月 | 1994年(平成6年)04月築 | ||
| 建物構造 | 軽量鉄骨 2階建 | 工法 | |
| 主要採光 | 南向 | バルコニー | |
| 保証・評価 | |||
| リフォーム | |||
| 土地面積 | 公198.67㎡(60.09坪) | 接道 | 東側(公道)幅 約5.0m 間口 約10.00m 北側(公道)幅 約5.0m 間口 約17.00m 南側(公道)幅 約10.0m 間口 約12.00m |
| 私道 | セットバック | ||
| 地目 | 宅地 | 地勢 | 高台 |
| 権利 | 所有権 |
||
| 都市計画 | 調整区域 |
用途地域 | 指定無 |
| 建ぺい/容積率 | 60% / 200% | 土地国土法 | |
| 許可番号 | 建築基準法 | ||
| 法令制限 | 風致地区・第二種風致地区(有度山) | ||
| 小学区 | 東源台小学校 徒歩15分 (約1157m) | 中学区 | 豊田中学校 徒歩19分 (約1460m) |
| 現況 | 空 | 引渡 | 相談 |
| その他費用 | |||
| 周辺環境 | セブンイレブン静岡聖一色店 徒歩19分 (約1500m) ウェルシア静岡池田店 徒歩24分 (約1920m) フードマーケットマム小鹿店 徒歩27分 (約2140m) 静岡鉄道静岡清水線/県総合運動場駅 徒歩23分 (約1790m) 静岡鉄道静岡清水線/県立美術館前駅 徒歩27分 (約2160m) コジマ×ビックカメラ 静岡店 徒歩31分 (約2450m) スシロー東静岡店 徒歩37分 (約2960m) バーミヤン 静岡国吉田店 徒歩30分 (約2380m) ダイソープラザアピア静岡店 徒歩33分 (約2570m) JR東海道線本線 草薙駅 徒歩38分 (約3010m) |
||
| 備考 | 線引き前宅地(属人性のない建物有)、簡易ガス供給エリア | ||
| 物件番号 | 4492323 | 取引態様 | 媒介 |
取扱店舗情報
| 電話番号 | 054-204-2711 |
|---|---|
| 所在地 | 〒420-0813 静岡県静岡市葵区長沼3丁目1番36号 |
| 営業時間 | 9:00~18:00 |
| 定休日 | 水曜日、年末年始 |
| 宅建免許番号 | 国土交通大臣(1)第10568号 |
| アクセス | 店舗への地図はこちら |

来店ご予約
静岡県静岡市駿河区で価格が似ている物件はこちら
- 静岡県
マイページ物件数 - 2,728件
静岡県中古一戸建て新着物件
-
-

-
- 中古一戸建て
- 1,780万円
-
御殿場市神山
-
JR御殿場線岩波駅
-
-
-

-
- 中古一戸建て
- 1,680万円
-
三島市梅名
-
伊豆箱根鉄道駿豆線大場駅
-
-
-

-
- 中古一戸建て
- 1,980万円
-
沼津市香貫が丘
-
JR東海道本線沼津駅
-
-
-

-
- 中古一戸建て
- 1,930万円
-
静岡市清水区木の下町
-
静岡鉄道静岡清水線桜橋駅
-
-
-

-
- 中古一戸建て
- 1,380万円
-
三島市長伏
-
伊豆箱根鉄道駿豆線大場駅
-
-
-

-
- 中古一戸建て
- 3,450万円
-
伊豆の国市田京
-
伊豆箱根鉄道駿豆線田京駅
-
-
-

-
- 中古一戸建て
- 2,890万円
-
静岡市駿河区広野1丁目
-
JR東海道本線安倍川駅
-
- お近くの店舗を探す
-
おすすめ物件
-
-

-
- 中古一戸建て
- 1,500万円
-
三島市富士ビレッジ
-
JR東海道本線三島
-
-
-

-
- 中古一戸建て
- 1,980万円
-
湖西市鷲津
-
JR東海道本線鷲津
-
-
-

-
- 中古一戸建て
- 2,780万円
-
富士市三ツ沢
-
岳南電車岳南原田
-
-
-

-
- 中古一戸建て
- 2,480万円
-
浜松市中央区泉3丁目
-
遠鉄バス「泉四丁目」停
-
-
-

-
- 中古一戸建て
- 3,100万円
-
沼津市寿町
-
JR東海道本線沼津
-
-
-

-
- 中古一戸建て
- 1,390万円
-
三島市加茂
-
JR東海道本線三島
-
-
-

-
- 中古一戸建て
- 2,380万円
-
富士宮市星山
-
JR身延線富士宮
-
-
-

-
- 中古一戸建て
- 4,800万円
-
三島市徳倉3丁目
-
JR東海道本線三島
-
-
-

-
- 中古一戸建て
- 3,000万円
-
伊豆の国市富士見
-
伊豆箱根鉄道駿豆線伊豆長岡
-
-
-

-
- 中古一戸建て
- 700万円
-
駿東郡清水町徳倉
-
JR東海道本線沼津
-








・眺望、景色は一見の価値あり
・セキスイハイム施工物件
・バス停徒歩2分!