豊見城市字豊見城の中古戸建
掲載情報更新日:2026年04月27日 次回更新予定日:2026年05月11日
- 3,990万円
-
- 借入ご希望金額
万円 - 借入期間
年 - 借入金利
% - 月々のお支払い金額
円
- 借入ご希望金額
※ 月々のお支払例は目安の試算となりますので、実際の金額とは異なる場合がございます。詳しくは店舗までお問合わせください。
- 豊見城市字豊見城
-
『住宅前』 徒歩5分 (約400m)
豊見城市字豊見城一戸建て | 物件情報
★人気の豊見城エリアに、魅力あふれる戸建住宅が登場♪沖縄の温暖な気候のもとで暮らしを実現しませんか?
☆★5月限定★☆
来店いただいたお客様へ
◆クオカードプレゼント◆
♪♪ちょっとしたご褒美にぜひご利用ください♪♪
◇◆このチャンスをお見逃しなく(*^^*)
■リフォーム済みで仲介手数料無料!この機会をお見逃しなく!!
■外壁塗装・壁紙張替などリフォームを行い、生まれ変わった状態で引渡し♪
■玄関を入ると広々リビング、掃き出し窓が1階に3か所あり明るい日差しが差し込みます。
■駐車場拡張により並列3台OK!BBQ可能なお庭もございます。
物件の設備
- 電気
- 上水道
- 公営水道
- 下水道
- 公共下水
- プロパンガス
- 個別プロパン
- 給湯
- 浄水器
- IHクッキングヒータ
- システムキッチン
- バス
- ユニットバス
- バス1坪以上
- 浴室に窓
- トイレ
- 温水洗浄便座
- 室内洗濯機置場
- モニタ付インターホン
- 火災警報器/報知機
- 24時間換気システム
- クローゼット
- 全居室収納
- シューズボックス
- 2面バルコニー
- ワイドバルコニー
物件の特徴
- 前道6m以上
- 閑静な住宅街
- 通風良好
- 陽当り良好
- 2階建
- 整形地
- 区画整理地内
- 即入居可
物件詳細情報
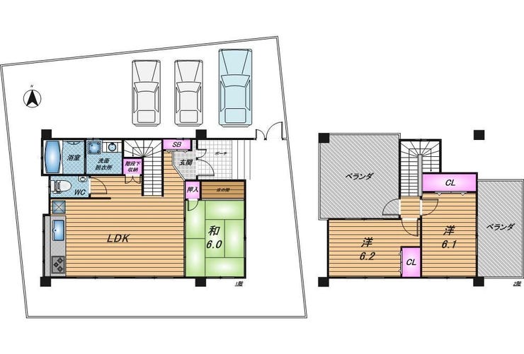
| 価格 | 3,990万円 | 間取り | 3LDK |
|---|---|---|---|
| 物件種別 | 中古一戸建て | ||
| 所在地 | 沖縄県豊見城市字豊見城 | ||
| アクセス |
|
||
| 建物面積 | 80.52㎡ | 駐車場 | あり 普通:1台 軽:2台 |
| 築年月 | 2006年(平成18年)08月築 | ||
| 建物構造 | RC 2階建 | 工法 | |
| 主要採光 | 南向 | バルコニー | |
| 保証・評価 | |||
| リフォーム | |||
| 土地面積 | 公151.72㎡(45.89坪) | 接道 | 北側(公道)幅 約6.0m |
| 私道 | セットバック | ||
| 地目 | 宅地 | 地勢 | 平坦 |
| 権利 | 所有権 |
||
| 都市計画 | 市街化区域 |
用途地域 | 1種中高 |
| 建ぺい/容積率 | 60% / 200% | 土地国土法 | |
| 許可番号 | 建築基準法 | ||
| 法令制限 | |||
| 小学区 | ゆたか小学校 徒歩18分 (約1400m) | 中学区 | 豊見城中学校 徒歩23分 (約1800m) |
| 現況 | 空 | 引渡 | 即 |
| その他費用 | |||
| 周辺環境 | タウンプラザ かねひで うるく市場 徒歩9分 (約700m) ファミリーマート 那覇小禄一丁目店 徒歩10分 (約750m) サンエーV21おろく食品館 徒歩11分 (約850m) サンエー V21食品館きょうはら店 徒歩14分 (約1100m) コープおろく 徒歩15分 (約1200m) ゆたか小学校 徒歩18分 (約1400m) 豊見城中学校 徒歩23分 (約1800m) マックスバリューとよみ店 徒歩23分 (約1800m) ドラッグイレブン真玉橋店 徒歩27分 (約2100m) |
||
| 備考 | 【築19年・RC造】弊社売主のため仲介手数料無料です! 外壁塗装・壁紙張替などリフォームを行い、生まれ変わった状態で引渡し♪ 玄関を入ると広々リビング、掃き出し窓が1階に3か所あり明るい日差しが差し込みます。駐車場拡張により並列3台OK!BBQ可能なお庭もございます。 ◆駐車場:並列駐車(車種要確認) ◇周辺環境◇ ・タウンプラザ かねひで うるく市場まで車で3分(約750m) ・ファミリーマート 那覇小禄一丁目店まで車で4分(約1000m) ・サンエーV21おろく食品館まで車で4分(約1100m) ・コープおろくまで車で6分(約1600m) ・豊見城ICまで車で9分(約3200m) |
||
| 物件番号 | 4494632 | 取引態様 | 媒介 |
取扱店舗情報
ハウスドゥ 南風原 株式会社R-JAPAN 店舗詳細ページへ
| 電話番号 | 098-940-6565 |
|---|---|
| 所在地 | 〒901-1117 沖縄県島尻郡南風原町津嘉山1345-2 |
| 営業時間 | 10:00~19:00 |
| 定休日 | 水曜日 |
| 宅建免許番号 | 国土交通大臣(2)第9251号 |
| アクセス | 店舗への地図はこちら |

来店ご予約
沖縄県豊見城市で価格が似ている物件はこちら
- 沖縄県
マイページ物件数 - 3,337件
最近見た物件
-
-

-
- 新築一戸建て
- 2,798万円
-
糟屋郡宇美町桜原3丁目
-
JR香椎線宇美
-
-
-

-
- 中古一戸建て
- 4,880万円
-
安芸郡府中町八幡1丁目
-
JR山陽本線天神川
-
-
-

-
- 中古一戸建て
- 2,280万円
-
奈良市青山5丁目
-
近鉄難波・奈良線近鉄奈良
-
沖縄県中古一戸建て新着物件
- お近くの店舗を探す
-
おすすめ物件
-
-

-
- 中古一戸建て
- 4,398万円
-
糸満市潮崎町4丁目
-
バス停真栄里入口
-
-
-

-
- 中古一戸建て
- 1億800万円
-
豊見城市字豊崎
-
アウトレットモールあしびなー前
-
-
-

-
- 中古一戸建て
- 9,800万円
-
宜野湾市宇地泊2丁目
-
バス停兼久原
-
-
-

-
- 中古一戸建て
- 2,800万円
-
うるま市石川曙2丁目
-
バス石川入口
-
-
-

-
- 中古一戸建て
- 4,180万円
-
豊見城市字上田
-
バス停豊見城郵便局前
-
-
-

-
- 中古一戸建て
- 3,400万円
-
中頭郡読谷村字渡慶次
-
バス停読谷バスターミナル
-
-
-

-
- 中古一戸建て
- 3,990万円
-
豊見城市字豊見城
-
住宅前
-
-
-

-
- 中古一戸建て
- 1億500万円
-
那覇市松尾1丁目
-
沖縄都市モノレール県庁前
-
-
-

-
- 中古一戸建て
- 6,140万円
-
豊見城市字豊崎
-
光洋小学校入口
-
-
-

-
- 中古一戸建て
- 5,980万円
-
中頭郡読谷村字座喜味
-
シーレイク座喜味
-













































担当エージェント:玉寄太一
ハイサイ!沖縄生れ、沖縄育ちの玉寄です!
不動産の売買は、人生の中でも大事な「衣・食・住」に関わる大きなものです。
誠心誠意、責任を持ってお客様の理想を叶えます!
一緒に理想を現実にしましょう!
是非お気軽にご相談ください(^^)
★ハウスドゥ 南風原のHPから『マイページ登録』をして頂くと日々更新される、HPでは一般公開されていない新着物件をいち早くご覧いただけます!登録は無料!是非ご活用くださいませ★
\購入相談会随時同時開催中/
◆住宅ローン
借入限度額や自分に合った支払い額を知りたい方
お家探しの前に資金計画を立てたい方、住替えをお考えの方
一度ご相談ください。専門スタッフがわかりやすくご説明します!!
◆ご家族お揃いでお気軽にお越しください♪
キッズスペース・店舗横に駐車場完備♪
お子様連れのお客様も安心して、物件探しをご相談頂けます♪
◆お客様のご要望に応じた物件をまとめてご案内する物件ツアーも開催しております。