宇都宮市上野町の中古戸建
掲載情報更新日:2026年01月10日 次回更新予定日:2026年01月24日
- 1,999万円
-
- 借入ご希望金額
万円 - 借入期間
年 - 借入金利
% - 月々のお支払い金額
円
- 借入ご希望金額
※ 月々のお支払例は目安の試算となりますので、実際の金額とは異なる場合がございます。詳しくは店舗までお問合わせください。
- 宇都宮市上野町
-
JR東北本線『岡本』 徒歩10分 (約800m)
宇都宮芳賀ライト線『宇都宮大学陽東キャンパス』 徒歩63分 (約5040m)
JR東北本線『宇都宮』 徒歩73分 (約5800m)
宇都宮市上野町一戸建て | 物件情報
※マウスを乗せると画像が切り替わります。
◆JR岡本駅まで徒歩約10分の好立地◆宇都宮病院徒歩圏内◆2階全洋室8帖以上
物件の設備
- 電気
- 上水道
- 公営水道
- 下水道
- 公共下水
- プロパンガス
- 個別プロパン
- コンロ三口
- グリル
- カウンターキッチン
- システムキッチン
- バス1坪以上
- 追焚機能
- 浴室に窓
- トイレ2箇所
- 洗髪洗面化粧台
- モニタ付インターホン
- LDK15畳以上
- 和室
- 全居室6畳以上
- 出窓
- フローリング
- フローリング張替
- 床下収納
物件の特徴
- 内装リフォーム済
- 外装リフォーム済
- 内外装リフォーム済
- 前道6m以上
- 2階建
- 平坦地
- 整形地
- 瑕疵保険検査基準適合
- 瑕疵保険(国交省指定)付
物件詳細情報
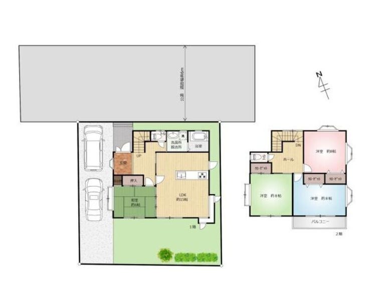
| 価格 | 1,999万円 | 間取り | 4LDK |
|---|---|---|---|
| 物件種別 | 中古一戸建て | ||
| 所在地 | 栃木県宇都宮市上野町 | ||
| アクセス |
|
||
| 建物面積 | 112.62㎡ | 駐車場 | あり 普通:2台 |
| 築年月 | 1990年(平成2年)09月築 | ||
| 建物構造 | 木造 2階建 | 工法 | |
| 主要採光 | 南向 | バルコニー | |
| 保証・評価 | 【瑕疵保険(国交省指定)】有 |
||
| リフォーム | 【水回り】2025年08月 キッチン・浴室・トイレ・洗面 コンロ新品 【外装】2025年08月 外壁 ・屋根 【内装】2025年08月 壁、天井 ・床 ・全室クロス ・建具 クロス張替え、フローリング上張り、畳表替え、障子貼替え、襖貼替え、網戸貼替え、クッションフロア張替え、一部建具交換 【その他】2025年09月 白蟻点検済み、ハウスクリーニング済み |
||
| 土地面積 | 公168.43㎡(50.95坪) | 接道 | 北側(公道)幅 約6.0m |
| 私道 | セットバック | 無 | |
| 地目 | 宅地 | 地勢 | 平坦 |
| 権利 | 所有権 |
||
| 都市計画 | 市街化区域 |
用途地域 | 1種住居 |
| 建ぺい/容積率 | 60% / 200% | 土地国土法 | |
| 許可番号 | 建築基準法 | ||
| 法令制限 | 法22条区域 | ||
| 小学区 | 御幸が原小学校 徒歩15分 (約1137m) | 中学区 | 鬼怒中学校 徒歩37分 (約2929m) |
| 現況 | 空 | 引渡 | 相談 |
| その他費用 | |||
| 周辺環境 | ヨークベニマル御幸ヶ原店 徒歩19分 (約1500m) ディスカウントドラッグコスモス岡本店 徒歩9分 (約650m) ローソン宇都宮上野町店 徒歩5分 (約400m) 宇都宮市立御幸が原小学校 徒歩14分 (約1100m) 宇都宮市立鬼怒中学校 徒歩38分 (約3000m) 独立行政法人国立病院機構宇都宮病院 徒歩7分 (約520m) |
||
| 備考 | ※駐車台数は車種によります。 | ||
| 物件番号 | 4495244 | 取引態様 | 媒介 |
取扱店舗情報
| 電話番号 | 028-678-2888 |
|---|---|
| 所在地 | 〒320-0826 栃木県宇都宮市西原町466-1 |
| 営業時間 | 10:00~18:30 |
| 定休日 | 水曜日 |
| 宅建免許番号 | 栃木県知事(2)第5075号 |
| アクセス | 店舗への地図はこちら |

来店ご予約
栃木県宇都宮市で価格が似ている物件はこちら
![]()
![]()
-
- 中古一戸建て 2019.08.24
-
-
- 1,950万円
-
宇都宮市西川田南1丁目
-
東武宇都宮線「西川田駅」まで徒歩12分
- 4LDK+S
-
-
- 中古一戸建て 2020.06.13
-
-
- 1,950万円
-
宇都宮市西川田南1丁目
-
東武宇都宮線「西川田駅」まで徒歩12分
- 4LDK+S
-
-
- 中古一戸建て 2022.03.26
-
-
- 1,950万円
-
宇都宮市西川田南1丁目
-
東武宇都宮線「西川田駅」まで徒歩12分
- 4LDK+S
-
-
- 中古一戸建て 2024.06.01
-
-
- 1,980万円
-
宇都宮市鶴田町
-
JR日光線「鶴田駅」まで徒歩7分
- 4LDK
-
-
- 中古一戸建て 2024.12.17
-
-
- 1,899万円
-
宇都宮市西川田本町4丁目
-
東武宇都宮線「西川田駅」まで徒歩14分
- 4LDK
-
-
- 中古一戸建て 2024.12.17
-
-
- 1,949万円
-
宇都宮市西川田本町4丁目
-
東武宇都宮線「西川田駅」まで徒歩9分
- 4LDK
-
-
- 中古一戸建て 2024.12.20
-
-
- 1,960万円
-
宇都宮市高砂町
-
JR東北本線「雀宮駅」まで徒歩17分
- 4LDK
-
-
- 中古一戸建て 2024.12.20
-
-
- 1,999万円
-
宇都宮市弥生2丁目
-
東武宇都宮線「南宇都宮駅」まで徒歩8分
- 4LDK
-
-
- 中古一戸建て 2024.12.21
-
-
- 2,049万円
-
宇都宮市上戸祭町
-
東武宇都宮線「東武宇都宮駅」まで徒歩45分
- 3LDK
-
-
- 中古一戸建て 2024.12.23
-
-
- 1,899万円
-
宇都宮市西川田本町4丁目
-
東武宇都宮線「西川田駅」まで徒歩14分
- 4LDK
-
-
- 中古一戸建て 2024.12.23
-
-
- 2,049万円
-
宇都宮市上戸祭町
-
関東バス第一グリーンヒルまで徒歩4分
- 3LDK
-
-
- 中古一戸建て 2025.01.05
-
-
- 1,999万円
-
宇都宮市弥生2丁目
-
東武宇都宮線「南宇都宮駅」まで徒歩8分
- 4LDK
-
-
- 中古一戸建て 2025.01.12
-
-
- 1,999万円
-
宇都宮市弥生2丁目
-
東武宇都宮線「南宇都宮駅」まで徒歩8分
- 4LDK
-
-
- 中古一戸建て 2025.03.08
-
-
- 1,980万円
-
宇都宮市下栗町
-
宇都宮芳賀ライト線「駅東公園前駅」まで徒歩33分
- 3DK
-
-
- 中古一戸建て 2025.03.29
-
-
- 1,980万円
-
宇都宮市茂原2丁目
-
JR東北本線「雀宮駅」まで徒歩30分
- 5LDK+S
-
-
- 中古一戸建て 2025.03.29
-
-
- 1,980万円
-
宇都宮市白沢町
-
JR東北本線「岡本駅」まで徒歩39分
- 2LDK
-
-
- 中古一戸建て 2025.04.05
-
-
- 1,980万円
-
宇都宮市茂原2丁目
-
JR東北本線「雀宮駅」まで徒歩30分
- 5LDK+S
-
-
- 中古一戸建て 2025.04.13
-
-
- 2,000万円
-
宇都宮市鐺山町
-
宇都宮芳賀ライト線「飛山城跡駅」まで徒歩17分
- 7LDK
-
-
- 中古一戸建て 2025.04.16
-
-
- 2,049万円
-
宇都宮市上戸祭町
-
東武宇都宮線「東武宇都宮駅」まで車15分
- 3LDK+S
-
-
- 中古一戸建て 2025.04.17
-
-
- 1,980万円
-
宇都宮市鶴田町
-
JR日光線「鶴田駅」まで徒歩9分
- 4LDK
-
-
- 中古一戸建て 2025.05.08
-
-
- 2,099万円
-
宇都宮市今宮2丁目
-
東武宇都宮線「西川田駅」まで徒歩23分
- 4LDK
-
-
- 中古一戸建て 2025.05.23
-
-
- 1,980万円
-
宇都宮市雀の宮4丁目
-
JR東北本線「宇都宮駅」まで徒歩10分
- 6DK
-
-
- 中古一戸建て 2025.05.29
-
-
- 2,080万円
-
宇都宮市駒生町
-
東武宇都宮線「東武宇都宮駅」まで徒歩70分
- 3LDK
-
-
- 中古一戸建て 2025.06.13
-
-
- 1,980万円
-
宇都宮市宝木本町
-
東武宇都宮線「東武宇都宮駅」まで徒歩77分
- 7DK
-
-
- 中古一戸建て 2025.06.13
-
-
- 1,999万円
-
宇都宮市鶴田町
-
東武宇都宮線「南宇都宮駅」まで徒歩14分
- 4LDK
-
-
- 中古一戸建て 2025.06.14
-
-
- 1,990万円
-
宇都宮市鶴田町
-
東武宇都宮線「南宇都宮駅」まで徒歩37分
- 3LDK
-
-
- 中古一戸建て 2025.06.16
-
-
- 1,950万円
-
宇都宮市下川俣町
-
JR東北本線「岡本駅」バス乗車7分 バス停「御幸ヶ原児童公園前」まで徒歩15分
- 7DK
-
-
- 中古一戸建て 2025.06.20
-
-
- 1,980万円
-
宇都宮市宝木町1丁目
-
東武宇都宮線「東武宇都宮駅」まで徒歩47分
- 3DK
-
-
- 中古一戸建て 2025.06.21
-
-
- 1,980万円
-
宇都宮市宝木町1丁目
-
東武宇都宮線「東武宇都宮駅」まで徒歩47分
- 3DK
-
-
- 中古一戸建て 2025.06.29
-
-
- 1,980万円
-
宇都宮市大塚町
-
東武宇都宮線「江曾島駅」まで徒歩6分
- 8DK
-
-
- 中古一戸建て 2025.07.12
-
-
- 2,099万円
-
宇都宮市針ケ谷1丁目
-
東武宇都宮線「西川田駅」まで徒歩32分
- 4DK
-
-
- 中古一戸建て 2025.07.19
-
-
- 1,998万円
-
宇都宮市鶴田町
-
JR東北本線「宇都宮駅」まで車19分
- 4LDK
-
-
- 中古一戸建て 2025.07.31
-
-
- 2,080万円
-
宇都宮市西川田本町3丁目
-
東武宇都宮線「西川田駅」まで徒歩10分
- 3LDK
-
-
- 中古一戸建て 2025.08.08
-
-
- 1,980万円
-
宇都宮市中岡本町
-
JR東北本線「岡本駅」まで徒歩20分
- 4LDK
-
-
- 中古一戸建て 2025.08.08
-
-
- 2,099万円
-
宇都宮市緑3丁目
-
東武宇都宮線「西川田駅」まで徒歩15分
- 5DK
-
-
- 中古一戸建て 2025.08.21
-
-
- 1,980万円
-
宇都宮市大塚町
-
東武宇都宮線「江曾島駅」まで徒歩6分
- 8DK
-
-
- 中古一戸建て 2025.08.22
-
-
- 1,980万円
-
宇都宮市下平出町
-
宇都宮芳賀ライト線「平石中央小学校前駅」まで徒歩13分
- 6K
-
-
- 中古一戸建て 2025.08.25
-
-
- 1,980万円
-
宇都宮市下平出町
-
宇都宮芳賀ライト線「平石中央小学校前駅」まで徒歩13分
- 6K
-
-
- 中古一戸建て 2025.08.31
-
-
- 1,950万円
-
宇都宮市豊郷台2丁目
-
JR東北本線「宇都宮駅」バス乗車29分 バス停「豊郷台3丁目」まで徒歩3分
- 3LDK
-
-
- 中古一戸建て 2025.09.11
-
-
- 1,980万円
-
宇都宮市宝木町1丁目
-
JR東北本線「宇都宮駅」バス乗車26分 バス停「西中丸」まで徒歩7分
- 3DK
-
-
- 中古一戸建て 2025.09.20
-
-
- 1,980万円
-
宇都宮市宝木町2丁目
-
東武宇都宮線「東武宇都宮駅」まで車15分
- 4LDK
-
-
- 中古一戸建て 2025.10.21
-
-
- 1,980万円
-
宇都宮市宝木町2丁目
-
東武宇都宮線「東武宇都宮駅」まで徒歩68分
- 4LDK
-
-
- 中古一戸建て 2025.11.04
-
-
- 1,999万円
-
宇都宮市上野町
-
JR東北本線「岡本駅」まで徒歩10分
- 4LDK
-
-
- 中古一戸建て 2025.11.15
-
-
- 1,999万円
-
宇都宮市竹林町
-
関東バス豊郷南小学校前まで徒歩11分
- 4LDK
-
-
- 中古一戸建て 2025.11.17
-
-
- 1,980万円
-
宇都宮市大塚町
-
東武宇都宮線「江曾島駅」まで徒歩6分
- 8DK
-
-
- 中古一戸建て 2025.11.18
-
-
- 1,999万円
-
宇都宮市竹林町
-
関東バス豊郷南小学校前まで徒歩11分
- 4LDK
-
-
- 中古一戸建て 2025.11.18
-
-
- 1,999万円
-
宇都宮市上野町
-
JR東北本線「岡本駅」まで徒歩9分
- 4LDK
-
-
- 中古一戸建て 2025.11.20
-
-
- 1,980万円
-
宇都宮市西川田町
-
東武宇都宮線「西川田駅」まで徒歩14分
- 3LDK
-
-
- 中古一戸建て 2025.11.20
-
-
- 1,950万円
-
宇都宮市下川俣町
-
JR東北本線「岡本駅」バス乗車7分 バス停「御幸ヶ原児童公園前」まで徒歩15分
- 7DK
-
-
- 中古一戸建て 2025.11.20
-
-
- 1,999万円
-
宇都宮市上野町
-
JR東北本線「岡本駅」まで徒歩9分
- 4LDK
-
-
- 中古一戸建て 2025.11.29
-
-
- 1,999万円
-
宇都宮市鶴田町
-
JR日光線「鶴田駅」まで徒歩19分
- 4LDK
-
-
-
中古一戸建て
2025.12.19
-
-
- 1,980万円
-
宇都宮市下平出町
-
宇都宮芳賀ライト線「平石中央小学校前駅」まで徒歩13分
- 6K
-
-
中古一戸建て
2025.12.19
- 栃木県
マイページ物件数 - 7,029件
最近見た物件
-
-

-
- 新築一戸建て
- 3,398万円
-
北九州市小倉南区上貫1丁目
-
JR日豊本線下曽根
-
栃木県中古一戸建て新着物件
- お近くの店舗を探す
-
おすすめ物件
-
-

-
- 中古一戸建て
- 3,250万円
-
宇都宮市簗瀬町
-
JR東北新幹線宇都宮
-
-
-

-
- 中古一戸建て
- 4,260万円
-
宇都宮市一条4丁目
-
関東バス【一条】
-
-
-

-
- 中古一戸建て
- 4,480万円
-
矢板市乙畑
-
JR東北本線片岡
-
-
-

-
- 中古一戸建て
- 3,490万円
-
芳賀郡芳賀町大字八ツ木
-
宇都宮芳賀ライト線芳賀・高根沢工業団地
-
-
-

-
- 中古一戸建て
- 600万円
-
佐野市石塚町
-
さーのって「石塚町南」
-
-
-

-
- 中古一戸建て
- 2,680万円
-
宇都宮市清原台6丁目
-
JRバス清原台6丁目
-
-
-

-
- 中古一戸建て
- 860万円
-
日光市森友
-
関東バス【今市工高前】
-
-
-

-
- 中古一戸建て
- 2,500万円
-
那須烏山市南1丁目
-
JR烏山線烏山
-
-
-

-
- 中古一戸建て
- 1,100万円
-
鹿沼市松原4丁目
-
JR日光線鹿沼
-
-
-

-
- 中古一戸建て
- 630万円
-
宇都宮市野沢町
-
関東バス弁天橋停
-



































担当エージェント:中三川 正行
◆JR岡本駅徒歩約10分圏内で落ち着いた閑静な住宅街です♪
◆他にも多数物件ありますのでお気軽にお問い合わせください!!