宇都宮市戸祭3丁目の中古戸建
NEW 11.20掲載情報更新日:2025年11月20日 次回更新予定日:2025年12月04日
- 3,280万円
-
- 借入ご希望金額
万円 - 借入期間
年 - 借入金利
% - 月々のお支払い金額
円
- 借入ご希望金額
※ 月々のお支払例は目安の試算となりますので、実際の金額とは異なる場合がございます。詳しくは店舗までお問合わせください。
- 宇都宮市戸祭3丁目
-
東武宇都宮線『東武宇都宮』 徒歩33分 (約2640m)
宇都宮市戸祭3丁目一戸建て | 物件情報
物件の設備
- 上水道
- 公営水道
- 下水道
- 公共下水
- プロパンガス
- 個別プロパン
- 食器洗浄乾燥機
- カウンターキッチン
- システムキッチン
- 浴室乾燥機
- 浴室に窓
- トイレ2箇所
- 洗髪洗面化粧台
- モニタ付インターホン
- LDK15畳以上
- 和室
- フローリング
- クローゼット
- ウォークインクローゼット
- 全居室収納
物件の特徴
- 小学校徒歩10分以内
- スーパーが近い
- 2階建
物件詳細情報
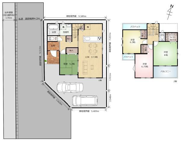
| 価格 | 3,280万円 | 間取り | 4LDK |
|---|---|---|---|
| 物件種別 | 中古一戸建て | ||
| 所在地 | 栃木県宇都宮市戸祭3丁目 | ||
| アクセス |
|
||
| 建物面積 | 105.16㎡ | 駐車場 | あり 普通:2台 |
| 築年月 | 2020年(令和2年)03月築 | ||
| 建物構造 | 木造 2階建 | 工法 | |
| 主要採光 | 南向 | バルコニー | |
| 保証・評価 | |||
| リフォーム | |||
| 土地面積 | 120.37㎡(36.41坪) | 接道 | 西側(私道)幅 約4.2m |
| 私道 | セットバック | ||
| 地目 | 宅地 | 地勢 | |
| 権利 | 所有権 |
||
| 都市計画 | 市街化区域 |
用途地域 | 2種中高 |
| 建ぺい/容積率 | 60% / 200% | 土地国土法 | |
| 許可番号 | 建築基準法 | ||
| 法令制限 | 景観法・宅地造成工事規制区域・法22条区域 | ||
| 小学区 | 戸祭小学校 徒歩7分 (約547m) | 中学区 | 星が丘中学校 徒歩16分 (約1220m) |
| 現況 | 空 | 引渡 | 相談 |
| その他費用 | |||
| 備考 | 車種により3台駐車可能 西側に私道が4.2mと法外道路が1.95mあります |
||
| 物件番号 | 4495602 | 取引態様 | 媒介 |
取扱店舗情報
| 電話番号 | 028-678-2888 |
|---|---|
| 所在地 | 〒320-0826 栃木県宇都宮市西原町466-1 |
| 営業時間 | 10:00~18:30 |
| 定休日 | 水曜日 |
| 宅建免許番号 | 栃木県知事(2)第5075号 |
| アクセス | 店舗への地図はこちら |

来店ご予約
栃木県宇都宮市で価格が似ている物件はこちら
- 栃木県
マイページ物件数 - 6,700件
最近見た物件
-
-

-
- 中古一戸建て
- 2,699万円
-
北九州市八幡西区春日台1丁目
-
筑豊電気鉄道三ヶ森
-
-
-

-
- 中古一戸建て
- 5,230万円
-
茨木市南春日丘7丁目
-
大阪モノレール彩都阪大病院前
-
-
-

-
- 中古一戸建て
- 1,450万円
-
豊中市螢池西町1丁目
-
阪急電鉄宝塚線蛍池
-
栃木県中古一戸建て新着物件
- お近くの店舗を探す
-
おすすめ物件
-
-

-
- 中古一戸建て
- 3,080万円
-
鹿沼市玉田町
-
東武日光線北鹿沼
-
-
-

-
- 中古一戸建て
- 3,490万円
-
芳賀郡芳賀町大字八ツ木
-
宇都宮芳賀ライト線芳賀・高根沢工業団地
-
-
-

-
- 中古一戸建て
- 1,980万円
-
宇都宮市下平出町
-
宇都宮芳賀ライト線平石中央小学校前
-
-
-

-
- 中古一戸建て
- 1,680万円
-
宇都宮市新里町
-
東武宇都宮線東武宇都宮
-
-
-

-
- 中古一戸建て
- 600万円
-
佐野市石塚町
-
さーのって「石塚町南」
-
-
-

-
- 中古一戸建て
- 380万円
-
宇都宮市山本2丁目
-
関東バス【ゆたか団地】
-
-
-

-
- 中古一戸建て
- 3,490万円
-
芳賀郡芳賀町大字八ツ木
-
宇都宮芳賀ライト線芳賀・高根沢工業団地
-
-
-

-
- 中古一戸建て
- 1,820万円
-
宇都宮市豊郷台2丁目
-
JR東北本線宇都宮
-
-
-

-
- 中古一戸建て
- 2,950万円
-
佐野市高萩町
-
JR両毛線佐野
-
-
-

-
- 中古一戸建て
- 2,500万円
-
宇都宮市石井町
-
JR東北本線宇都宮
-








