庭付 屋根付駐車場 改装済み 中古戸建 八千代市保品
NEW 11.23掲載情報更新日:2025年11月23日 次回更新予定日:2025年12月07日
- 2,770万円
-
- 借入ご希望金額
万円 - 借入期間
年 - 借入金利
% - 月々のお支払い金額
円
- 借入ご希望金額
※ 月々のお支払例は目安の試算となりますので、実際の金額とは異なる場合がございます。詳しくは店舗までお問合わせください。
- 八千代市保品
-
東葉高速鉄道『東葉勝田台』 バス乗車20分 東洋バス もえぎ野中央尾 停 徒歩4分 (約320m)
庭付 屋根付駐車場 改装済み 中古戸建 八千代市保品一戸建て | 物件情報
物件の設備
- 電気
- 公営水道
- 公共下水
- 都市ガス
- 給湯
- 浄水器
- コンロ三口
- システムキッチン
- ユニットバス
- トイレ2箇所
- 室内洗濯機置場
- 洗髪洗面化粧台
- 洗面所独立
- モニタ付インターホン
- フローリング張替
- クローゼット3箇所
- 床下収納
- バルコニー
- ウッドテラス
- 庭
物件の特徴
- 内装リフォーム済
- 外装リフォーム済
- 内外装リフォーム済
- 2階建
- 角地
物件詳細情報
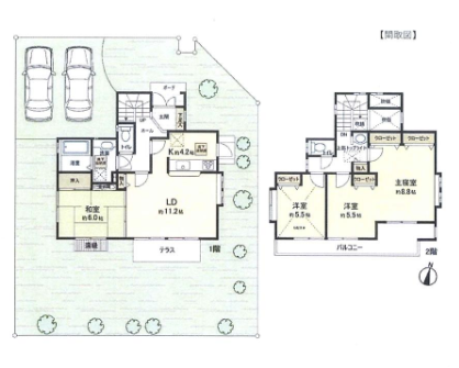
| 価格 | 2,770万円 | 間取り | 4LDK |
|---|---|---|---|
| 物件種別 | 中古一戸建て | ||
| 所在地 | 千葉県八千代市保品 | ||
| アクセス |
|
||
| 建物面積 | 公102.16㎡ | 駐車場 | あり 普通:2台 |
| 築年月 | 2003年(平成15年)02月築 | ||
| 建物構造 | 木造 2階建 | 工法 | |
| 主要採光 | 南東向 | バルコニー | 南東向15.00㎡ |
| 保証・評価 | |||
| リフォーム | 【水回り】2025年08月 キッチン・浴室・トイレ・洗面・給湯器 キッチン交換 洗面台交換 トイレ交換 風呂交換 給湯器交換 【外装】2025年08月 外壁 ・屋根 屋根、外壁、基礎、軒天井塗装 白蟻薬剤散布 【内装】2025年08月 壁、天井 ・床 ・全室クロス ・建具 天井、壁クロス張替え ハウスクリーニング |
||
| 土地面積 | 公208.38㎡(63.03坪) | 接道 | |
| 私道 | セットバック | ||
| 地目 | 宅地 | 地勢 | |
| 権利 | 所有権 |
||
| 都市計画 | 市街化区域 |
用途地域 | 1種低層 |
| 建ぺい/容積率 | 50% / 100% | 土地国土法 | |
| 許可番号 | 建築基準法 | ||
| 法令制限 | |||
| 小学区 | 阿蘇米本学園 徒歩26分 (約2040m) | 中学区 | 阿蘇米本学園 徒歩26分 (約2040m) |
| 現況 | 空 | 引渡 | 相談 |
| その他費用 | |||
| 備考 | |||
| 物件番号 | 4500272 | 取引態様 | 媒介 |
取扱店舗情報
ハウスドゥ 薬園台駅前 合同会社ネクステージ 店舗詳細ページへ
| 電話番号 | 047-401-0440 |
|---|---|
| 所在地 | 〒274-0077 千葉県船橋市薬円台6丁目5-1 |
| 営業時間 | 10:00~18:00 |
| 定休日 | 火曜日、水曜日 |
| 宅建免許番号 | 千葉県知事(1)第18892号 |
| アクセス | 店舗への地図はこちら |

来店ご予約
千葉県八千代市で価格が似ている物件はこちら
- 千葉県
マイページ物件数 - 2,880件
千葉県中古一戸建て新着物件
- お近くの店舗を探す
-
おすすめ物件
-
-

-
- 中古一戸建て
- 2,380万円
-
成田市玉造2丁目
-
JR成田線成田
-
-
-

-
- 中古一戸建て
- 3,380万円
-
成田市はなのき台2丁目
-
JR成田線成田
-
-
-

-
- 中古一戸建て
- 2,880万円
-
木更津市八幡台3丁目
-
JR内房線木更津
-
-
-

-
- 中古一戸建て
- 5,380万円
-
柏市西山1丁目
-
京成電鉄松戸線常盤平
-
-
-

-
- 中古一戸建て
- 2,080万円
-
柏市逆井5丁目
-
東武野田線逆井
-
-
-

-
- 中古一戸建て
- 3,499万円
-
取手市井野
-
JR常磐線取手
-
-
-

-
- 中古一戸建て
- 1,380万円
-
柏市新逆井2丁目
-
東武野田線逆井
-
-
-

-
- 中古一戸建て
- 3,880万円
-
成田市はなのき台2丁目
-
JR成田線成田
-
-
-

-
- 中古一戸建て
- 2,480万円
-
松戸市中金杉5丁目
-
つくばエクスプレス流山セントラルパーク
-
-
-

-
- 中古一戸建て
- 980万円
-
柏市南逆井3丁目
-
京成電鉄松戸線五香
-






































