中古戸建 堺市美原区南余部西1丁目
掲載情報更新日:2026年04月16日 次回更新予定日:2026年04月30日
- 2,280万円
-
- 借入ご希望金額
万円 - 借入期間
年 - 借入金利
% - 月々のお支払い金額
円
- 借入ご希望金額
※ 月々のお支払例は目安の試算となりますので、実際の金額とは異なる場合がございます。詳しくは店舗までお問合わせください。
- 堺市美原区南余部西1丁目
-
南海電鉄高野線『北野田』 徒歩17分 (約1360m)
南海電鉄高野線『萩原天神』 徒歩18分 (約1440m)
南海電鉄高野線『狭山』 車7分(約2.7km)
中古戸建 堺市美原区南余部西1丁目一戸建て | 物件情報
★リフォーム済み・土地41坪・4LDKのお家★
★リフォーム済み・土地41坪・4LDKのお家★
●オススメポイント●
・リフォーム済み♪
・土地広々41坪!
・駐車2台可能
●教育機関●
・堺市立八上小学校 徒歩17分
・堺市立美原西中学校 徒歩15分
物件の設備
- 電気
- 公営水道
- 公共下水
- 都市ガス
- 給湯
- 食器洗浄乾燥機
- IHクッキングヒータ
- グリル
- システムキッチン
- バス
- 追焚機能
- 浴室に窓
- トイレ
- 温水洗浄便座
- 室内洗濯機置場
- 洗面所独立
- ダウンライト
- モニタ付インターホン
- 和室
- フローリング
- 網戸
- クローゼット
- クローゼット2箇所
- シューズボックス
物件の特徴
- 整備された歩道
- スーパーが近い
- 閑静な住宅街
- 通風良好
- 陽当り良好
- 2階建
- 平坦地
- 即入居可
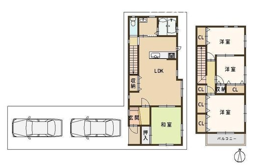
物件詳細情報
| 価格 | 2,280万円 | 間取り | 4LDK |
|---|---|---|---|
| 物件種別 | 中古一戸建て | ||
| 所在地 | 大阪府堺市美原区南余部西1丁目 | ||
| アクセス |
|
||
| 建物面積 | 公99.57㎡ | 駐車場 | あり 普通:2台 |
| 築年月 | 2006年(平成18年)10月築 | ||
| 建物構造 | 木造 2階建 | 工法 | |
| 主要採光 | バルコニー | ||
| 保証・評価 | |||
| リフォーム | |||
| 土地面積 | 公135.84㎡(41.09坪) | 接道 | 西側(公道)幅 約4.5m 間口 約3.50m |
| 私道 | セットバック | ||
| 地目 | 宅地 | 地勢 | 平坦 |
| 権利 | 所有権 |
||
| 都市計画 | 市街化区域 |
用途地域 | 1種中高 |
| 建ぺい/容積率 | 60% / 200% | 土地国土法 | |
| 許可番号 | 建築基準法 | ||
| 法令制限 | 準防火地域 | ||
| 小学区 | 八上小学校 徒歩17分 (約1300m) | 中学区 | 美原西中学校 徒歩15分 (約1200m) |
| 現況 | 空 | 引渡 | 即 |
| その他費用 | |||
| 周辺環境 | 美原にしこども園 徒歩4分 (約300m) 堺市立美原西小学校 徒歩16分 (約1240m) 堺市立美原西中学校 徒歩18分 (約1430m) 大阪府立農芸高等学校 徒歩14分 (約1100m) コノミヤ美原店 徒歩6分 (約410m) ウェルシア堺南余部店 徒歩7分 (約520m) 頌徳会 日野病院 徒歩8分 (約580m) ミニストップ堺北野田店 徒歩12分 (約920m) |
||
| 備考 | ・美原にしこども園まで徒歩4分(約300m) ・堺市立美原西小学校まで徒歩16分(約1240m) ・堺市立美原西中学校まで徒歩18分(約1430m) ・大阪府立農芸高等学校まで徒歩14分(約1100m) ・コノミヤ美原店まで徒歩6分(約410m) ・ウェルシア堺南余部店まで徒歩7分(約520m) ・頌徳会 日野病院まで徒歩8分(約580m) ・ミニストップ堺北野田店まで徒歩12分(約920m) |
||
| 物件番号 | 4512710 | 取引態様 | 媒介 |
取扱店舗情報
ハウスドゥ 松原阿保 Tacoo home株式会社 店舗詳細ページへ
| 電話番号 | 072-247-5294 |
|---|---|
| 所在地 | 〒580-0043 大阪府松原市阿保1丁目4-11コーポイン松原102 |
| 営業時間 | 平日:10:00~20:00/土日祝:9:00~20:00 |
| 定休日 | 水曜日 |
| 宅建免許番号 | 大阪府知事(1)第65754号 |
| アクセス | 店舗への地図はこちら |

来店ご予約
大阪府堺市美原区で価格が似ている物件はこちら
- 大阪府
マイページ物件数 - 18,224件
最近見た物件
大阪府中古一戸建て新着物件
-
-

-
- 中古一戸建て
- 2,490万円
-
大阪市旭区今市1丁目
-
大阪市谷町線太子橋今市駅
-
-
-

-
- 中古一戸建て
- 580万円
-
堺市中区陶器北
-
南海電鉄高野線北野田駅
-
-
-

-
- 中古一戸建て
- 3,390万円
-
豊中市庄内西町2丁目
-
阪急電鉄宝塚線庄内駅
-
-
-

-
- 中古一戸建て
- 2,550万円
-
岸和田市土生町6丁目
-
JR阪和線東岸和田駅
-
-
-

-
- 中古一戸建て
- 2,478万円
-
堺市中区八田北町
-
南海電鉄泉北線深井駅
-
-
-

-
- 中古一戸建て
- 4,899万円
-
箕面市牧落1丁目
-
阪急電鉄箕面線牧落駅
-
-
-

-
- 中古一戸建て
- 2,180万円
-
大阪市旭区清水1丁目
-
京阪本線千林駅
-
- お近くの店舗を探す
-
おすすめ物件
-
-

-
- 中古一戸建て
- 1,980万円
-
東大阪市稲葉1丁目
-
近鉄難波・奈良線河内花園
-
-
-

-
- 中古一戸建て
- 3,180万円
-
高槻市淀の原町
-
阪急電鉄京都線上牧
-
-
-

-
- 中古一戸建て
- 2,680万円
-
八尾市高美町3丁目
-
JR関西本線八尾
-
-
-

-
- 中古一戸建て
- 1,350万円
-
泉南市樽井2丁目
-
南海電鉄本線樽井
-
-
-

-
- 中古一戸建て
- 2,850万円
-
摂津市鳥飼新町1丁目
-
大阪モノレール沢良宜
-
-
-

-
- 中古一戸建て
- 5,100万円
-
大阪市住之江区西加賀屋3丁目
-
大阪市四つ橋線北加賀屋
-
-
-

-
- 中古一戸建て
- 2,480万円
-
泉大津市板原町1丁目
-
JR阪和線和泉府中
-
-
-

-
- 中古一戸建て
- 3,680万円
-
大阪市東住吉区東田辺1丁目
-
大阪市谷町線駒川中野
-
-
-

-
- 中古一戸建て
- 2,498万円
-
神戸市灘区千旦通1丁目
-
阪神電鉄本線大石
-
-
-

-
- 中古一戸建て
- 2,980万円
-
八尾市栄町2丁目
-
JR関西本線八尾
-















担当エージェント:福田 亜翔
【複数件併せてのご案内可能です】気になるあのマンション、エリア内・沿線近くの物件などお客様のご要望に沿った物件を一度にご紹介いたします♪